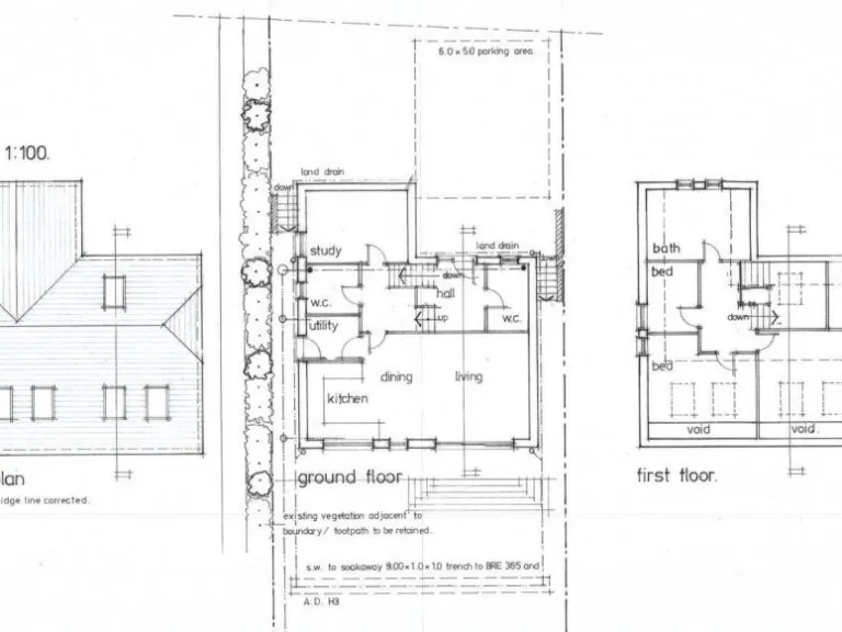
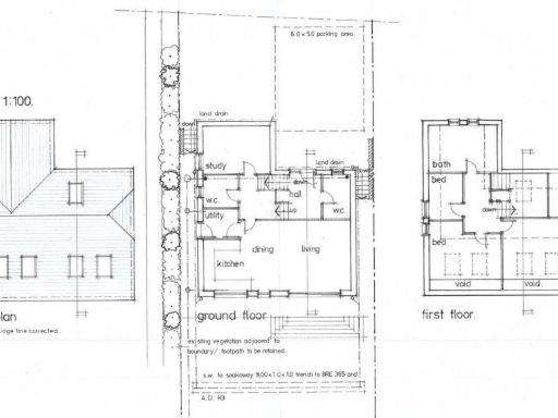
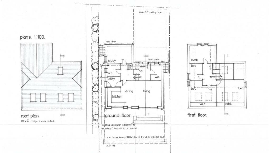
**Standout Features:**
- Freehold plot with planning permission for a three-bedroom detached house
- Proposed design includes hallway, cloakroom, open-plan living-kitchen-diner, study, and rear garden
- Double driveway parking area accessible from The Rhiw
- Scenic location in an active community with access to local amenities and good schools
**Potential Concerns:**
- Subject to a Section 106 agreement with a contribution of £27,770.40
- Restrictive covenant may require additional fees for any construction or layout changes
Embrace the opportunity to build your dream home on this large plot of land in Graig Penllyn, nestled in the Vale of Glamorgan. The planning permission is already in place for a modern three-bedroom detached house, designed with a spacious open-plan living-kitchen-diner, a study, and a south-west facing garden perfect for outdoor relaxation or family gatherings. Conveniently located near local amenities, including a public house and recreation facilities, this plot offers a desirable blend of countryside living with community spirit.
While the property does come with certain obligations, such as a Section 106 payment and a covenant regarding additional structures, the potential for creating a unique family home in this idyllic setting is incredibly appealing. Don't miss out on this exceptional chance to secure a plot in a thriving community. Act quickly and envision your future in this tranquil West Welsh village!
Plot for sale in Llanquian Road, Aberthin, Cowbridge, CF71 — £300,000 • 1 bed • 1 bath • 2500 ft²
Plot for sale in Plot Adjacent to the Red Lion, Pendoylan, The Vale of Glamorgan CF71 7UJ, CF71 — £285,000 • 4 bed • 2 bath • 2000 ft²
Plot for sale in Llanquian Road, Aberthin, Cowbridge, CF71 — £300,000 • 1 bed • 1 bath • 2500 ft²
Plot for sale in Graig Penllyn, Cowbridge, CF71 — £450,000 • 6 bed • 4 bath • 1927 ft²
Plot for sale in Adjacent former Three Horse Shoes Public House Lamb Row South Cornelly, South Cornelly, Bridgend, CF33 — £105,000 • 1 bed • 1 bath
Plot for sale in 0.3 acre Building Plot, Railway Terrace, South Cornelly, Bridgend, CF33 — £199,950 • 1 bed • 1 bath


























