**Standout Features:**
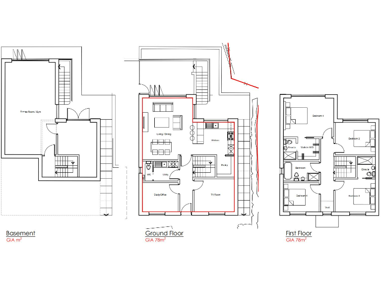
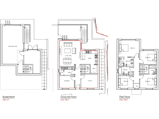
- Large building plot of 0.12 acres with planning permission for two exclusive detached homes, approximately 2,500 sq/ft each.
- Versatile three-floor design with a spacious open-plan kitchen/living/dining area, multiple bedrooms, and a basement.
- Located in a peaceful semi-rural setting in the sought-after village of Aberthin, close to Cowbridge.
- Easy access to local amenities, schools, and beautiful natural surroundings, including Stalling Down Common.
**Potential Downsides:**
- The vendor has a S.106 payment of £27,770.40 due from the purchaser.
- There may be ongoing costs for legal and associated fees as part of the transaction.
**Summary:**
Discover an exceptional opportunity to develop a bespoke home in the picturesque village of Aberthin, Cowbridge. This generous 0.12-acre building plot comes with planning permission to construct two spacious, modern detached houses, each offering around 2,500 sq/ft of versatile living space spread across three floors. The thoughtfully designed layout includes ample bedrooms, multiple living areas, and bi-fold doors that lead to private gardens, ideal for family gatherings and entertaining.
Situated in a tranquil lane, you will enjoy far-reaching views and immediate access to local amenities, including renowned schools and recreational facilities. With fast broadband and average mobile signal, this location balances rural charm and connectivity. Whether you’re a family looking for a dream home or an investor seeking value in a desirable location, this plot presents an exciting opportunity that won’t last long. Don’t miss the chance to create the perfect retreat tailored to your needs!
Plot for sale in Llanquian Road, Aberthin, Cowbridge, CF71 — £300,000 • 1 bed • 1 bath • 2500 ft²
Plot for sale in Plots at The Laurels, Llanquian Road, Aberthin, Near Cowbridge, Vale of Glamorgan, CF71 7HE, CF71 — £600,000 • 1 bed • 1 bath • 2378 ft²
Plot for sale in Graig Penllyn, Cowbridge, CF71 — £450,000 • 6 bed • 4 bath • 1927 ft²
Plot for sale in Plot Of Land With Planning Permission, Graig Penllyn, Cowbridge, Vale of Glamorgan, CF71 7RU, CF71 — £200,000 • 1 bed • 1 bath • 1250 ft²
Plot for sale in Plot Adjacent to the Red Lion, Pendoylan, The Vale of Glamorgan CF71 7UJ, CF71 — £285,000 • 4 bed • 2 bath • 2000 ft²
Plot for sale in Prime Building Plot, Heol Spencer, Coity, Bridgend, CF35 — £300,000 • 1 bed • 1 bath






















