CF71 7RT - Plot for sale in Graig Penllyn, Cowbridge, CF71

View on Property Piper

Plot for sale in Graig Penllyn, Cowbridge, CF71

Summary - DANYGRAIG, LANE - JUNCTION THE RHIW TO JUNCTION PONT Y RHYD CF71 7RT

6 bed 4 bath Plot

**Standout Features:**
- Exclusive 0.8-acre serviced building plot
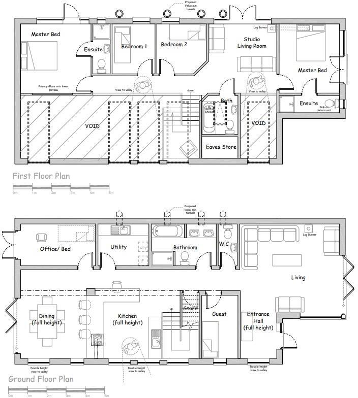
- Planning permission for a modern 6-bedroom, 3-bathroom home
- Solar panels and EV car charging point
- Located in popular Graig Penllyn, within Cowbridge Comprehensive School catchment area
- Foundations, groundworks, and rear retaining wall already completed
- Freehold property with no further Section 106 payments due

**Summary:**
Seize this rare opportunity to own a sizeable 0.8-acre building plot in the highly desirable village of Graig Penllyn, Cowbridge. This unique offering comes with planning permission (ref: 2020/01370/FUL and 2024/00717/FUL) to build a stunning 6-bedroom, 3-bathroom detached home designed for modern living, complete with ample natural light from extensive fenestration and an A-rated EPC for energy efficiency.

Nestled in a tranquil setting yet just moments from Cowbridge's vibrant amenities, this plot benefits from completed groundworks and foundations, making it a prime candidate for a quick build process. The property is enhanced by green technologies like solar panels and an EV car charging point, ensuring not only comfort and security but also sustainable living. With community amenities such as the Barley Mow pub, playgrounds, and sports facilities nearby, it's a perfect enclave for family life.

Don’t miss out on this incredible chance to create your dream home in one of the Vale of Glamorgan’s most sought-after villages—this unique plot is ready for your vision!

Property Details

Brochure Descriptions

Image Descriptions

Floorplan Description

Rooms

Textual Property Features

Detected Visual Features

EPC Details

Nearest Bars And Restaurants

,,,,}

Nearest General Shops

,,}

Nearest Grocery shops

,,}

Nearest Supermarkets

,,}

Nearest Religious buildings

,,}

Nearest Medical buildings

,,,}

Nearest Airports

}

Nearest Leisure Facilities

,,,,}

Nearest Tourist attractions

,,}

Nearest Train stations

,,,,}

Nearest Bus stations and stops

,,,,}

Nearest Hotels

,,}

Tags

Local Market Stats

Similar Properties

Meta

High Res Images

Compatible Images

Low res Images

Thumbnails

Raw Images

High Res Floorplan Images

Compatible Floorplan Images

Low res Floorplan Images

FloorplanImages Thumbnail

Raw Floorplan Images