**Standout Features:**
- Large building plot for a bespoke detached house (approx. 2,500 sq ft)
- Located on the outskirts of Aberthin with far-ranging countryside views
- Freehold tenure with mains services accessible to the roadway
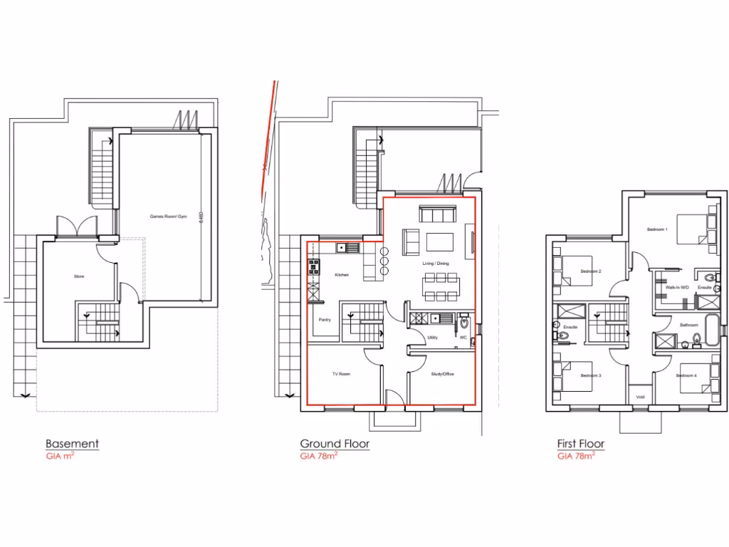
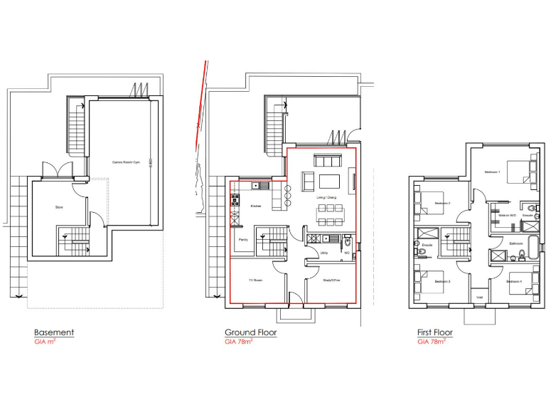
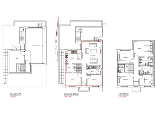
- Planning permission approved for a well-designed three-story layout
- Excellent catchment area for Cowbridge Comprehensive School
- Peaceful lane offering a blend of rural tranquility and community amenities
**Summary:**
Discover a unique opportunity to build your dream home on this prime 0.12-acre plot in Aberthin. Approved planning grants the potential for a stunning, contemporary three-level detached residence, thoughtfully designed to offer expansive living spaces. Envision your future with a ground floor entrance leading to a versatile study, a spacious open-plan kitchen and living area with bi-folding doors opening onto a garden ideal for outdoor leisure, along with four generous bedrooms on the upper floors, two featuring en suites.
Perfectly positioned, this scenic plot offers breathtaking countryside views and easy access to the neighboring Stalling Down Common for delightful walks. Enjoy the harmonious blend of rural charm and modern convenience, with Cowbridge's vibrant market town just minutes away, offering excellent amenities, schools, and recreational facilities. Although the S.106 payment of £27,770.40 will be required, this parcel of land is an exciting investment for families or individuals seeking a bespoke living experience in a low-crime, community-focused area. **Act quickly—such exceptional building opportunities are not available for long!**
Plot for sale in Llanquian Road, Aberthin, Cowbridge, CF71 — £300,000 • 1 bed • 1 bath • 2500 ft²
Plot for sale in Plots at The Laurels, Llanquian Road, Aberthin, Near Cowbridge, Vale of Glamorgan, CF71 7HE, CF71 — £600,000 • 1 bed • 1 bath • 2378 ft²
Plot for sale in Graig Penllyn, Cowbridge, CF71 — £450,000 • 6 bed • 4 bath • 1927 ft²
Plot for sale in Plot Of Land With Planning Permission, Graig Penllyn, Cowbridge, Vale of Glamorgan, CF71 7RU, CF71 — £200,000 • 1 bed • 1 bath • 1250 ft²
Plot for sale in Plot Adjacent to the Red Lion, Pendoylan, The Vale of Glamorgan CF71 7UJ, CF71 — £285,000 • 4 bed • 2 bath • 2000 ft²
Plot for sale in Prime Building Plot, Heol Spencer, Coity, Bridgend, CF35 — £300,000 • 1 bed • 1 bath






















