Build your three-bedroom cottage with garage in idyllic Derbyshire countryside.
Permanent planning consent granted and implemented for a three-bedroom detached cottage
Consent includes off-road parking and permission to build a garage
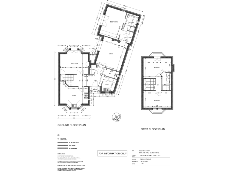
Approx. 140.7 sq m / 1,514 sq ft proposed accommodation (two-storey)
Large, private plot with mature beech hedge, trees and stone wall boundaries
Set at end of quiet country lane with separate gated pedestrian access
Located in highly sought Derbyshire village; good local amenities and schools
Rural utilities not specified; average broadband and mobile signal
Plot requires full build costs, contractor management and service connections
This large freehold building plot comes with permanent, implemented planning consent for a three-bedroom detached cottage (approx. 140.7 sq m / 1,514 sq ft). The approval includes off-road parking and consent to build a garage, making it a clear self‑build opportunity in a highly sought Derbyshire village. The site sits at the end of a quiet country lane with separate gated pedestrian access and mature boundary planting for privacy.
The garden area is already established with a lawn, tall European beech hedge to the west, ash, lilac and holly trees, and dry stone walls to the south and east. Local amenities include a village pub, church, shop, sports field and an outstanding primary school; Wirksworth is three miles away and Carsington Water is within easy reach. Flood risk is nil and the area is very affluent with low crime.
Buyers should note this is a plot sale: the consent is implemented but the property still requires construction, project management and full build budget planning. Utilities and service connections are not detailed here and average mobile and broadband speeds reflect a rural location. The setting and planning position will suit family buyers seeking a long-term home, experienced self‑builders, or purchasers wishing to commission a contractor to deliver the finished house.
With a clear planning history and strong village location, this plot offers a relatively straightforward route to a finished three‑bed home with good privacy, countryside views and scope to add a garage and parking as approved. Prospective buyers should obtain up-to-date construction quotes and checks on services before exchange.
Plot for sale in Building Plot with planning for 1 detached dwelling, Highcroft Cottage, Parkhead, Crich, Matlock, DE4 5GY, DE4 — £450,000 • 1 bed • 1 bath • 3819 ft²
Plot for sale in Hallmoor Road, Darley Dale, DE4 — £350,000 • 1 bed • 1 bath
Plot for sale in Windy Lane, Little Eaton, Derby, DE21 — £550,000 • 1 bed • 1 bath • 3047 ft²
Land for sale in Brassington Lane Bradbourne Ashbourne, Derbyshire, DE6 1PD, DE6 — £900,000 • 1 bed • 1 bath • 7000 ft²
Land for sale in The Common, Crich, DE4 — £220,000 • 1 bed • 1 bath • 2582 ft²
Land for sale in Brassington Lane, Bradbourne, Ashbourne Derbyshire DE6 1PD, DE6 — £550,000 • 1 bed • 1 bath • 21780 ft²


















































