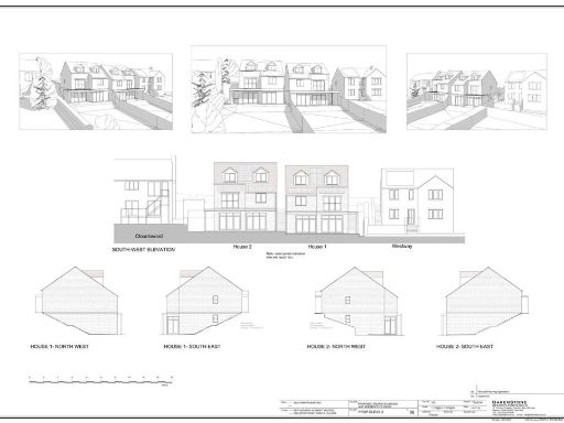
Near-ready consented scheme with far-reaching Derbyshire valley views.
Planning permission for two four-bedroom houses (Ref: 24/00299/FUL)
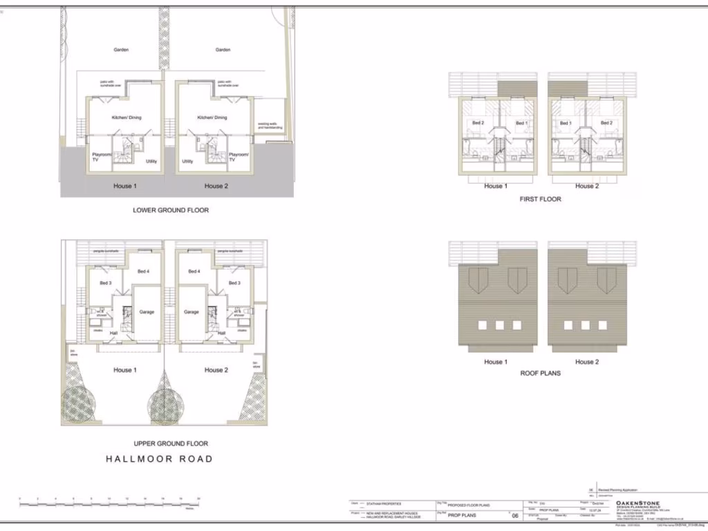
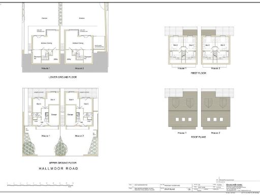
A rare development plot in Darley Dale with planning permission (Ref: 24/00299/FUL) for two generously sized four-bedroom houses. The site extends to approximately 0.23 acres (0.09 hectares) and sits on a gentle slope, offering far-reaching rural views across the Derbyshire valley. Each proposed dwelling includes a good-sized garage, private off-road parking and garden/patio areas.
Permission is granted with conditions and all matters are reserved; copies of the decision are available from Derbyshire Dales District Council. The plot formerly contained Plantation Cottage and now includes an existing timber garage and workshop; the site is overgrown and contains a rundown A-frame structure that will require clearance or demolition prior to construction.
Services are believed to be nearby but not confirmed — interested parties must make their own enquiries. The land is freehold and will suit a small-scale developer or investor seeking a near-ready consented scheme in a prosperous rural location. Note: broadband speeds are slow and some site preparation and vegetation clearance will be needed before works commence.
Detached house for sale in Mansfield Road, Hasland, S41 — £95,000 • 1 bed • 1 bath • 2600 ft²
Plot for sale in Building Plot with planning for 1 detached dwelling, Highcroft Cottage, Parkhead, Crich, Matlock, DE4 5GY, DE4 — £450,000 • 1 bed • 1 bath • 3819 ft²
Detached house for sale in Mansfield Road, Hasland, S41 — £95,000 • 1 bed • 1 bath • 1725 ft²
Land for sale in Dale Road South, Matlock, DE4 — £550,000 • 1 bed • 1 bath • 9952 ft²
Land for sale in Brassington Lane Bradbourne Ashbourne, Derbyshire, DE6 1PD, DE6 — £900,000 • 1 bed • 1 bath • 7000 ft²
Plot for sale in Building Plot with planning consent, Kirk Ireton, DE6 — £250,000 • 1 bed • 1 bath • 1514 ft²














































