**Standout Features:**
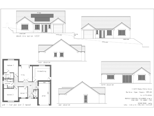
- Two large building plots with approved planning consent for three-bedroom detached bungalows.
- Sought-after location in the historic village of Crich, close to various local amenities.
- Freehold tenure with a total plot size of 2,582 square feet.
- Planning reference AVA/2024/0396 available for download from Amber Valley Borough Council.
- Low crime rate in an affluent community with excellent mobile signal.
**Summary:**
Take advantage of this rare opportunity to own two expansive building plots in the highly desirable village of Crich. With planning consent already granted for the construction of two single-storey, three-bedroom detached bungalows, this property offers significant potential for investment or to create your dream home. Nestled in a vibrant community with amenities including shops, a bakery, and restaurants, you can enjoy the charm of rural life while maintaining easy access to major roads like the A38 and M1.
Surrounded by lush green spaces, this plot is perfect for families, given its proximity to top-rated schools like Crich Junior School, acclaimed for its outstanding Ofsted rating. Although the plots are located in an area with historic significance, please note that a soil test is the buyer's responsibility. Take swift action—opportunities like this in such a prime location are not available for long!
Plot for sale in Building Plot with planning for 1 detached dwelling, Highcroft Cottage, Parkhead, Crich, Matlock, DE4 5GY, DE4 — £450,000 • 1 bed • 1 bath • 3819 ft²
Land for sale in High Street, Tibshelf, DE55 — £350,000 • 1 bed • 1 bath
Plot for sale in Matlock Green, Matlock, Derbyshire, DE4 — £100,000 • 2 bed • 2 bath • 742 ft²
Plot for sale in Hallmoor Road, Darley Dale, DE4 — £350,000 • 1 bed • 1 bath
3 bedroom detached house for sale in The Common, Crich, DE4 — £430,000 • 3 bed • 1 bath • 4791 ft²
Detached house for sale in Mansfield Road, Hasland, S41 — £95,000 • 1 bed • 1 bath • 2600 ft²






















