Turn-key two-bedroom with private garden in lively Peckham.
Newly renovated two-bedroom conversion with period features
Private garden for outdoor entertaining and relaxation
Compact 608 sq ft — small overall living footprint
Share of freehold tenure, EPC C, low council tax band
One bathroom only; best for couples or small families
On-street parking only; no allocated space
Solid brick walls assumed uninsulated — potential heat loss
Ad hoc service charge rather than a fixed fee
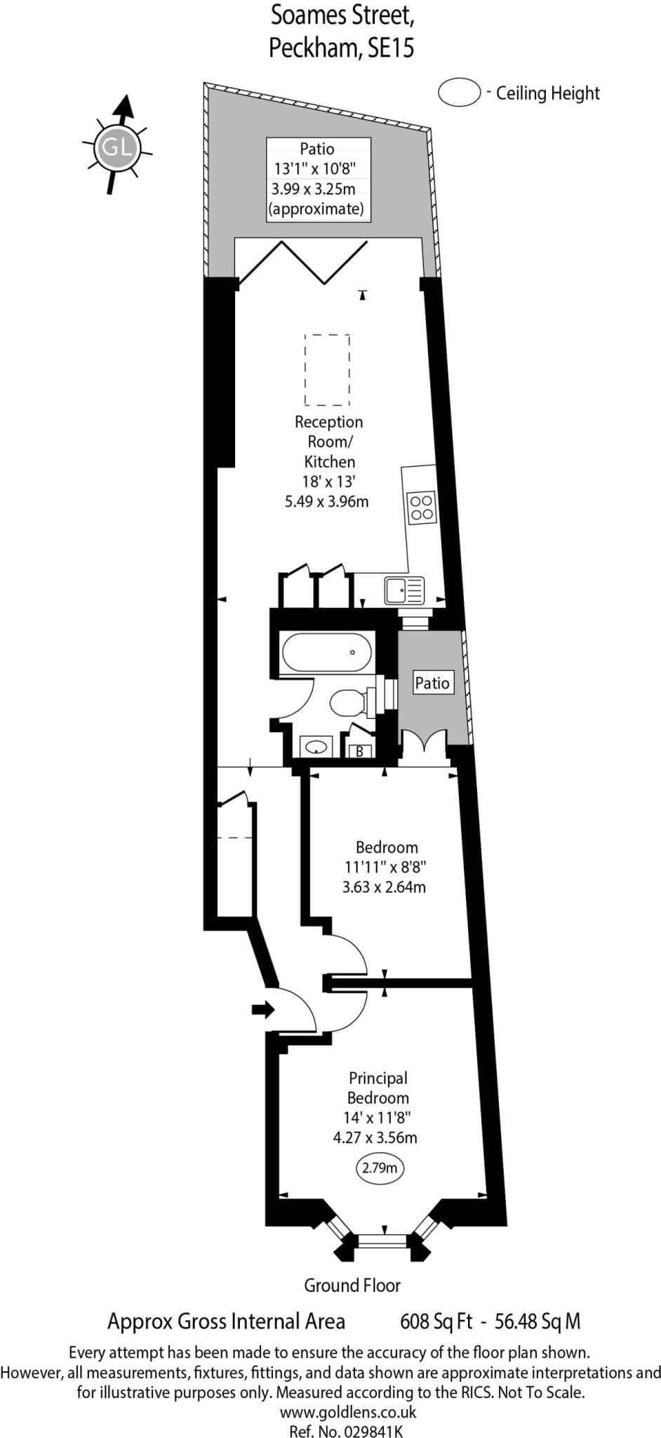
Light-filled, newly renovated two-bedroom on Soames Street offers a compact, move-in-ready home for first-time buyers. The conversion keeps period character—high ceilings and herringbone flooring—while a contemporary kitchen and new bathroom deliver modern convenience. A private garden extends living space for alfresco dining and relaxation.
Practical details suit urban living: share of freehold tenure, double glazing, mains gas central heating, and fast broadband. On-street residents’ parking is available but no allocated parking; council tax band is low. The area benefits from strong local amenities, cafes, parks and good schools nearby.
Be aware of a few constraints: the flat is small at about 608 sq ft with one bathroom, and the building’s solid brick walls are assumed uninsulated. Service charge is ad hoc rather than fixed, and street parking can be limited at peak times. These points are offset by the high-quality refurbishment and turn-key condition.
2 bedroom flat for sale in Copleston Road, Peckham, SE15 — £775,000 • 2 bed • 1 bath • 715 ft²
2 bedroom flat for sale in Soames Street, London, SE15 — £630,000 • 2 bed • 1 bath • 619 ft²
2 bedroom flat for sale in Marsden Road, Peckham, SE15 — £799,999 • 2 bed • 1 bath • 872 ft²
2 bedroom flat for sale in Friern Road, East Dulwich, SE22 — £775,000 • 2 bed • 1 bath • 706 ft²
2 bedroom apartment for sale in Friern Road, East Dulwich, London, SE22 — £600,000 • 2 bed • 1 bath • 696 ft²
3 bedroom flat for sale in Oglander Road, London, SE15 — £700,000 • 3 bed • 1 bath • 830 ft²










































