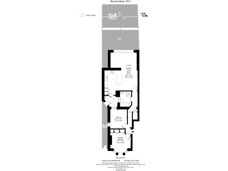
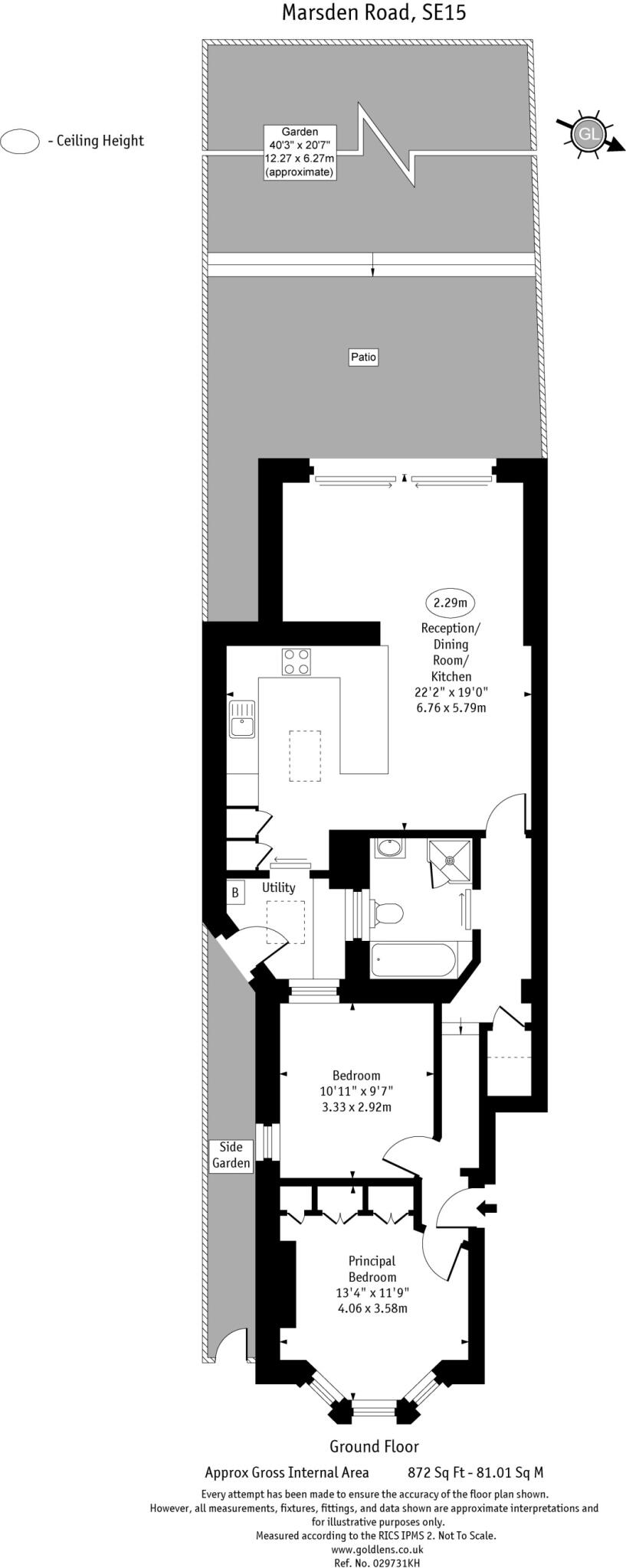
**Standout Features:**
- Bright and spacious Victorian flat with period features.
- Open-plan modern kitchen with skylights and garden views.
- Unique utility room with worktop.
- Private entrance to the flat.
- Large landscaped private rear garden, perfect for outdoor living.
- Two double bedrooms with ample natural light.
- Renovated high-end bathroom with luxurious finishes.
**Potential Concerns:**
- Leasehold with 112 years remaining; annual service charge of approximately £900 and ground rent of £200.
- No insulation noted in the solid brick walls.
Step into this beautifully presented Victorian flat, nestled in a tranquil tree-lined street, where modern living meets classic charm. Boasting a stunning open-plan kitchen and dining area illuminated by skylights, this home perfectly encapsulates the blend of style and comfort. The contemporary kitchen features sleek dissipating design elements, and opens up to a large landscaped garden—ideal for alfresco dining and entertaining amidst verdant greenery.
With two spacious double bedrooms that invite natural light, and an exquisite bathroom showcasing high-end finishes, this flat is a serene retreat in the heart of London. Conveniently located with easy access to nearby shops and parks, as well as excellent transport links, it offers the urban lifestyle you’ve been dreaming of. Although the property is leasehold with a modest charge and some insulation improvements might be necessary, its unique features and abundant outdoor space make it a fantastic investment for families or professionals seeking comfort and style. Don't miss the chance to make this charming space your home!
2 bedroom flat for sale in Oxenford Street, London, SE15 — £650,000 • 2 bed • 1 bath • 683 ft²
2 bedroom flat for sale in Avondale Rise, London, SE15 — £625,000 • 2 bed • 1 bath • 590 ft²
2 bedroom apartment for sale in East Dulwich Grove, London, SE22 — £750,000 • 2 bed • 2 bath • 770 ft²
2 bedroom flat for sale in Friern Road, East Dulwich, SE22 — £550,000 • 2 bed • 1 bath • 757 ft²
3 bedroom flat for sale in Oglander Road, London, SE15 — £700,000 • 3 bed • 1 bath • 830 ft²
2 bedroom flat for sale in Bellenden Road, London, SE15 — £675,000 • 2 bed • 1 bath • 794 ft²










































