**Standout Features:**
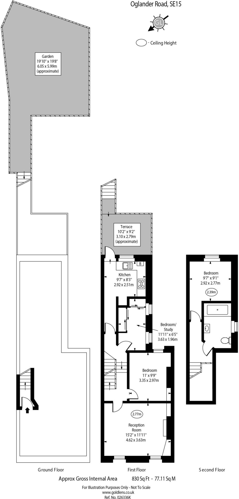
- Charming first-floor, split-level Victorian conversion
- 3 bedrooms and 1 bathroom
- Spacious private terrace and 30ft rear garden
- Share of Freehold with a long lease (999 years)
- Generous lounge with large windows and period features
- Convenient access to Peckham Rye and East Dulwich
- Affordable council tax band (B)
**Potential Concerns:**
- Above-average crime rate in the area
- Solid brick walls may lack insulation
Nestled in the vibrant heart of Peckham Rye, this captivating Victorian flat offers an ideal blend of classic charm and modern conveniences. Spanning two levels, the home features a generous lounge that floods with natural light, along with two versatile bedrooms on the first floor, including one that can serve as a stylish home office. The kitchen leads seamlessly to a compact outdoor terrace, perfect for urban gardening, as well as a beautifully maintained 30ft rear garden—an oasis for relaxation or entertaining.
On the second floor, you'll find an additional double bedroom and a contemporary bathroom, providing privacy and comfort. Enjoy the best of both worlds with peaceful surroundings and easy access to local hotspots, including independent cafes and shops. Families will appreciate the proximity to several reputable schools, while young professionals can take advantage of fast broadband and local amenities within this cosmopolitan setting. 
Although the property features solid brick walls that may not be insulated and is located in a neighborhood with an above-average crime rate, the Share of Freehold ownership makes this a valuable investment option. Don’t miss the chance to own this delightful property that combines warmth, character, and urban convenience—contact today to arrange a viewing before it’s swept off the market!
 2 bedroom flat for sale in Avondale Rise,  London, SE15 — £625,000 • 2 bed • 1 bath • 590 ft²
 2 bedroom flat for sale in Avondale Rise,  London, SE15 — £625,000 • 2 bed • 1 bath • 590 ft² 2 bedroom flat for sale in Marsden Road,  Peckham, SE15 — £799,999 • 2 bed • 1 bath • 872 ft²
 2 bedroom flat for sale in Marsden Road,  Peckham, SE15 — £799,999 • 2 bed • 1 bath • 872 ft² 3 bedroom flat for sale in Lordship Lane,  London, SE22 — £650,000 • 3 bed • 1 bath • 1068 ft²
 3 bedroom flat for sale in Lordship Lane,  London, SE22 — £650,000 • 3 bed • 1 bath • 1068 ft² 4 bedroom terraced house for sale in Choumert Road, Peckham Rye, SE15 — £1,495,000 • 4 bed • 2 bath • 1530 ft²
 4 bedroom terraced house for sale in Choumert Road, Peckham Rye, SE15 — £1,495,000 • 4 bed • 2 bath • 1530 ft² 2 bedroom flat for sale in Oxenford Street,  London, SE15 — £650,000 • 2 bed • 1 bath • 683 ft²
 2 bedroom flat for sale in Oxenford Street,  London, SE15 — £650,000 • 2 bed • 1 bath • 683 ft² 2 bedroom flat for sale in Copleston Road,  Peckham, SE15 — £775,000 • 2 bed • 1 bath • 715 ft²
 2 bedroom flat for sale in Copleston Road,  Peckham, SE15 — £775,000 • 2 bed • 1 bath • 715 ft²


































