Fully serviced village plot with planning permission for a detached eco-friendly bungalow..
- Full planning permission granted (NKDC ref 25/0163/FUL)
- Fully serviced plot; utilities reportedly in situ
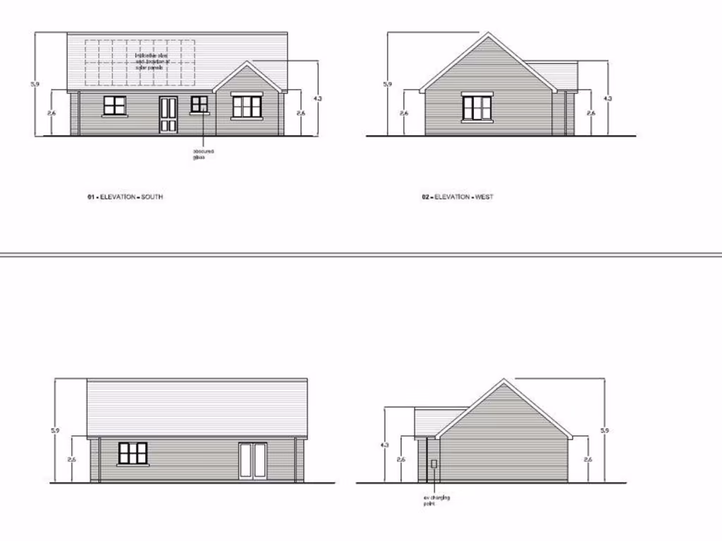
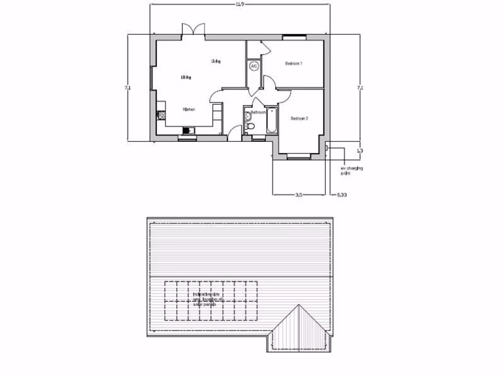
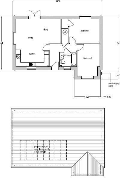
- Design includes solar panels and EV charge point provision
- Gated driveway with room for several vehicles
- Space for garage on drawings; additional consents may be needed
- First-floor accommodation (c.540 sq ft) subject to further consents
- No flood risk; fast broadband; very low local crime
- Plot requires construction — buyer to arrange build and approvals
A fully serviced residential building plot on Gray Lane, Witham St. Hughes, with full planning permission (NKDC ref 25/0163/FUL) for a detached bungalow. The plot is set on the village edge with gated driveway access, a generous rear garden and countryside walks immediately adjacent. Services are already in place and the design includes eco-friendly features such as provision for solar panels and an EV charge point.
The approved scheme covers a single-storey bungalow footprint with scope to create approximately 540 sq ft of first-floor accommodation, subject to the necessary consents. There is space shown for a garage on the drawings, but any additional construction would require separate approval. Broadband is reported as fast and the area is very low crime, making the site suitable for a family home, downsizers seeking a single-storey layout, or an investor looking to build and sell or let.
Buyers should note this is a plot sale — the property will require a builder and completion of the approved works before occupation. The parcel is sold freehold and there is no flood risk recorded, but council tax banding is not yet applicable until a dwelling is built. The plot presents a clear opportunity to deliver a modern, low-carbon home in a very affluent, white suburban community close to local schools and village amenities.
Interested parties are advised to review the NKDC planning portal for full details of the consent and any conditions. The site represents a straightforward build plot with planning in place, good local services and strong potential for a finished property that benefits from countryside views and off-street parking.
 Land for sale in Main Road, Washingborough, LN4 — £250,000 • 1 bed • 1 bath
 Land for sale in Main Road, Washingborough, LN4 — £250,000 • 1 bed • 1 bath Plot for sale in Church Lane,Saxilby,Lincoln,LN1 2PE, LN1 — £145,000 • 4 bed • 2 bath • 2069 ft²
 Plot for sale in Church Lane,Saxilby,Lincoln,LN1 2PE, LN1 — £145,000 • 4 bed • 2 bath • 2069 ft² Plot for sale in Church Lane,Saxilby,Lincoln,LN1 2PE, LN1 — £145,000 • 4 bed • 2 bath • 2069 ft²
 Plot for sale in Church Lane,Saxilby,Lincoln,LN1 2PE, LN1 — £145,000 • 4 bed • 2 bath • 2069 ft² Plot for sale in Building Plot -Paddock Lane, Lincoln, LN4 — £80,000 • 1 bed • 1 bath
 Plot for sale in Building Plot -Paddock Lane, Lincoln, LN4 — £80,000 • 1 bed • 1 bath Land for sale in Enterprise West Lindsey, Skellingthorpe Road, Saxilby, Lincoln, LN1 2LR, LN1 — £370,500 • 1 bed • 1 bath
 Land for sale in Enterprise West Lindsey, Skellingthorpe Road, Saxilby, Lincoln, LN1 2LR, LN1 — £370,500 • 1 bed • 1 bath Land for sale in Waterford Lane, Cherry Willingham, Lincoln, Lincolnshire, LN3 4AN, LN3 — £199,500 • 1 bed • 1 bath • 11761 ft²
 Land for sale in Waterford Lane, Cherry Willingham, Lincoln, Lincolnshire, LN3 4AN, LN3 — £199,500 • 1 bed • 1 bath • 11761 ft²


























