Substantial 0.5-acre plot with full planning permission and countryside views..
- Approx 0.5 acre building plot with countryside views
- Full planning permission granted (NKDC ref 18/1687/FUL)
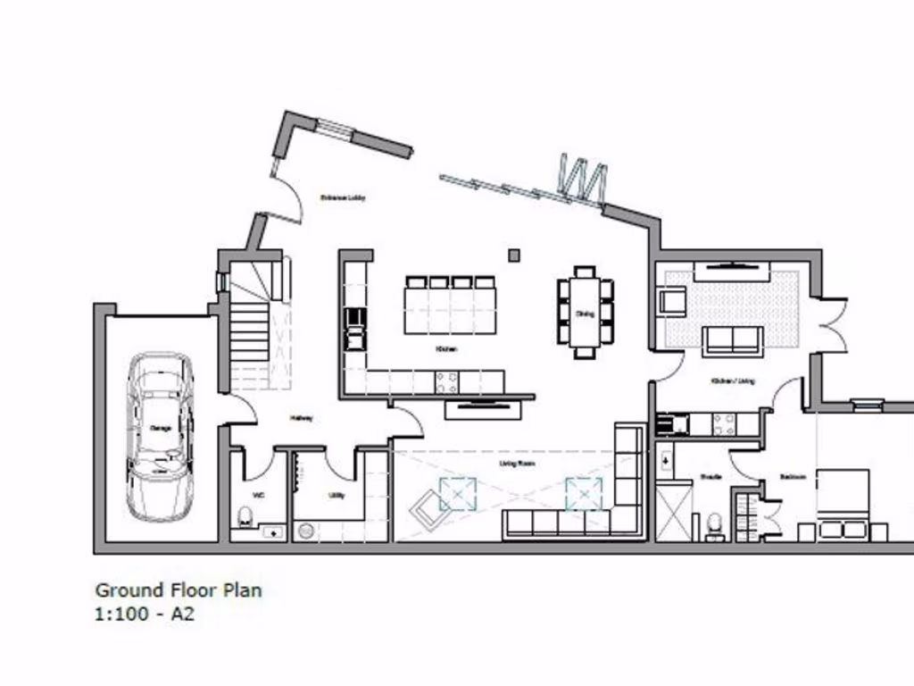
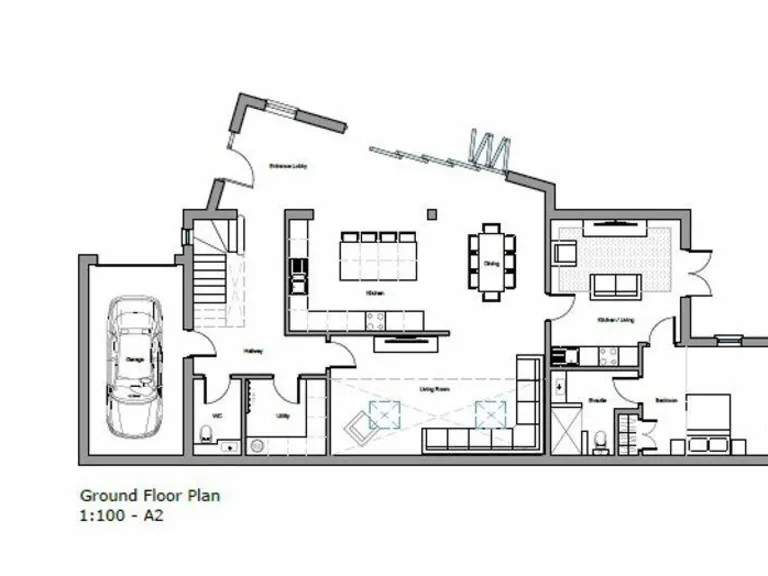
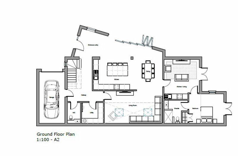
- Proposed 5 double bedrooms, 5 bathrooms, open-plan living
- Triple garage built on site; storage/room above already present
- Gated driveway, large lawned garden and mature trees
- No flood risk; excellent broadband and mobile signal
- Tenure unknown — buyer to verify
- Requires full construction works and associated costs
A rare, fully permitted building plot of approximately 0.5 acres in Washingborough, set on Main Road with elevated countryside views. Full planning permission (NKDC ref 18/1687/FUL) exists for a contemporary, five-double-bedroom detached house with five bathrooms, a triple garage with storage/room above and gated driveway. The triple garage is already constructed on site, offering immediate covered parking and potential for a home office or ancillary accommodation.
This opportunity suits a developer, investor or buyer wanting a bespoke new home in a very affluent, low-crime village setting close to good primary and secondary schools. The design proposes spacious, open-plan living with bifold doors to the garden, vaulted living areas and an annexe-style ground-floor bedroom. Broadband and mobile signal are strong; the site is not at flood risk.
Buyers should note material points: the plot is undeveloped and will require full construction costs, statutory connections and on-site works to implement the approved scheme. Tenure is recorded as unknown in the provided information — purchasers must verify. Planning details are available on the NKDC portal under reference 18/1687/FUL.
Overall, this is a significant plot with permitted contemporary designs and strong local demand drivers — countryside outlook, excellent connectivity and school provision — suited to anyone prepared to deliver a high-spec new build.
Land for sale in Lincoln Road, Washingborough, Lincoln, LN4 1AT, LN4 — £1,200,000 • 1 bed • 1 bath
Land for sale in Building Plot, Gray Lane, Witham St. Hughes, Lincoln, LN6 — £115,000 • 1 bed • 1 bath • 540 ft²
Plot for sale in Building Plot -Paddock Lane, Lincoln, LN4 — £80,000 • 1 bed • 1 bath
4 bedroom semi-detached house for sale in 41 Main Road, Washingborough, LN4 — £635,000 • 4 bed • 2 bath • 2809 ft²
Land for sale in Waterford Lane, Cherry Willingham, Lincoln, Lincolnshire, LN3 4AN, LN3 — £199,500 • 1 bed • 1 bath • 11761 ft²
Land for sale in Fieldside, Ingham, Lincoln, LN1 — £115,000 • 3 bed • 2 bath • 1771 ft²


















































