Rare opportunity near Lincoln ideal for self-build or small development.
Planning previously passed for 2,069 sq ft detached 4-bed family house (App 142505)
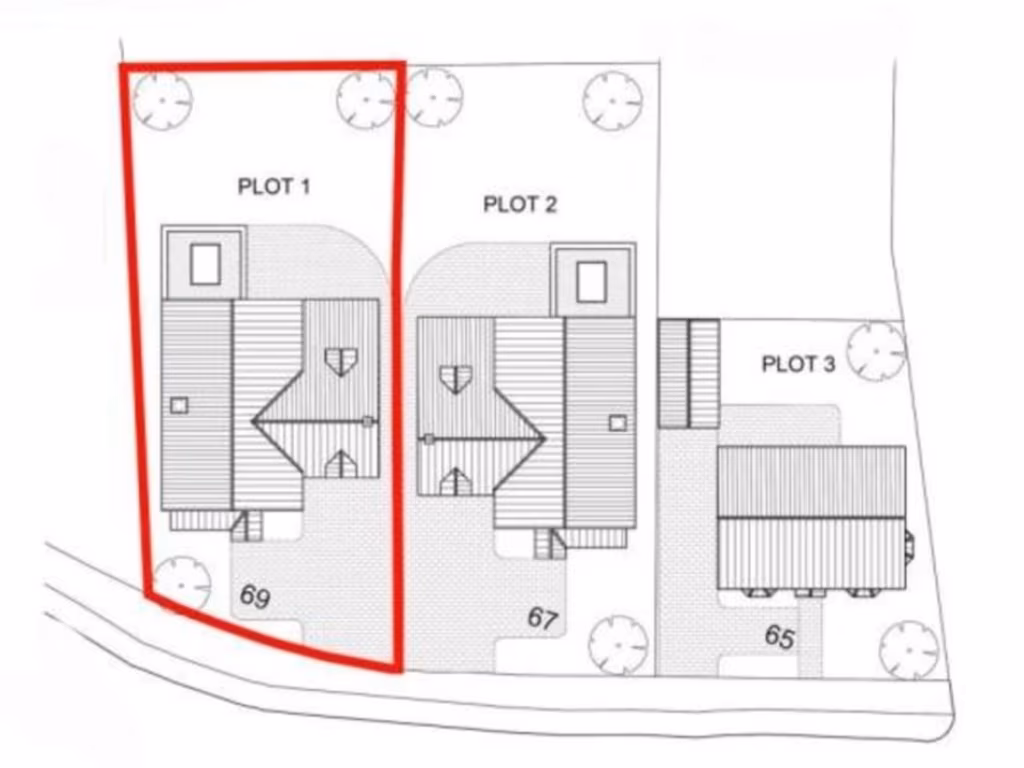
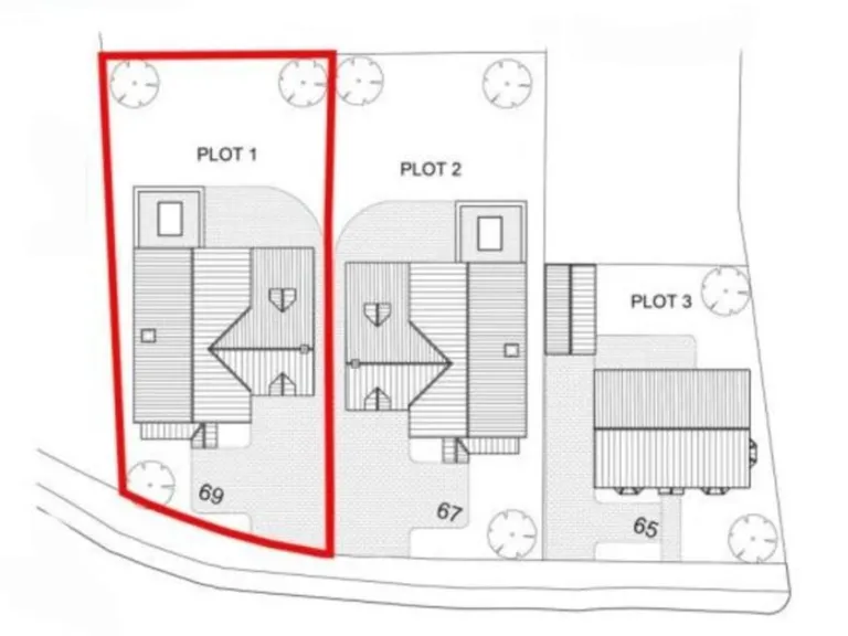
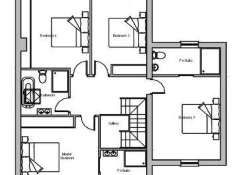
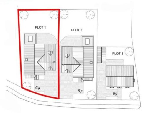
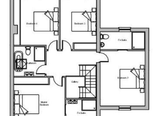
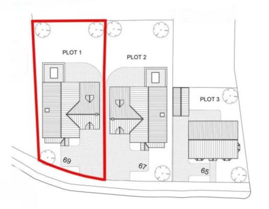
A rare serviced building plot positioned in the well served village of Saxilby, with planning previously passed for a substantial 2,069 sq ft detached four-bedroom family home. The plot is freehold, large in size and comes with consent details on West Lindsey District Council (application 142505), making it a practical option for self-builders and small developers.
The location offers village living with quick access to Lincoln, good local schools and low crime levels. The approved design includes a garage and south-facing rear aspects as shown in the reference elevations, giving strong potential for a bright family home with modern finishes.
Buyers should note planning was previously granted but must verify current status and consider associated build costs, procurement and on-site works required to complete the house. There are two plots remaining at this address, presenting an uncommon opportunity for someone seeking control over design and specification rather than a house on an estate.
This plot suits developers, self-builders or investors targeting a modern family home in a desirable, low-risk flood area near city amenities. Interested parties should check the planning portal (application 142505) and allow budget for construction, connections and any required conditions or renewals.
Plot for sale in Church Lane, Saxilby, Lincoln, LN1 2PE, LN1 — £145,000 • 4 bed • 2 bath • 2069 ft²
Land for sale in Enterprise West Lindsey, Skellingthorpe Road, Saxilby, Lincoln, LN1 2LR, LN1 — £370,500 • 1 bed • 1 bath
Land for sale in Building Plot, Gray Lane, Witham St. Hughes, Lincoln, LN6 — £115,000 • 1 bed • 1 bath • 540 ft²
Land for sale in Land to the Rear, 3A & B Church Street, DN21 — £115,000 • 3 bed • 2 bath • 1636 ft²
Land for sale in Brook Street, Hemswell, GAINSBOROUGH, DN21 — £165,000 • 1 bed • 1 bath • 1041 ft²
Land for sale in Main Road, Washingborough, LN4 — £250,000 • 1 bed • 1 bath






























