GU10 4DH - 1 bed rowledge development plot in South West Surrey, GU10…

View on Property Piper

Land for sale in The Long Road, Rowledge, Farnham, GU10

Summary - The Long Road, Rowledge, Farnham, GU10 GU10 4DH

1 bed 1 bath Land

Approved planning for a substantial five-bedroom home on a large, characterful plot..
- Planning approved (WA/2024/01014) for a detached 5-bedroom house
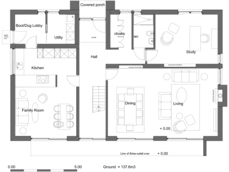
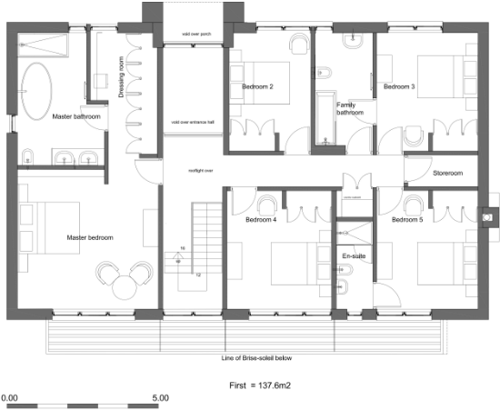
- Approved new dwelling c.275.2 sq m (approx 3,000 sqft)
- Plot c.0.18 acres with existing building c.322 sq m
- Four rear outbuildings (c.16.3 sq m) included on site
- Requires demolition of former Village Hall prior to build
- Tenure and council tax band not specified — verify before purchase
- No recorded flood risk; crime level very low
- Excellent mobile signal; broadband speeds average
An exceptional development plot in Rowledge with planning approval (WA/2024/01014) for a detached five-bedroom house of approximately 275.2 sq m (circa 3,000 sqft). The site occupies about 0.18 acres and currently contains the former Village Hall (c.322 sq m) plus four rear outbuildings — offering a clear redevelopment route or scope for alternative reuse subject to consents.

The approved scheme provides a spacious, modern layout on a large suburban plot within an affluent, low-crime area. Local amenities include shops, a post office and a village pub; excellent mobile coverage and good nearby schools (state and independent) suit a family buyer seeking space and community ties. There is no recorded flood risk for the site.

Practical considerations: the permission requires demolition of the existing building and works to deliver the new dwelling, so buyers should allow for demolition, site clearance and build costs. Tenure and council tax band are not specified in the information provided; these and any service connections should be checked before purchase.

This opportunity suits a family developer or investor wanting a ready-planned, high-spec five-bedroom house in a sought-after suburb. The approved plans, site extent and characterful Edwardian setting give scope to deliver a substantial new home, but accurate cost budgeting and due diligence on tenure, utilities and demolition licences are essential.

Property Details

Image Descriptions

Floorplan Description

Rooms

Textual Property Features

Target Audience

AI Tags

Detected Visual Features

Nearby Schools

Nearest Bars And Restaurants

,,,,}

Nearest General Shops

,,}

Nearest Grocery shops

,,}

Nearest Supermarkets

,,}

Nearest Religious buildings

,,}

Nearest Medical buildings

,,,}

Nearest Airports

}

Nearest Leisure Facilities

,,,,}

Nearest Tourist attractions

,,}

Nearest Train stations

,,,,}

Nearest Bus stations and stops

,,,,}

Nearest Hotels

,,}

Tags

Local Market Stats

AirBnB Data

Similar Properties

Meta

High Res Images

Compatible Images

Low res Images

Thumbnails

Raw Images

High Res Floorplan Images

Compatible Floorplan Images

Low res Floorplan Images

FloorplanImages Thumbnail

Raw Floorplan Images