Planning granted for a large six-bedroom home with double garage and driveway.
Approximately 0.59 acre prime South Farnham plot
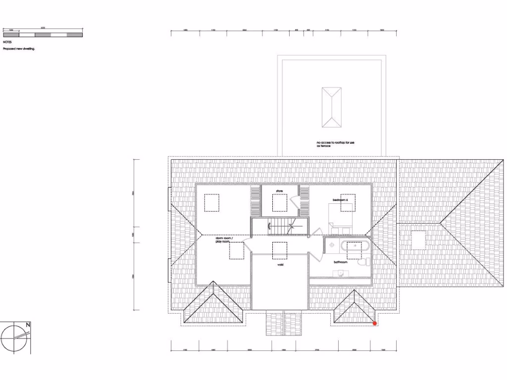
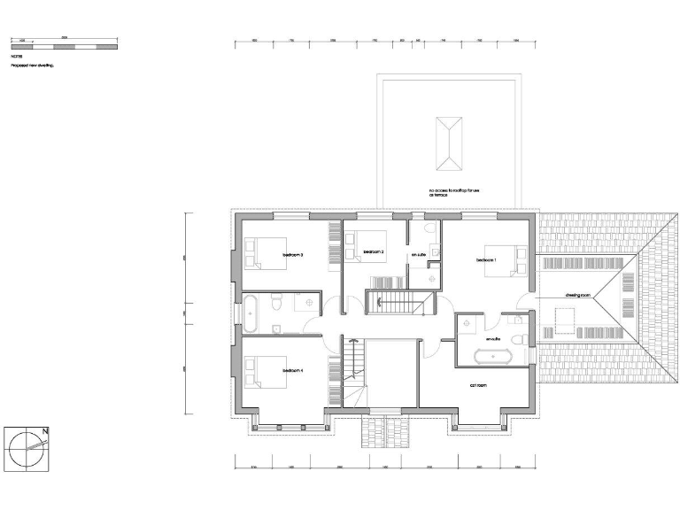
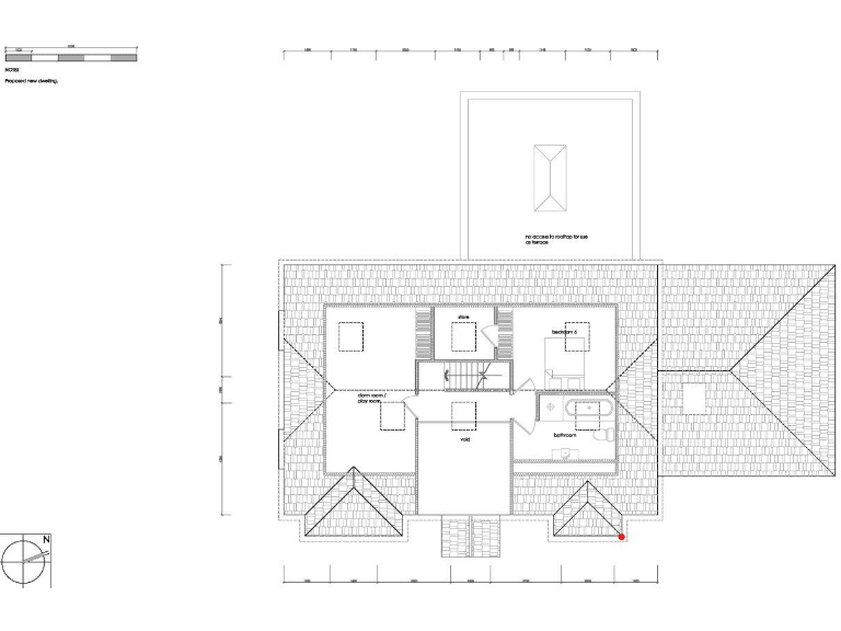
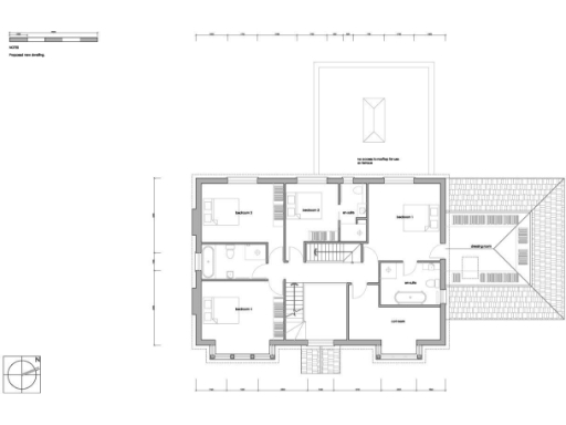
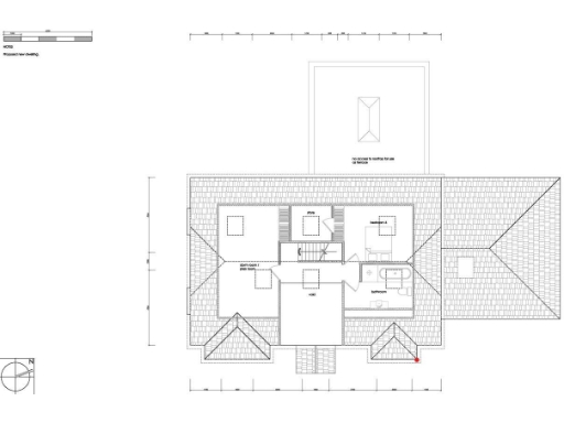
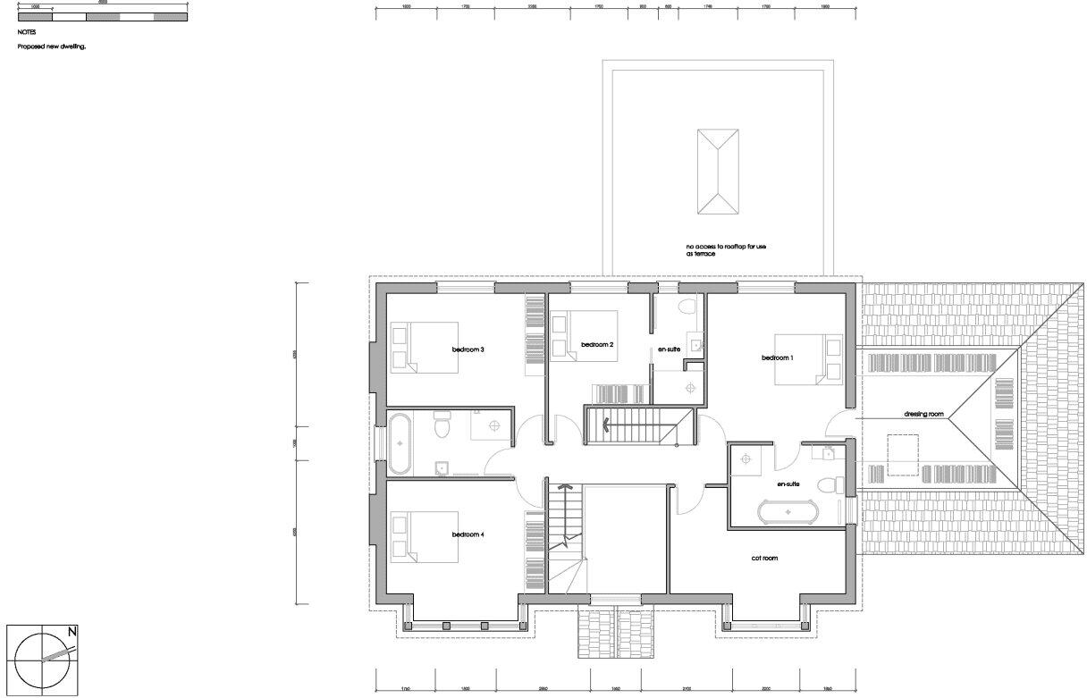
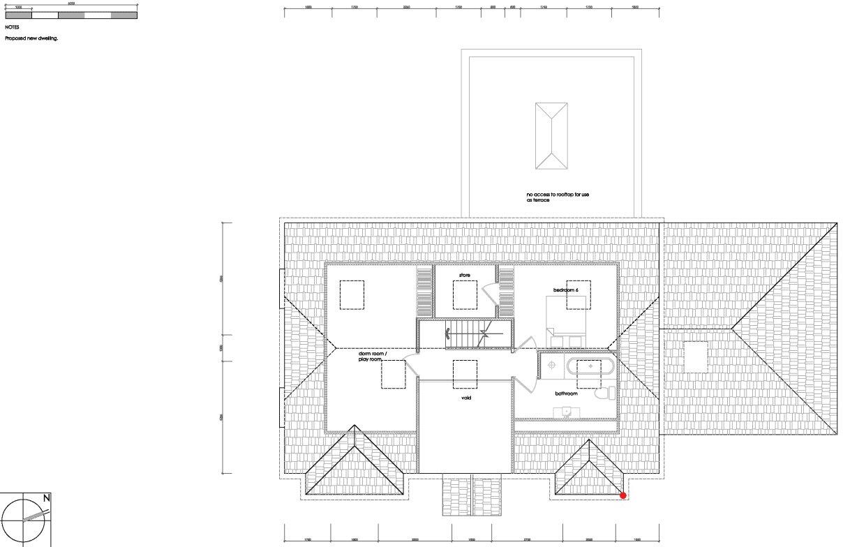
Set on approximately 0.59 of an acre in sought-after South Farnham, this cleared building plot benefits from planning permission for a substantial six-bedroom detached home of about 3,993 sqft. The granted plans deliver generous living spaces: an open-plan kitchen, dining and living area, a ground-floor study, snug and cloakroom, plus multiple bedrooms across three floors including two en suites and a dressing room. Services have been brought to site and the access driveway is already laid and owned with the plot.
This opportunity is aimed at growing families who value space, excellent nearby schools and a quiet, affluent neighbourhood. Edgeborough, Frensham Heights and two top-rated state schools are close by, and the location offers very low local crime and a suburban, village-like feel. The design includes ample driveway parking and an attached double garage, set within a very large private garden for outdoor living and play.
Buyers should note practical considerations: the plot is a new-build opportunity requiring completion, so build costs and project management are factors to budget for. There is a medium local flood risk and broadband speeds are reported as slow; these are important practical points to investigate with relevant specialists. Planning application reference NMA/2018/0038 is in place and the site is exempt from CIL payment.
No onward chain simplifies acquisition for purchasers ready to proceed. Site visits are strictly by appointment only; this is a rare cleared plot with detailed permission already approved, offering a straightforward route to creating a large family home in a prime Farnham location.
4 bedroom detached house for sale in hogs back, seale, farnham, GU10 — £1,750,000 • 4 bed • 3 bath • 3000 ft²
Land for sale in Hogs Back, Farnham, GU10 — £1,750,000 • 1 bed • 1 bath • 28750 ft²
Plot for sale in Arford Common, GU35 — £275,000 • 1 bed • 1 bath
Plot for sale in Hambledon Road, Hydestile, Godalming, GU8 — £1,000,000 • 1 bed • 1 bath • 3748 ft²
Land for sale in Portsmouth Road, Hindhead, GU26 — £450,000 • 1 bed • 1 bath • 2391 ft²
Detached house for sale in Site South of Wilsom Farmhouse, 60 Wilsom Road, Alton, Hampshire, GU34 — £400,000 • 1 bed • 1 bath














































