BS37 8QL - Plot for sale in Development Site | Westerleigh, BS37

View on Property Piper

Plot for sale in Development Site | Westerleigh, BS37

Summary - Development Site | Westerleigh BS37 8QL

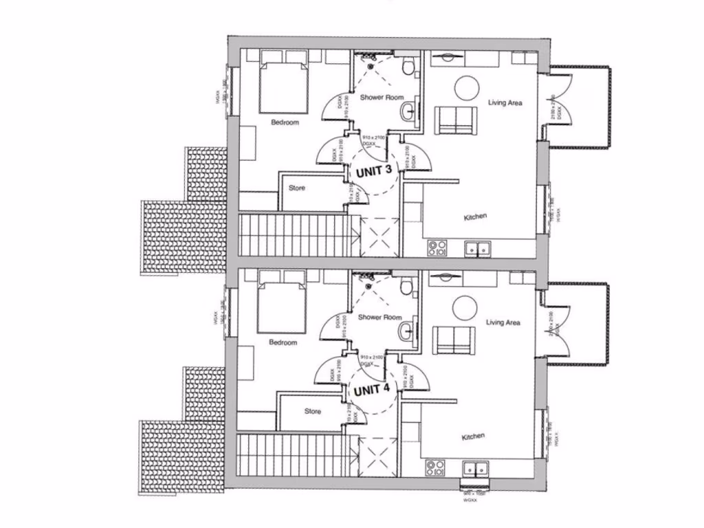
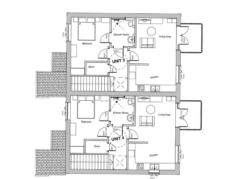
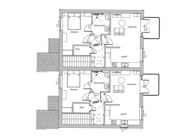
4 bed 4 bath Plot

**Standout Features:**
- Freehold development site (0.18 acres)
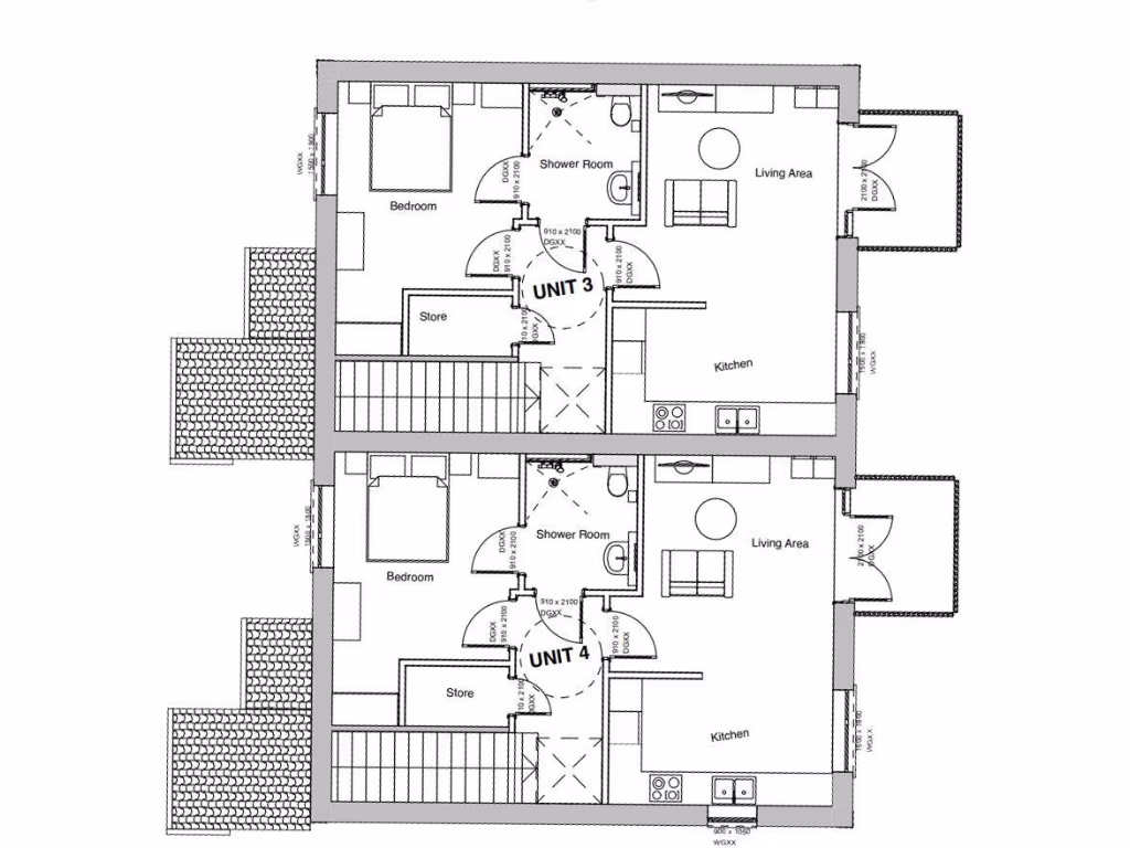
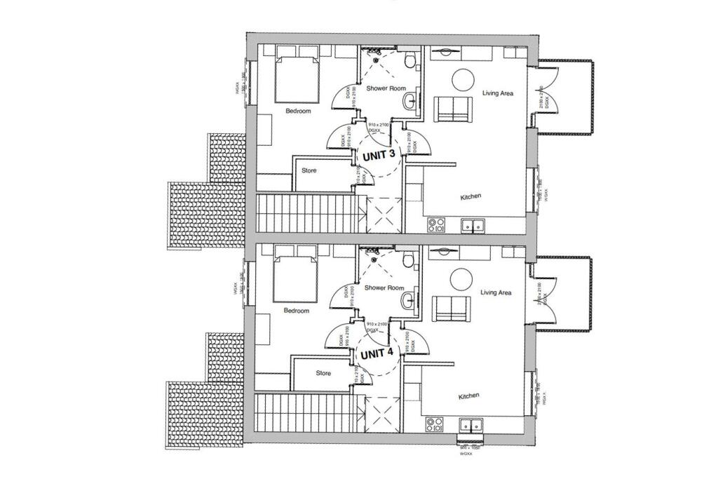
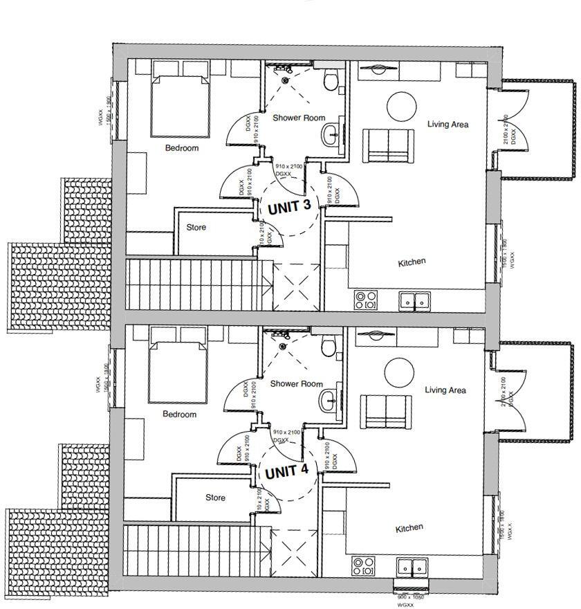
- Planning permission granted for 4 x 1-bedroom apartments
- Each unit includes parking and private access to gardens or balconies
- Located in the picturesque village of Westerleigh
- Extended 8-week completion timeline

**Summary:**
Discover a promising investment opportunity in the charming village of Westerleigh with this freehold development site, ideal for budding developers or investors seeking rental potential. Planning permission has been secured for the construction of four stylish one-bedroom apartments, each thoughtfully designed with an open-plan kitchen, living space, a comfortable bedroom, a bathroom, and access to private outdoor areas including gardens or balconies. With a generous plot size of 0.18 acres, this corner site not only offers ample room for development but also benefits from a convenient location close to local amenities, including public houses, cafes, and recreational facilities.

While this property holds significant development potential, prospective buyers should also consider the due diligence process associated with construction in an average crime area and reviewing the planning specifics outlined in the legal pack. This opportunity invites you to create homes in a peaceful rural community just a stone’s throw from the M4 and the vibrant town of Yate. Act quickly, as this desirable parcel is being sold via live online auction on April 23, 2025, and may not remain on the market for long!

Property Details

Brochure Descriptions

Image Descriptions

Floorplan Description

Rooms

Textual Property Features

Detected Visual Features

Nearby Schools

Nearest Bars And Restaurants

,,,,}

Nearest General Shops

,,}

Nearest Grocery shops

,,}

Nearest Supermarkets

,,}

Nearest Religious buildings

,,}

Nearest Medical buildings

,,,}

Nearest Airports

}

Nearest Leisure Facilities

,,,,}

Nearest Tourist attractions

,,}

Nearest Train stations

,,,,}

Nearest Bus stations and stops

,,,,}

Nearest Hotels

,,}

Tags

Local Market Stats

AirBnB Data

Similar Properties

Meta

High Res Images

Compatible Images

Low res Images

Thumbnails

Raw Images

High Res Floorplan Images

Compatible Floorplan Images

Low res Floorplan Images

FloorplanImages Thumbnail

Raw Floorplan Images