Long garden and off-street parking close to park and Jubilee Line.
South-facing rear garden approximately 48ft, excellent natural light
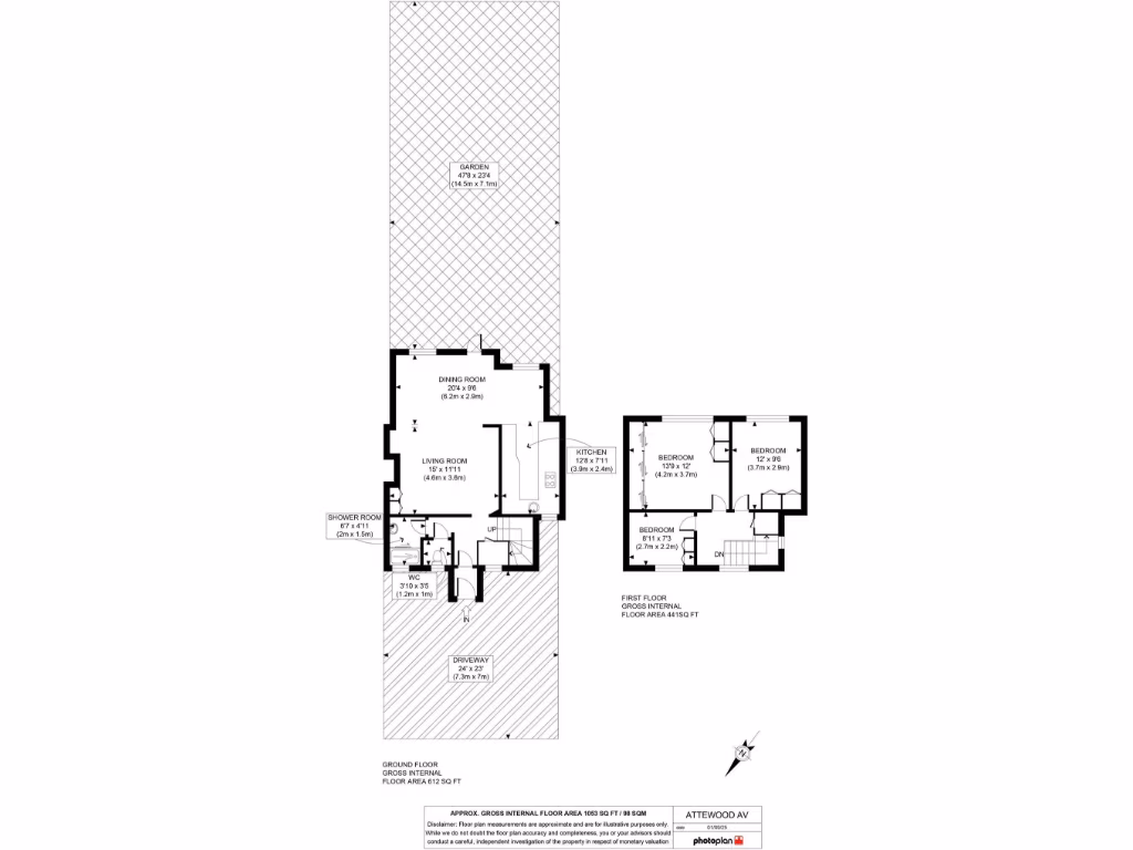
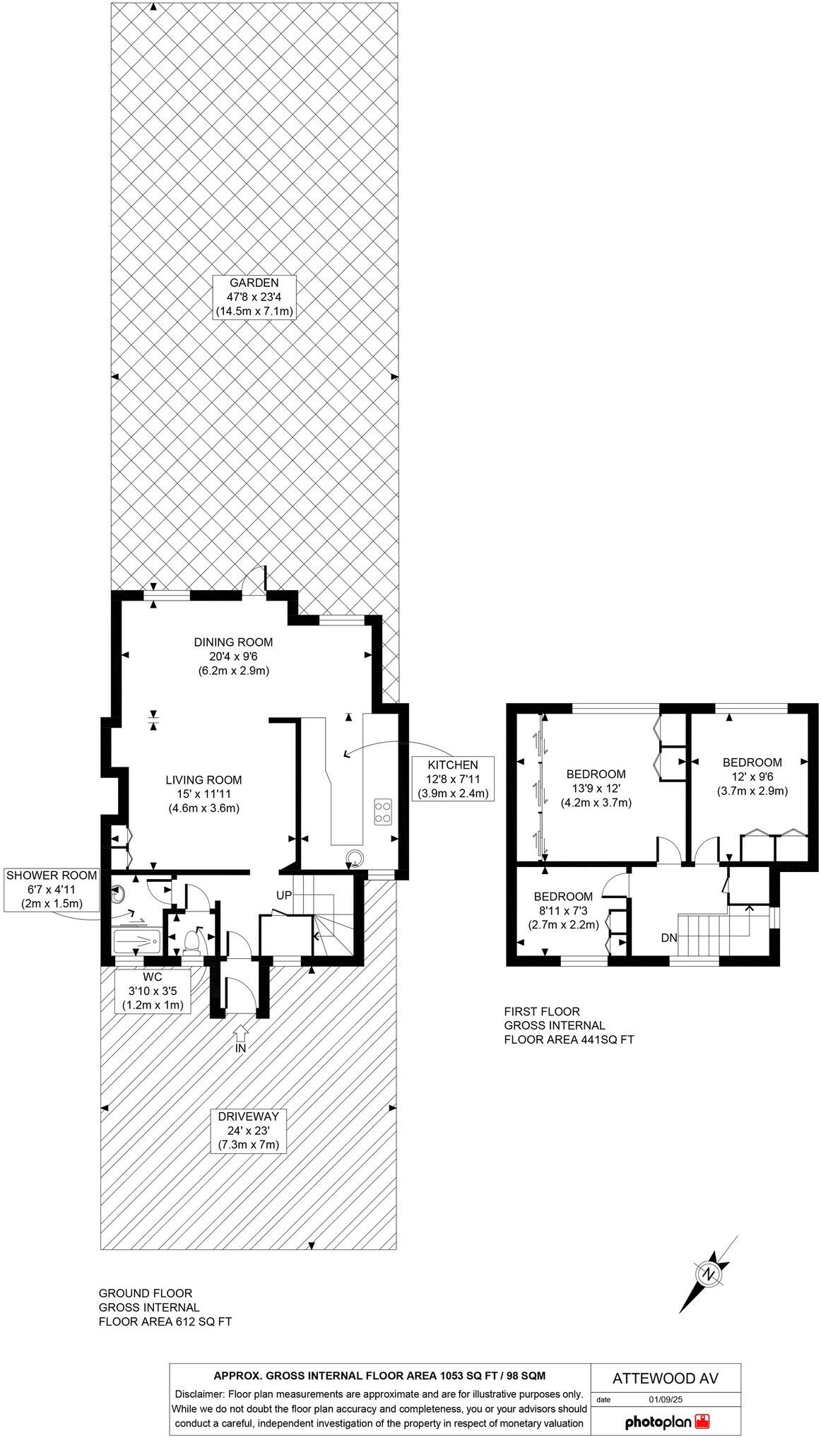
Set just yards from Welsh Harp park, this extended 1930s mid-terrace offers a practical family layout and immediate outdoor space. The ground-floor rear extension creates an open-plan lounge/dining area with rooflights and French doors that lead directly to a south-facing garden of about 48ft — excellent for children, entertaining and sunlight through the day.
Internally the house is presented in ready-to-move-into condition with three good-sized bedrooms, contemporary finishes to principal rooms, gas central heating and double glazing. The gross internal area of approximately 1,053 sq ft provides comfortable living proportions for a growing family, and the front driveway supplies useful off-street parking.
Buyers should note this is a 1930s solid-brick mid-terrace: walls are likely uninsulated as built and the age of some services is not detailed, so modest maintenance or energy upgrades may be needed to improve thermal performance. There is a single family bathroom/shower room on the first floor which may be a consideration for larger households.
Location is a strong feature: Neasden Jubilee Line station, local buses and shops are close by, and good primary and secondary schools serve the area. The property is freehold and suited to families wanting immediate occupation with scope to personalise and make energy-efficiency improvements over time.
3 bedroom terraced house for sale in Village Way, London, NW10 — £585,000 • 3 bed • 1 bath • 912 ft²
4 bedroom terraced house for sale in Kenwyn Drive, London, NW2 — £650,000 • 4 bed • 2 bath • 1345 ft²
3 bedroom terraced house for sale in North Circular Road, London, NW2 — £495,000 • 3 bed • 1 bath • 926 ft²
3 bedroom terraced house for sale in Dawpool Road, London, NW2 — £625,000 • 3 bed • 2 bath • 912 ft²
4 bedroom semi-detached house for sale in Dollis Hill Lane, London, NW2 — £950,000 • 4 bed • 2 bath • 1482 ft²
3 bedroom terraced house for sale in Clifford Way, London, NW10 — £600,000 • 3 bed • 1 bath • 1152 ft²






















































