Compact, efficient new-build with garden and parking close to top schools.
Three bedrooms with principal en-suite
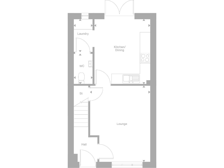
This three-bedroom new-build semi offers contemporary, low-maintenance living for a young family or first-time buyer. The open-plan lounge and kitchen/diner feel bright, with French doors that lead to a modest private garden and provide good natural light. Practical touches include a separate laundry room, downstairs WC and an en-suite to the principal bedroom.
The home is built to modern energy-efficient standards and comes with a 10-year NHBC warranty, so running costs and aftercare are clear advantages. Off-street parking is provided and the development sits in a very low-crime, affluent suburban area with good local primary and secondary schools nearby.
Notable facts to consider: the total floor area is small (approximately 558 sq ft) so room proportions are compact rather than spacious. Tenure details are currently TBC and a yearly service charge of £167 applies; there is a £500 reservation fee. While the specification suits low-maintenance family life, buyers wanting larger living spaces or immediate clarity on tenure/charges should confirm those details before reserving.
Deposit contribution is available on selected plots and online pre-reservation is offered, which may help buyers move quickly. Overall this is a practical, modern home set within a quiet suburban development—best for buyers seeking efficient, new-build accommodation on a modest footprint.
3 bedroom semi-detached house for sale in Lunts Heath Road,
Widnes,
WA85RY, WA8 — £299,995 • 3 bed • 1 bath • 596 ft²
3 bedroom semi-detached house for sale in Lunts Heath Road,
Widnes,
WA85RY, WA8 — £302,495 • 3 bed • 1 bath • 596 ft²
3 bedroom detached house for sale in Lunts Heath Road,
Widnes,
WA85RY, WA8 — £359,995 • 3 bed • 1 bath • 618 ft²
3 bedroom semi-detached house for sale in Lunts Heath Road,
Widnes,
WA85RY, WA8 — £207,995 • 3 bed • 1 bath • 524 ft²
3 bedroom mews property for sale in Lunts Heath Road,
Widnes,
WA85RY, WA8 — £207,995 • 3 bed • 1 bath • 524 ft²
5 bedroom detached house for sale in Lunts Heath Road,
Widnes,
WA85RY, WA8 — £569,995 • 5 bed • 1 bath • 1056 ft²










































