Compact, energy-efficient family home with garden and off-street parking.
Three bedrooms across three floors with top-floor principal en-suite
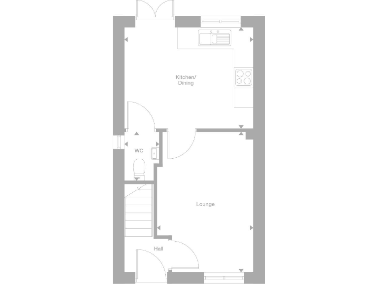
A bright, three-bedroom semi-detached new build arranged over three floors, designed for flexible family living. The open-plan kitchen/diner with French doors leads to a private garden, while the top-floor principal bedroom benefits from its own en-suite for added privacy. Off-street parking and an energy-efficient build help keep running costs lower, and a 10-year NHBC warranty provides structural reassurance.
Practical details worth noting: the home is compact (approximately 596 sq ft) so rooms are efficient rather than spacious. Tenure details and council tax band are not yet confirmed, and an annual service charge of £167 applies. A £500 reservation fee is required and some plots offer deposit contribution under selected offers.
This development sits in a very low-crime, affluent suburb close to several well-rated primary and secondary schools, making it convenient for families. The property suits first-time buyers or young families seeking a low-maintenance, modern home with warranty protection and potential help to buy in via developer offers.
Buyers should check tenure and full running costs before committing, and be aware internal space is modest compared with larger family homes. The house does, however, deliver contemporary styling, practical layout, and useful guarantees that reduce immediate maintenance concerns.
3 bedroom semi-detached house for sale in Lunts Heath Road,
Widnes,
WA85RY, WA8 — £304,995 • 3 bed • 1 bath • 596 ft²
3 bedroom detached house for sale in Lunts Heath Road,
Widnes,
WA85RY, WA8 — £359,995 • 3 bed • 1 bath • 618 ft²
3 bedroom mews property for sale in Lunts Heath Road,
Widnes,
WA85RY, WA8 — £207,995 • 3 bed • 1 bath • 524 ft²
3 bedroom semi-detached house for sale in Lunts Heath Road,
Widnes,
WA85RY, WA8 — £207,995 • 3 bed • 1 bath • 524 ft²
5 bedroom detached house for sale in Lunts Heath Road,
Widnes,
WA85RY, WA8 — £569,995 • 5 bed • 1 bath • 1056 ft²
4 bedroom detached house for sale in Lunts Heath Road,
Widnes,
WA85RY, WA8 — £449,995 • 4 bed • 1 bath • 853 ft²










































