WA8 5RY - 3 bed lunts heath modern barn in Lunts Heath Road, WA8 5RY

View on Property Piper

3 bedroom detached house for sale in Lunts Heath Road, Widnes, WA85RY, WA8

Summary - LUNTS BRIDGE FARM THE BARN LUNTS HEATH ROAD WIDNES WA8 5RY

3 bed 1 bath Detached

Energy-efficient three-bedroom with private garden and parking, ideal for growing households.
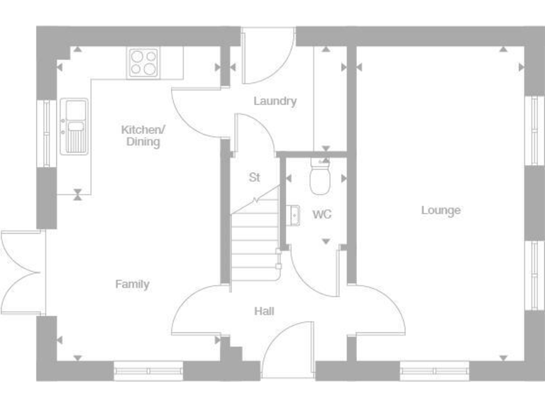
Dual-aspect lounge with feature bay window and bright family kitchen/diner
French doors to the garden; private outdoor space
Energy-efficient new build with solar panels and 10-year NHBC warranty
Separate laundry room and downstairs WC for practical family living
Principal bedroom with en-suite; two further bedrooms and family bathroom
Compact overall size (circa 618 sq ft) — rooms are modest in scale
Tenure, lease length and council tax TBC; £167 yearly service charge
Reservation fee £500; broadband average
This three-bedroom detached new build at Lunts Heath Road presents efficient, modern living across a compact footprint. Dual-aspect lounge with a feature bay window and a family kitchen/diner with French doors create bright, flexible communal space. Practical additions include a separate laundry room, downstairs WC and generous built-in storage that help maximise usable space.

The principal bedroom benefits from dual aspects and an en-suite, while two further bedrooms and a family bathroom complete the first floor. The house is energy-efficient with solar panels and comes with a 10-year NHBC warranty, helping reduce running costs and offering new-home assurance.

Outside, the property has a private garden and off-street parking. The development sits in a quiet, very low-crime suburban area with several well-rated primary and secondary schools nearby, making it suitable for families. Broadband is average; mobile signal is excellent.

Buyers should note the home is compact at about 618 sq ft and some rooms are modest in size. Tenure details and council tax banding are to be confirmed, and an annual service charge of £167 applies. A £500 reservation fee is required for online pre-reservation.

Property Details

Brochure Descriptions

Image Descriptions

Floorplan Description

Rooms

Textual Property Features

Target Audience

AI Tags

Detected Visual Features

Nearby Schools

Nearest Bars And Restaurants

,,,,}

Nearest General Shops

,,}

Nearest Grocery shops

,,}

Nearest Supermarkets

,,}

Nearest Religious buildings

,,}

Nearest Medical buildings

,,,}

Nearest Airports

,}

Nearest Leisure Facilities

,,,,}

Nearest Tourist attractions

,,}

Nearest Train stations

,,,,}

Nearest Bus stations and stops

,,,,}

Nearest Hotels

,,}

Tags

Local Market Stats

Similar Properties

Meta

High Res Images

Compatible Images

Low res Images

Thumbnails

Raw Images

High Res Floorplan Images

Compatible Floorplan Images

Low res Floorplan Images

FloorplanImages Thumbnail

Raw Floorplan Images