Energy-efficient finish, private garden and off-street parking in a quiet Widnes location.
Three-bedroom, three-storey semi-detached layout with flexible living spaces
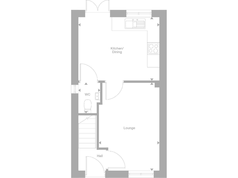
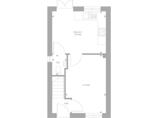
This three-bedroom, three-storey semi-detached home in Lunts Heath Rise is arranged for flexible family living across compact, well-planned floors. The ground-floor lounge and open-plan kitchen/diner with French doors give easy connection to the private garden and make everyday life and informal entertaining straightforward. The principal bedroom occupies the top floor and includes an en-suite for extra privacy.
The house is a new build with a 10-year NHBC warranty and energy-efficient construction, which can reduce running costs and appeals to buyers seeking low-maintenance modern finishes. Off-street parking and a sizeable plot for the development add practical benefits for households with cars and outdoor needs.
Buyers should note the property is modest in internal size (around 596 sq ft) and laid out over three floors, which may feel compact for some families. Key tenure details (lease length, ground rent) are not yet confirmed and annual service charge of £167 applies; these should be clarified before committing. There’s a reservation fee of £500 and selected plots may offer deposit contributions or other incentives.
Overall, this home suits buyers seeking a contemporary, low-maintenance starter or a downsizer who values energy efficiency, a private outdoor space and good local schools. It’s best viewed in person to assess the compact room sizes and three-storey layout against your family’s daily needs.
3 bedroom semi-detached house for sale in Lunts Heath Road,
Widnes,
WA85RY, WA8 — £299,995 • 3 bed • 1 bath • 596 ft²
3 bedroom detached house for sale in Lunts Heath Road,
Widnes,
WA85RY, WA8 — £359,995 • 3 bed • 1 bath • 618 ft²
3 bedroom mews property for sale in Lunts Heath Road,
Widnes,
WA85RY, WA8 — £207,995 • 3 bed • 1 bath • 524 ft²
5 bedroom detached house for sale in Lunts Heath Road,
Widnes,
WA85RY, WA8 — £569,995 • 5 bed • 1 bath • 1056 ft²
3 bedroom semi-detached house for sale in Lunts Heath Road,
Widnes,
WA85RY, WA8 — £207,995 • 3 bed • 1 bath • 524 ft²
4 bedroom detached house for sale in Lunts Heath Road,
Widnes,
WA85RY, WA8 — £449,995 • 4 bed • 1 bath • 853 ft²


















































