Auction opportunity for investors or renovators ready to budget for works.
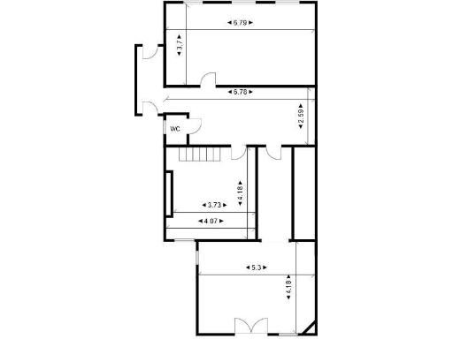
- Three bedrooms with multiple reception rooms and large kitchen-diner
- Enclosed rear garden and off-street parking
- Freehold tenure (flying freehold — check legal pack)
- Requires renovation and general maintenance throughout
- Japanese knotweed present to the rear; remediation required
- Sold at online auction; 10% deposit and holding fee apply
- Small overall size and small plot; compact living space
- Area has high crime and significant local deprivation
Available for sale by online auction, this three-bedroom Victorian end-of-terrace sits on a small plot in Pentrechwyth. The house offers multiple reception rooms, a large kitchen-diner and an enclosed rear garden with off-street parking — a practical layout for rental or refurbishment plans. Broadband and mobile signal are strong, and the property is freehold (note: flying freehold — see legal pack).
The home requires maintenance and updating throughout; many internal rooms are dated and renovation will be needed to realise full value. There is confirmed Japanese knotweed at the rear, which will require professional treatment and budget allowance. The area shows high local crime and significant deprivation, factors that influence rental values and resale timing.
This lot is offered at auction with a guide price of £170,000. Bidders must register and pay a holding fee to participate; the successful bidder must pay a 10% deposit and complete in 28 days (timescales and fees detailed in the legal pack). Pre-auction offers are invited but a buyer’s premium applies if sold prior to auction.
For an investor or hands-on buyer willing to manage remedial works and knotweed treatment, the property presents potential for rental income or value-add refurbishment. Carrying out repairs, modernisation and clear documentation around the knotweed and flying freehold will be essential before letting or resale.
3 bedroom terraced house for sale in 13 Gelli Street, Port Tennant, Swansea, West Glamorgan, SA1 8NJ, SA1 — £125,000 • 3 bed • 1 bath • 579 ft²
3 bedroom semi-detached house for sale in 71 Clyndu Street, Morriston, Swansea, West Glamorgan, SA6 7BB, SA6 — £95,000 • 3 bed • 1 bath • 963 ft²
2 bedroom terraced house for sale in 103 Heol Y Gors, Townhill, Swansea, West Glamorgan, SA1 6RY, SA1 — £89,000 • 2 bed • 1 bath • 306 ft²
3 bedroom semi-detached house for sale in 125 Woodford Road, Blaenymaes, Swansea, West Glamorgan, SA5 5PX, SA5 — £90,000 • 3 bed • 1 bath • 437 ft²
3 bedroom terraced house for sale in 25 Constitution Hill, Swansea, West Glamorgan, SA1 6JA, SA1 — £72,000 • 3 bed • 1 bath • 310 ft²
3 bedroom end of terrace house for sale in 14 George Street, Neath, West Glamorgan, SA11 1TT, SA11 — £95,000 • 3 bed • 1 bath • 1033 ft²


















































































































































































































