Ready-made rental with renovation potential in an established Port Tennant street.
Freehold three-bedroom Victorian mid-terrace with bay windows
Currently let at £800 pcm — immediate rental income
Requires modernisation throughout to maximise value
Paved rear garden, shed and rear lane access
EPC C; up-to-date gas and electrical certificates in legal pack
Sold at online auction — holding fee, 10% deposit and quick completion
Located in a very deprived area with higher crime levels
Small overall size; limited plot and modest room sizes
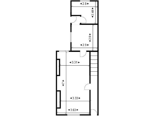
A three-bedroom Victorian mid-terrace offered freehold and sold via online auction, this property provides immediate rental income with a tenant in situ at £800 pcm. The layout is practical — a through living/dining room, kitchen and first-floor bathroom — and the house retains period features such as bay windows, while requiring updating throughout.
For investors the appeal is clear: instant cashflow, an EPC C and up-to-date gas and electrical certificates in the legal pack reduce initial compliance work. The paved rear garden, shed and lane access are low-maintenance external assets that suit a rental strategy.
Buyers should factor in the location and condition: the area is very deprived with higher-than-average crime, and the interior needs modernisation to maximise rental value. The property is sold at auction with a holding fee to bid, a 10% deposit on exchange and a potential buyer’s premium if sold pre-auction — allow for tight timescales on exchange and completion.
Overall this is a straightforward acquisition for a hands-on investor or landlord prepared to manage refurbishment and local letting dynamics. Legal and inspection checks are recommended before bidding; the legal pack contains certificates and further detail.
2 bedroom terraced house for sale in 103 Heol Y Gors, Townhill, Swansea, West Glamorgan, SA1 6RY, SA1 — £89,000 • 2 bed • 1 bath • 306 ft²
3 bedroom end of terrace house for sale in 32 Pentrechwyth Road, Pentrechwyth, Swansea, West Glamorgan, SA1 7AA, SA1 — £170,000 • 3 bed • 1 bath • 442 ft²
3 bedroom semi-detached house for sale in 71 Clyndu Street, Morriston, Swansea, West Glamorgan, SA6 7BB, SA6 — £95,000 • 3 bed • 1 bath • 963 ft²
2 bedroom terraced house for sale in 35 Clare Street, Manselton, Swansea, West Glamorgan, SA5 9PG, SA5 — £68,000 • 2 bed • 1 bath • 1134 ft²
3 bedroom terraced house for sale in 25 Constitution Hill, Swansea, West Glamorgan, SA1 6JA, SA1 — £72,000 • 3 bed • 1 bath • 310 ft²
3 bedroom end of terrace house for sale in 14 George Street, Neath, West Glamorgan, SA11 1TT, SA11 — £95,000 • 3 bed • 1 bath • 1033 ft²


























































































