Compact property with immediate refurbishment potential for rental or resale.
Freehold three-bedroom semi-detached with front and rear gardens
An affordable three-bedroom semi-detached property offered for sale by online auction with immediate scope for refurbishment and rental or resale. The house retains mid-20th century character, double-glazed windows and a private front and rear garden — useful for tenants or modest outdoor use.
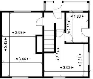
The layout includes a front lounge, kitchen-diner, ground-floor utility and separate WC, with three bedrooms and a bathroom upstairs. At about 437 sq ft and a small plot, the home suits buyers looking for a compact investment or a first-step purchase. The property is freehold and has an EPC C and council tax band A.
Practical considerations: the house requires light renovation throughout and shows dated fittings and some evidence of wear that could include damp or mould in places; modernisation is needed to reach market rental or sale standards. The wider area is classified as very deprived with high crime rates — important for rental demand, insurance and resale prospects.
This lot is sold at online auction. Bidders must register and pay a holding fee to participate; the winning bidder pays a 10% deposit (holding fee retained) and completion is usually 28 days after exchange. Pre-auction offers are accepted; check the legal pack and allow for buyer’s premium if sold prior to auction.
3 bedroom semi-detached house for sale in 71 Clyndu Street, Morriston, Swansea, West Glamorgan, SA6 7BB, SA6 — £95,000 • 3 bed • 1 bath • 963 ft²
3 bedroom semi-detached house for sale in 20 Llys Aneirin, Gorseinon, Swansea, West Glamorgan, SA4 4HW, SA4 — £145,000 • 3 bed • 1 bath • 747 ft²
2 bedroom terraced house for sale in 103 Heol Y Gors, Townhill, Swansea, West Glamorgan, SA1 6RY, SA1 — £89,000 • 2 bed • 1 bath • 306 ft²
3 bedroom semi-detached house for sale in 56 Edgemoor Close, Upper Killay, Swansea, West Glamorgan, SA2 7HJ, SA2 — £115,000 • 3 bed • 1 bath • 448 ft²
3 bedroom terraced house for sale in 25 Constitution Hill, Swansea, West Glamorgan, SA1 6JA, SA1 — £72,000 • 3 bed • 1 bath • 310 ft²
4 bedroom semi-detached house for sale in 29 Danygraig Road, Neath, Neath Port Talbot, SA11 1UB, SA11 — £100,000 • 4 bed • 3 bath






























































































