Ideal low-cost buy-to-let or starter renovation project near shops and schools.
Guide price £89,000 — offered at online auction
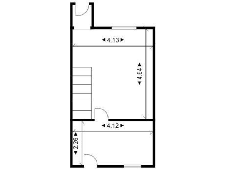
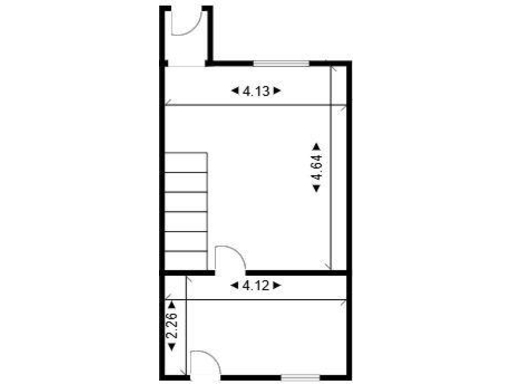
Offered for sale by online auction with a guide price of £89,000, this freehold two-bedroom mid-terrace sits within walking distance of local shops, schools and community amenities. The house is compact (approximately 306 sq ft) with a reception room, kitchen, bathroom and small enclosed rear garden — a straightforward layout that suits a buy-to-let or first renovation.
The property has an EPC rating of D and Council Tax band A. It requires modernisation throughout: decor and finishes are dated and the home would benefit from updating to maximise rental or resale value. Room sizes are modest, so purchasers should note the smaller footprint when planning layouts or extensions.
This is an auction sale. Bidders must register and pay a holding fee to participate; the successful buyer will pay a 10% deposit and complete within 28 days of exchange. Legal pack and full contract terms should be reviewed before bidding. The location is in a very deprived, multi-ethnic area with above-average crime statistics, which will affect long-term yield and tenant demand.
For investors or hands-on buyers looking for a low-entry-price project in a well-connected urban area, the house offers a clear opportunity: low purchase price, walkable amenities and straightforward refurbishment potential. For buyers seeking a low-maintenance, spacious or premium neighbourhood home, this property is unlikely to match expectations without significant investment.
2 bedroom terraced house for sale in 40 Trewyddfa Common, Morriston, Swansea, West Glamorgan, SA6 8HN, SA6 — £72,000 • 2 bed • 1 bath • 628 ft²
2 bedroom terraced house for sale in 35 Clare Street, Manselton, Swansea, West Glamorgan, SA5 9PG, SA5 — £68,000 • 2 bed • 1 bath • 1134 ft²
3 bedroom end of terrace house for sale in 32 Pentrechwyth Road, Pentrechwyth, Swansea, West Glamorgan, SA1 7AA, SA1 — £170,000 • 3 bed • 1 bath • 442 ft²
3 bedroom terraced house for sale in 13 Gelli Street, Port Tennant, Swansea, West Glamorgan, SA1 8NJ, SA1 — £125,000 • 3 bed • 1 bath • 579 ft²
4 bedroom terraced house for sale in 3 Pant Yr Heol, Neath, West Glamorgan, SA11 2HN, SA11 — £55,000 • 4 bed • 1 bath • 454 ft²
5 bedroom terraced house for sale in 33 Brunswick Street, Swansea, West Glamorgan, SA1 4JP, SA1 — £122,000 • 5 bed • 2 bath • 716 ft²


























































