Auction opportunity for renovators and landlords close to the city centre.
Freehold three-bedroom Edwardian mid-terrace near Swansea city centre
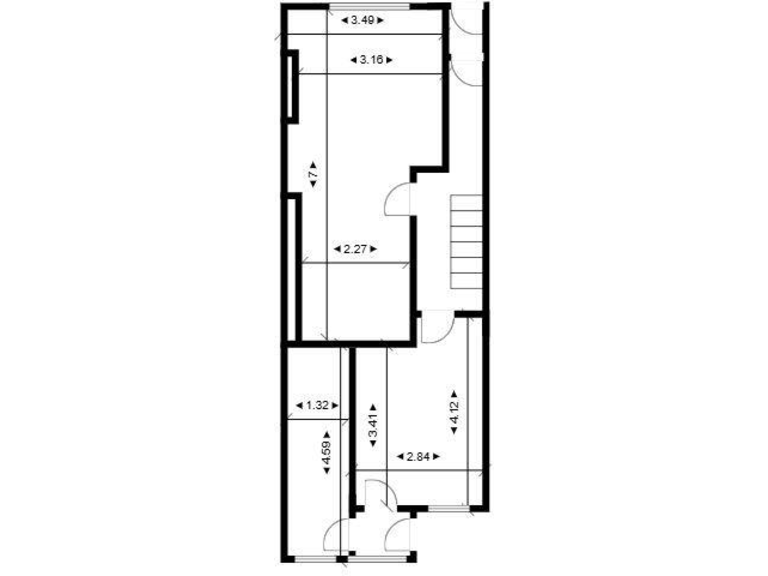
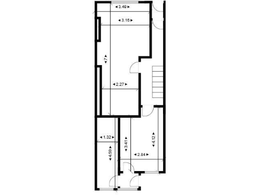
This small Edwardian mid-terrace is offered freehold by online auction with a guide price of £72,000. Set close to Swansea city centre in a predominantly student neighbourhood, the property comprises three bedrooms, a through reception, kitchen-diner, family bathroom and a paved rear garden. An EPC rating of D is recorded.
The house requires full renovation and updating throughout — works will be needed to modernise finishes, services and potentially to address dated exterior pebble-dash and signs of damp. Sale at auction means interested buyers must register, pay a holding fee to bid, and be prepared to exchange with a 10% deposit and complete in 28 days. Pre-auction offers are invited.
For investors the location offers clear rental demand from nearby students and city workers; the small footprint and low guide price may suit a hands-on refurbishment and let-or-resell strategy. Buyers should review the legal pack, survey for structural or damp issues, and allow for renovation costs and local area factors (above-average crime, high deprivation) when assessing value.
3 bedroom end of terrace house for sale in 32 Pentrechwyth Road, Pentrechwyth, Swansea, West Glamorgan, SA1 7AA, SA1 — £170,000 • 3 bed • 1 bath • 442 ft²
2 bedroom terraced house for sale in 103 Heol Y Gors, Townhill, Swansea, West Glamorgan, SA1 6RY, SA1 — £89,000 • 2 bed • 1 bath • 306 ft²
2 bedroom terraced house for sale in 35 Clare Street, Manselton, Swansea, West Glamorgan, SA5 9PG, SA5 — £68,000 • 2 bed • 1 bath • 1134 ft²
5 bedroom terraced house for sale in 33 Brunswick Street, Swansea, West Glamorgan, SA1 4JP, SA1 — £122,000 • 5 bed • 2 bath • 716 ft²
3 bedroom town house for sale in 370 Carmarthen Road, Cwmbwrla, Swansea, City and county of Swansea, SA5 8LW, SA5 — £50,000 • 3 bed • 1 bath
2 bedroom terraced house for sale in Waun Wen Terrace, Swansea, City And County of Swansea., SA1 — £65,000 • 2 bed • 1 bath






















































































