Large logistics-ready yard with solar and new substation, suited to storage operators.
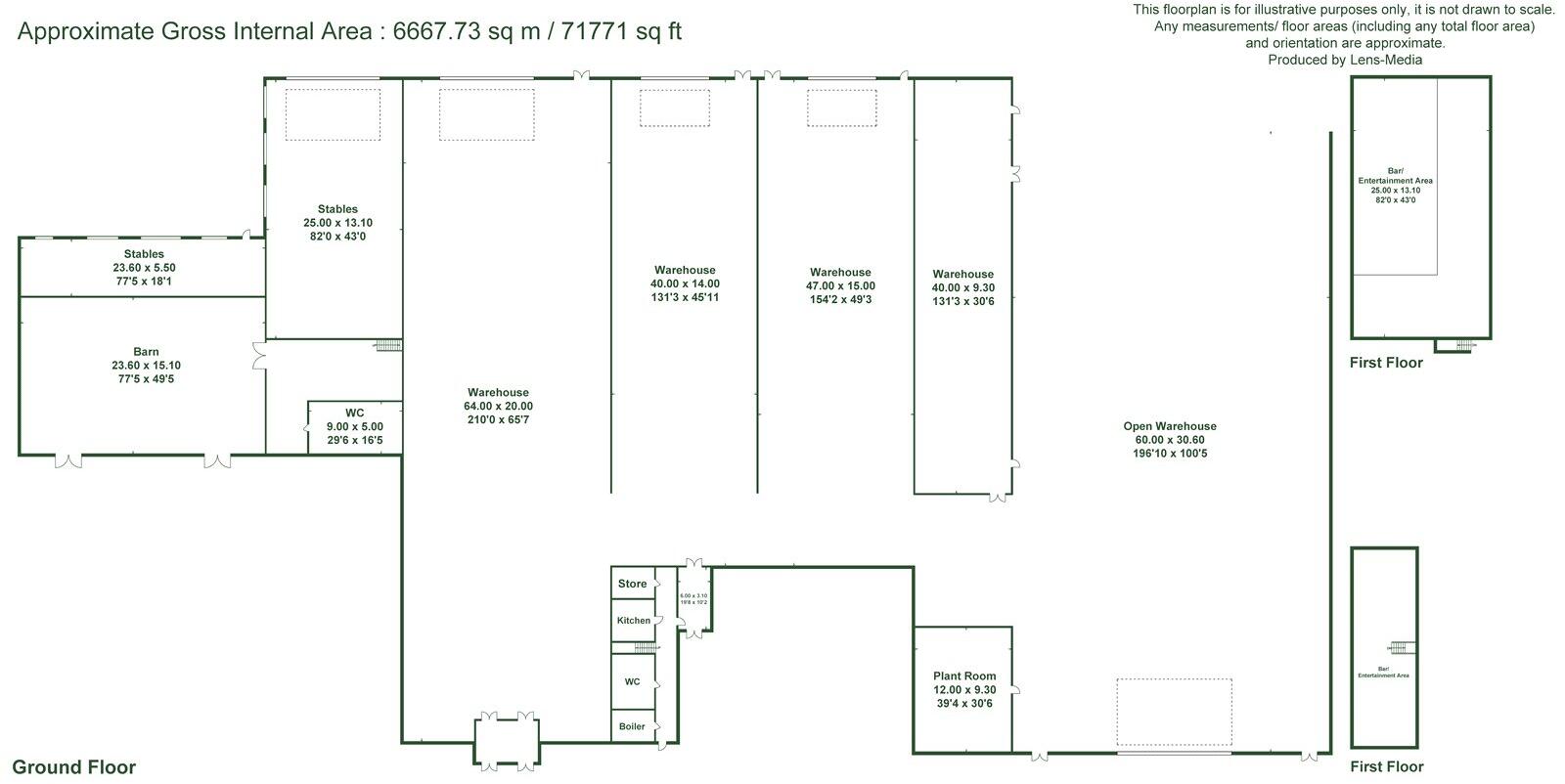
Over 70,000 sq ft of covered industrial space
A substantial mixed-use estate offering more than 70,000 sq ft of covered industrial space and over 2.30 acres of newly laid concrete yard. The site includes a recently installed ~333 kWh roof-mounted solar array and a new substation, supporting low running costs for high-energy operations. Planning consent for storage and distribution is already in place, making it immediately suitable for logistics or large-scale warehousing.
The buildings are modern steel portal-frame units with high ceilings, large roller doors and extensive HGV-friendly hardstanding. The freehold plot is rural and private with clear sightlines over adjoining farmland — attractive for businesses needing space and quiet access. The parcel includes an attached residential-style farmhouse and ancillary rooms, supporting on-site management or conversion potential subject to consent.
This is a strong opportunity for investors, occupiers or developers. Alternative uses carry significant potential but would require the necessary planning consents. Note the site’s remoteness from major urban centres, average mobile signal, and that council tax on the residential element is described as quite expensive. Buyers should allow for planning and conversion costs if pursuing change of use or redevelopment.
Land for sale in Lancaster Road, Out Rawcliffe, Preston, Lancashire, PR3 — £2,900,000 • 1 bed • 1 bath
9 bedroom detached house for sale in Lancaster Road, Out Rawcliffe, Preston, Lancashire, PR3 — £6,950,000 • 9 bed • 9 bath • 7906 ft²
Shop for sale in Lancaster Road, Out Rawcliffe, Preston, Lancashire, PR3 — £6,950,000 • 9 bed • 9 bath • 7906 ft²
Commercial property for sale in Eaves Hall Lane, West Bradford, Clitheroe, BB7 — £1,200,000 • 1 bed • 1 bath
Light industrial facility for sale in Oakenclough Mill (part Of), Oakenclough Road, Oakenclough, Nr. Garstang / Scorton, Lancashire, PR3 — £114,995 • 1 bed • 1 bath • 6333 ft²
Land for sale in Helms Deep, Long Lane, Barnacre, Garstang, Lancashire, PR3 1RN, PR3 — £325,000 • 1 bed • 1 bath • 2507 ft²










































