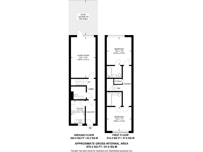
Large commuter-friendly split-level home with garden and parking near Highams Park station.
- Two double bedrooms across two floors
- 2.5 bathrooms, useful for families and guests
- Sunny private rear garden with rear access
- Private entrance and secure off-street parking
- Moments from Highams Park station, 23 mins to Liverpool Street
- Large overall size — approx 979 sq ft
- Leasehold tenure; check lease length and service charges
- Community heating scheme; area has above-average crime
Set over two floors, this spacious 2-bedroom maisonette offers nearly 980 sq ft of flexible living with a sunny private garden and rear access. The ground-floor reception and separate kitchen create comfortable day-to-day living, while two double bedrooms and 2.5 bathrooms suit couples or a young family needing space and convenience.
Practical comforts include a private entrance, a secure off-street parking space and fast broadband with excellent mobile signal — useful for commuters and people working from home. Highams Park station is moments away with a 23-minute direct link to Liverpool Street; local shops, cafés and green spaces are within easy reach.
The property is leasehold and heated via a community scheme — important for buyers to review service arrangements and lease length. Crime in the area is above average, so consider security measures when viewing. Overall the flat presents a modern, well-sized home in a commuter-friendly neighbourhood with good local schools and everyday amenities on the doorstep.
This is a large, practical maisonette for buyers seeking easy transport links and outdoor space without sacrificing interior square footage. With scope to personalise finishes, it could suit first-time buyers moving up, downsizers wanting a low-maintenance garden, or investors targeting long-term rental demand.
2 bedroom maisonette for sale in Hickman Avenue, Highams Park, E4 — £500,000 • 2 bed • 2 bath • 996 ft²
2 bedroom maisonette for sale in Hickman Avenue, Highams Park, E4 — £514,500 • 2 bed • 2 bath • 1016 ft²
2 bedroom ground floor maisonette for sale in Rolls Park Avenue, London, E4 — £350,000 • 2 bed • 1 bath • 549 ft²
2 bedroom flat for sale in Wickham Road, Highams Park, E4 — £325,000 • 2 bed • 1 bath • 686 ft²
2 bedroom maisonette for sale in Callis Road, Walthamstow, E17 — £500,000 • 2 bed • 1 bath • 700 ft²
3 bedroom flat for sale in Clarence Road, London, E5 — £525,000 • 3 bed • 1 bath • 884 ft²






























































































































































































































































































































































































































