Period-character maisonette with garden, near Walthamstow Central — ideal for first-time buyers.
First-floor Victorian maisonette with approx. 700 sq ft
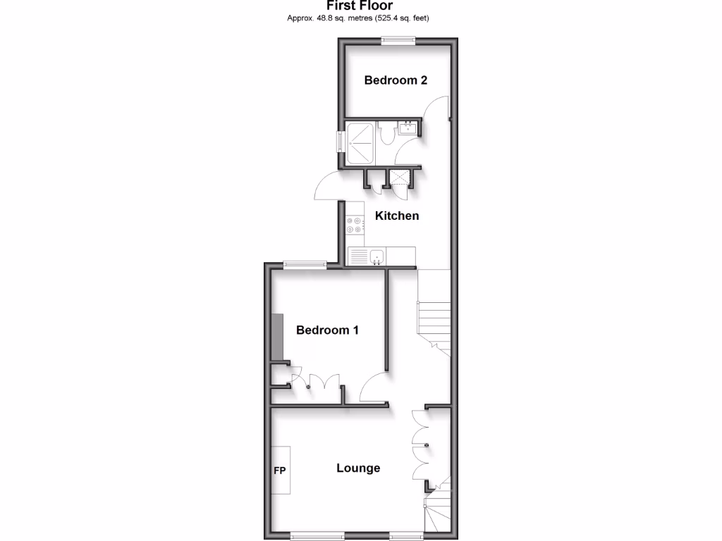
Bright and practical, this first-floor Victorian maisonette offers about 700 sq ft of well-laid-out living space with a private rear garden. A spacious lounge with three windows, wooden floors and a feature fireplace leads to a mezzanine with a Velux — useful as a home office, chill-out area or occasional guest spot. Two bedrooms and a modern shower room complete the accommodation.
The fitted kitchen includes integrated appliances and stone-effect surfaces and opens to a long, low-maintenance garden of approximately 30ft — ideal for outdoor dining, plants or a play area. The property sits within easy walking distance of Walthamstow Central and St James’s Street stations and benefits from fast broadband and nearby good primary schools, including two rated Outstanding.
Practical points to note: the flat is leasehold with about 120 years remaining, installed double glazing predates 2002, and the solid brick walls are assumed uninsulated. Room sizes are modest (one bedroom is notably small) and the building dates from the early 1900s, so further updating or insulation works could add value and comfort.
This maisonette will suit first-time buyers or couples seeking a stylish, period-feel home with outdoor space and excellent transport links. It presents immediate move-in potential with scope for improvement (insulation, cosmetic updating) to personalise and increase long-term value.
2 bedroom maisonette for sale in Butterfields, Walthamstow, London, E17 — £425,000 • 2 bed • 1 bath • 562 ft²
2 bedroom flat for sale in Butterfields, Walthamstow, London, E17 — £450,000 • 2 bed • 1 bath • 544 ft²
2 bedroom apartment for sale in Upper Walthamstow Road, Walthamstow, E17 — £575,000 • 2 bed • 1 bath • 790 ft²
1 bedroom maisonette for sale in Bosworth Close, Walthamstow, London, E17 — £300,000 • 1 bed • 1 bath • 579 ft²
3 bedroom maisonette for sale in Callis Road, Walthamstow, E17 — £500,000 • 3 bed • 1 bath • 856 ft²
2 bedroom maisonette for sale in Theydon Street, Walthamstow, E17 — £475,000 • 2 bed • 1 bath • 677 ft²






































































