Bright, well-sized home near forest and Overground links for families.
Two double bedrooms, each with a private en-suite bathroom
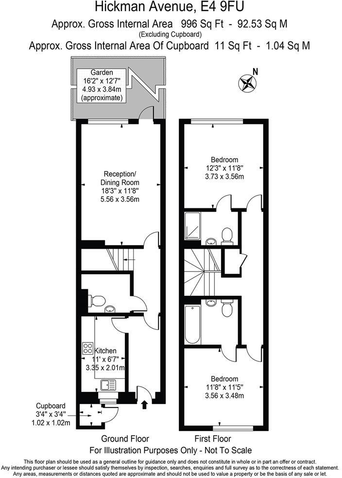
Spacious reception/dining room, approx. 5.63 x 3.56 m
Contemporary fitted kitchen and ground-floor guest WC
Private paved rear garden and own front door
Allocated garage parking included
Long lease (~242 years); chain free sale
Annual ground rent £434 and service charge £743 pa
Area flagged as very deprived with above-average crime rates
This spacious two-double-bedroom maisonette sits over ground and first floors, ideal for families wanting convenient access to Highams Park’s shops, cafés and transport links. Both bedrooms include private en-suite bathrooms, and a large reception room opens circulation-friendly living space. A contemporary fitted kitchen, ground-floor guest WC and a private paved rear garden add practical everyday comforts.
Practical ownership features include a very long lease of approximately 242 years, chain-free sale, allocated garage parking and below-average annual service charge (£743). Heating is provided via a gas/community scheme and the property is double glazed, helping with running costs and comfort. The layout and almost 1,000 sq ft of accommodation create scope for flexible living or a buy-to-let opportunity for commuting professionals.
Buyers should note material negatives: the property is leasehold with an annual ground rent of £434, and it sits in an area recorded as very deprived with above-average crime rates. Council tax is moderate. These local factors affect long-term desirability and should be weighed alongside the home's strong transport links and proximity to Epping Forest.
Overall, this maisonette will suit a family or investor seeking roomy, well-presented accommodation near Zone 4 transport and green space. It offers immediate move-in convenience with clear potential for value to be realised through everyday use or targeted updating.
2 bedroom flat for sale in Hickman Avenue, Highams Park, London, E4 — £500,000 • 2 bed • 2 bath • 979 ft²
2 bedroom maisonette for sale in Hickman Avenue, Highams Park, E4 — £514,500 • 2 bed • 2 bath • 1016 ft²
3 bedroom flat for sale in Clarence Road, London, E5 — £525,000 • 3 bed • 1 bath • 884 ft²
2 bedroom flat for sale in Butterfields, Walthamstow, London, E17 — £450,000 • 2 bed • 1 bath • 544 ft²
2 bedroom flat for sale in Jacks Farm Way, London, E4 — £375,000 • 2 bed • 1 bath • 700 ft²
2 bedroom flat for sale in Wickham Road, Highams Park, E4 — £325,000 • 2 bed • 1 bath • 686 ft²










































































