CO15 5AH - 5 bed spacious coastal detached in First Avenue, CO15 5AH

View on Property Piper

5 bedroom detached house for sale in First Avenue, Clacton-On-Sea, CO15

Summary - 3 FIRST AVENUE CLACTON-ON-SEA CO15 5AH

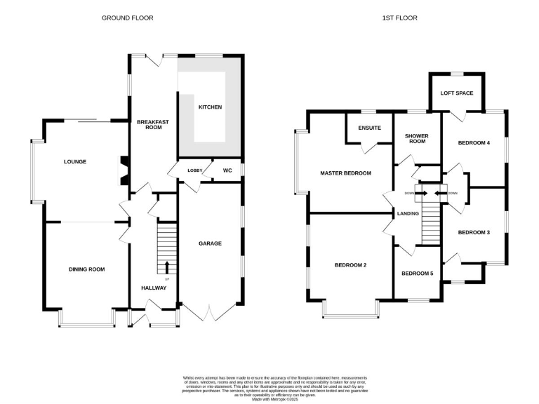
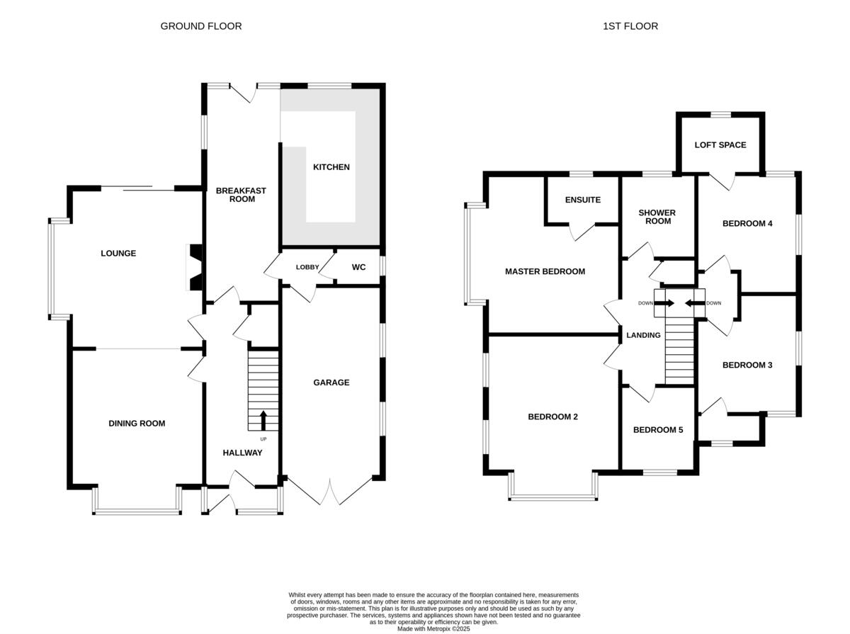
5 bed 3 bath Detached

Large plot near beach with garage and parking.
Five bedrooms with master en-suite
Set just moments from the seafront, this five-bedroom detached house offers generous living space across multiple floors and a large plot. The property includes three reception rooms, a master en-suite, ground-floor cloakroom, garage and off-road parking — practical for families, hobbyists or multi-car households.

Built in the 1930s, the home retains period proportions and large bay windows but shows signs of age. Internal décor and some external areas, including the driveway, require modernization and general maintenance. Double glazing is present though installation date is unknown; heating is by mains gas boiler and radiators.

The location benefits from fast broadband, excellent mobile signal and several well-rated primary and secondary schools within easy reach. There is no flood risk and the property is offered freehold and chain free, making it suitable for buyers wanting a straightforward purchase and renovation project.

Note the wider area records above-average crime and higher local deprivation; these factors should be weighed against the strong seaside location and the home’s renovation potential. Overall this is a spacious family house with character and scope to add value through updating and improvement.

Property Details

Image Descriptions

Floorplan Description

Rooms

Textual Property Features

Target Audience

AI Tags

Detected Visual Features

EPC Details

Nearby Schools

Nearest Bars And Restaurants

,,,,}

Nearest General Shops

,,}

Nearest Grocery shops

,,}

Nearest Supermarkets

,,}

Nearest Religious buildings

,,}

Nearest Medical buildings

,,,}

Nearest Leisure Facilities

,,,,}

Nearest Tourist attractions

,,}

Nearest Train stations

,,,,}

Nearest Bus stations and stops

,,,,}

Nearest Hotels

,,}

Tags

Local Market Stats

AirBnB Data

Similar Properties

Meta

High Res Images

Compatible Images

Low res Images

Thumbnails

Raw Images

High Res Floorplan Images

Compatible Floorplan Images

Low res Floorplan Images

FloorplanImages Thumbnail

Raw Floorplan Images