Newly renovated five-bedroom detached home minutes from the beach with garage and large garden.
- Newly renovated throughout with contemporary open-plan family kitchen
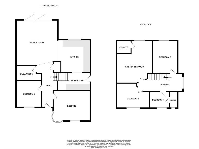
- Five bedrooms, two with en-suite bathrooms for added privacy
- Large plot with front lawn, garage and off-road parking
- Short walk to the beach and local seafront amenities
- Solid brick 1930s construction; assumed no cavity wall insulation
- Area classified as ageing/deprived with average crime levels
- Mains gas boiler and radiators; fast broadband and excellent mobile signal
- Freehold tenure, no flood risk reported
This newly renovated five-bedroom detached house offers spacious, modern living just a short walk from the seafront. The ground floor features an impressive open-plan family room and kitchen, a separate lounge, utility room and cloakroom—designed for everyday family life and entertaining. Two bedrooms have en-suite bathrooms, providing useful privacy for parents and guests.
Set on a large plot with off-road parking and a garage, the property combines period character from its 1930s construction with contemporary finishes and double glazing fitted after 2002. Practical benefits include mains gas central heating, fast broadband and excellent mobile signal—helpful for home working and family connectivity. Flood risk is reported as none.
Notable considerations: the house sits on solid brick walls typical of its era and is assumed to have no cavity insulation, so heating costs and potential insulation upgrades should be factored in. The local area is described as ageing and relatively deprived, with average crime levels; buyers should review the neighbourhood to confirm it meets their needs.
Local schools nearby have Good Ofsted ratings, and local amenities include bus links and seafront leisure. Overall this property will suit an established family seeking a roomy, modernised home near the coast, or buyers looking to combine period features with contemporary open-plan living.
5 bedroom detached house for sale in First Avenue, Clacton-On-Sea, CO15 — £550,000 • 5 bed • 3 bath
5 bedroom detached house for sale in Marine Parade East, Clacton-On-Sea, CO15 — £800,000 • 5 bed • 3 bath • 2420 ft²
5 bedroom detached house for sale in West Road, Clacton-On-Sea, CO15 — £450,000 • 5 bed • 1 bath • 1507 ft²
3 bedroom detached house for sale in Beacon Hill Avenue, Harwich, Essex, CO12 — £335,000 • 3 bed • 1 bath • 1145 ft²
5 bedroom detached house for sale in Manor Way, Holland on Sea, CO15 — £500,000 • 5 bed • 2 bath
4 bedroom detached house for sale in Lyndhurst Road, Holland on Sea, CO15 — £400,000 • 4 bed • 2 bath










































































































