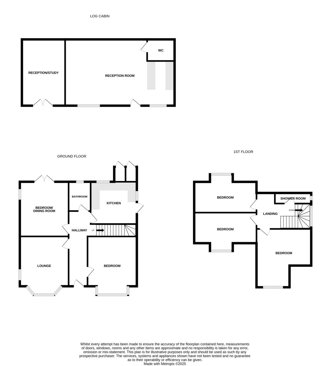
Spacious five-bedroom house with cabin and garage near the seafront.
Five bedrooms and two bathrooms in a Tudor-revival detached house
Separate cabin with fitted bar and W/C — versatile outbuilding
Rear garden, private garage and off-street parking with driveway
Original features: leaded windows, exposed beams, fireplace, bay window
Freehold, no flood risk; fast broadband and excellent mobile signal
Located close to seafront and local amenities, regular coastal access
Area records high crime and very high deprivation — consider security
Some ongoing maintenance likely for a period property
Set on Church Road and a short walk from the seafront, this Tudor-revival detached house combines period character with generous living space. The layout includes five bedrooms and two bathrooms, plus a traditional living room with bay window, exposed beams and a fireplace — features that give the home warmth and personality.
Outside, a decent private plot offers a rear garden, off-street parking and a separate cabin with a fitted bar and W/C, ideal as a home office, studio, guest space or entertainment room. A driveway and private garage provide secure parking and storage for family vehicles and bikes.
Practical benefits include freehold tenure, no flood risk and fast broadband with excellent mobile signal. The property sits in an area with varied local amenities and schools: several nearby primaries and secondaries are rated Good, though one local school requires improvement. Note the wider area shows higher deprivation and recorded high crime levels — buyers should factor this into their plans.
This home will suit a family seeking character, space and flexible outbuildings close to the coast. As a period property with original features, it will require ongoing maintenance and sympathetic upkeep to retain its charm and value.
5 bedroom detached house for sale in Albany Gardens West, Clacton-On-Sea, CO15 — £550,000 • 5 bed • 3 bath
4 bedroom detached house for sale in Vicarage Gardens, Clacton-On-Sea, CO15 — £400,000 • 4 bed • 2 bath • 1690 ft²
6 bedroom detached house for sale in Holland Road, Clacton-On-Sea, Essex, CO15 — £425,000 • 6 bed • 1 bath • 1544 ft²
3 bedroom detached house for sale in Vicarage Gardens, Clacton-on-Sea, CO15 — £425,000 • 3 bed • 2 bath • 1480 ft²
5 bedroom detached house for sale in First Avenue, Clacton-On-Sea, CO15 — £500,000 • 5 bed • 3 bath
5 bedroom detached house for sale in West Road, Clacton-On-Sea, CO15 — £450,000 • 5 bed • 1 bath • 1507 ft²














































































