Spacious coastal living with flexible annexe and modern finishes.
Sea-front position with panoramic coastal views
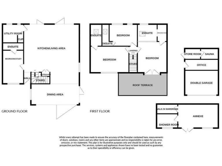
Large open-plan kitchen/living area with abundant natural light
Four bedrooms each with ensuite bathrooms; fifth bedroom available
Separate self-contained annexe for guests or rental flexibility
Sauna, utility room, garage with electric up-and-over door
Large landscaped rear garden and generous driveway parking
Triple glazing throughout; built 1976–82 with partial insulation
EPC C and above-average council tax — potential energy upgrades needed
Set directly on the seafront, this five-bedroom detached house combines generous living space with contemporary finishes and flexible accommodation. The large open-plan kitchen/living area opens to a landscaped rear garden, creating an easy flow for family life and entertaining. A separate annexe adds long-term flexibility for guests, extended family, or rental income.
Four of the bedrooms have ensuite bathrooms, giving excellent privacy for household members or visitors; there is also a utility room and a sauna for added comfort. Practical features include a garage with an electric up-and-over door, a gravel driveway with ample off-road parking and triple glazing throughout. The property is freehold with no flood risk.
The house was built around 1976–82 and currently has an EPC rating of C; cavity walls are partially insulated (assumed). That era and the above-average council tax suggest buyers should allow for ongoing energy-efficiency upgrades or targeted maintenance to maximise comfort and running costs.
Positioned in a seaside town with good broadband and mobile signal, nearby primary and secondary schools rated Good, and local amenities including beach and bus links, this home suits families or buyers seeking coastal living with adaptable accommodation. It is presented well but buyers should note likely modernization work to reach top contemporary efficiency standards.
5 bedroom detached house for sale in Albany Gardens West, Clacton-On-Sea, CO15 — £550,000 • 5 bed • 3 bath
5 bedroom detached house for sale in First Avenue, Clacton-On-Sea, CO15 — £550,000 • 5 bed • 3 bath
3 bedroom bungalow for sale in Lower Marine Parade, Harwich, Essex, CO12 — £500,000 • 3 bed • 2 bath • 1397 ft²
4 bedroom detached house for sale in Bournemouth Road, Holland on Sea, CO15 — £425,000 • 4 bed • 2 bath • 1604 ft²
3 bedroom detached house for sale in Kings Parade, Holland-On-Sea, Clacton-On-Sea, Essex, CO15 — £600,000 • 3 bed • 2 bath • 1168 ft²
5 bedroom detached house for sale in Connaught Gardens East, Clacton-On-Sea, CO15 — £580,000 • 5 bed • 1 bath • 2541 ft²






































































































