Large Edwardian family home near the beach with huge garden and garage.
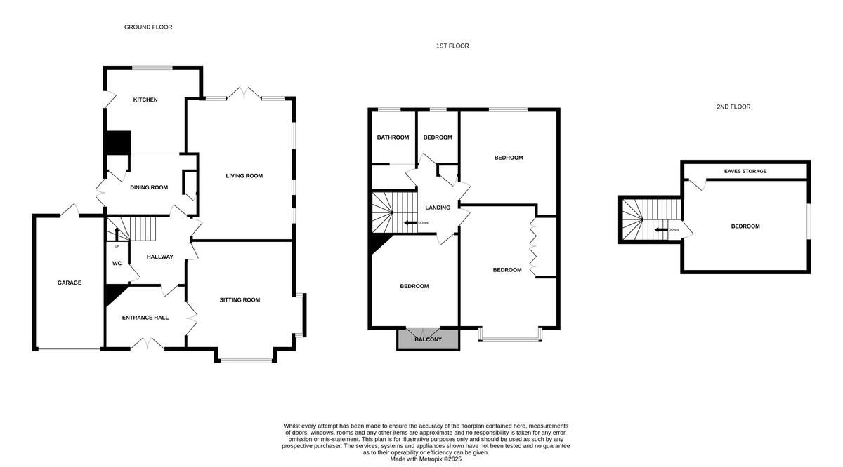
Five bedrooms across three floors, including top-floor room with sea views
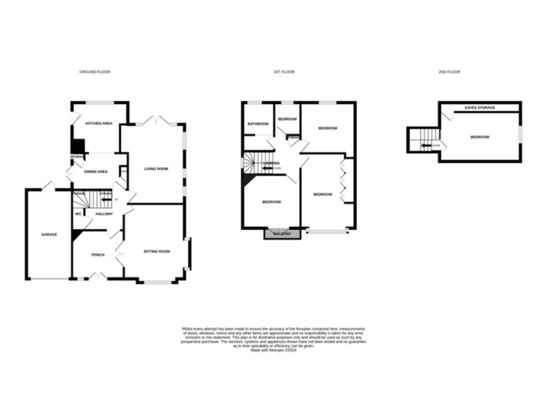
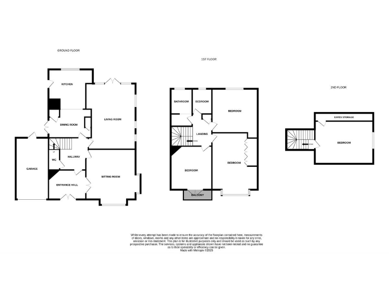
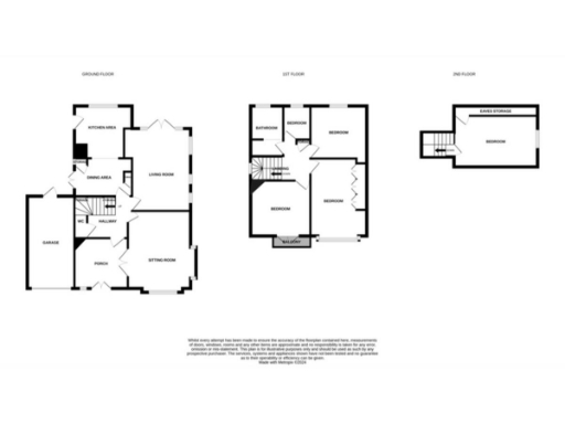
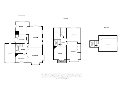
Set a short walk from the sea, this substantial five-bedroom detached house delivers genuine family space across three floors. Period features such as bay windows, an entrance porch with stained glass, and generous reception rooms give the home character while the top-floor bedroom benefits from distant sea views.
Practical strengths include a large 0.3 acre mature rear garden, driveway parking and a garage, fast broadband and excellent mobile signal. The layout suits family life — separate dining and living rooms, an open-plan kitchen-diner and an entrance hall that sets a traditional tone. Nearby schools are all rated Good, and the property is offered chain free for a quicker move.
Important considerations: the house dates from the early 20th century and has solid brick walls with no known insulation, so thermal improvements and some updating are likely needed. There is only one family bathroom for five bedrooms, which may be a constraint for larger households. The wider area scores as deprived, and parts of the property will benefit from modernisation to match contemporary energy and comfort expectations.
This home will appeal to families seeking seaside proximity and outdoor space with scope to refurbish and add value. It is best suited to buyers willing to invest in improvements — insulation, possible reconfiguration of bathrooms and modern finishes — to unlock its full potential.
5 bedroom detached house for sale in First Avenue, Clacton-On-Sea, CO15 — £550,000 • 5 bed • 3 bath
5 bedroom detached house for sale in Albany Gardens West, Clacton-On-Sea, CO15 — £550,000 • 5 bed • 3 bath
5 bedroom detached house for sale in Marine Parade East, Clacton-On-Sea, CO15 — £800,000 • 5 bed • 3 bath • 2420 ft²
4 bedroom detached house for sale in Connaught Gardens West, Clacton on Sea, CO15 — £625,000 • 4 bed • 2 bath • 1560 ft²
5 bedroom detached house for sale in West Road, Clacton-On-Sea, CO15 — £450,000 • 5 bed • 1 bath • 1507 ft²
3 bedroom detached house for sale in Beacon Hill Avenue, Harwich, Essex, CO12 — £335,000 • 3 bed • 1 bath • 1145 ft²


































































































