Spacious Victorian first-floor home overlooking private communal gardens.
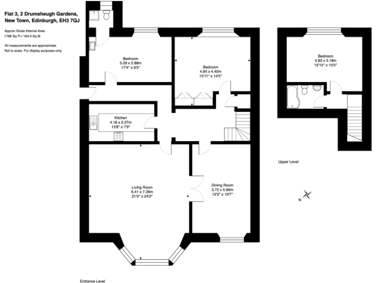
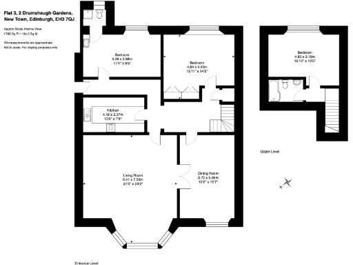
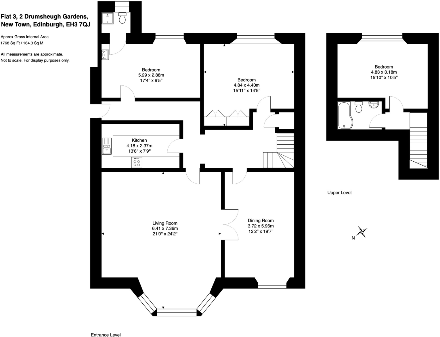
Large first-floor split-level flat across three tiers (1768 sqft)
Set within a handsome converted Victorian townhouse on one of Edinburgh’s most prestigious crescents, this first-floor, split-level flat offers expansive rooms and striking period detail. The large drawing room features a floor-to-ceiling bay with views over the private Drumsheugh Gardens, while high ceilings, ornate cornicing and original moldings run throughout, lending true character and presence.
Arranged over three tiers, the home provides three generous double bedrooms, two reception rooms and two bathrooms. The principal bedroom sits on the quiet side and benefits from an en-suite with underfloor heating. A well-equipped kitchen includes granite worktops and selected Miele appliances; good built-in storage and a large attic accessed by a Ramsay ladder add practical space.
This property will particularly suit families or professionals seeking refined central living with historical charm. It is freehold and comes with an EPC rating of C, excellent mobile signal and fast broadband. The location offers immediate access to West End shops and the private Drumsheugh Gardens, with many prominent schools close by.
Buyers should note the flat is Category B listed, which may restrict alterations and require specialist consent for changes. The split-level, three-tier layout involves multiple flights of stairs and may not suit those with limited mobility. Local data flags wider area deprivation despite the address’s prime West End setting; prospective purchasers should check implications for services and insurance.
3 bedroom apartment for sale in Drumsheugh Gardens, Edinburgh, Midlothian, EH3 — £600,000 • 3 bed • 3 bath • 1893 ft²
2 bedroom apartment for sale in Drumsheugh Gardens, West End, Edinburgh, EH3 — £595,000 • 2 bed • 2 bath • 1488 ft²
2 bedroom apartment for sale in Drumsheugh Gardens, West End, Edinburgh, EH3 — £725,000 • 2 bed • 2 bath • 1309 ft²
3 bedroom flat for sale in 2A Coates Place, Edinburgh, EH3 7AA, EH3 — £600,000 • 3 bed • 2 bath • 1871 ft²
2 bedroom flat for sale in Grosvenor Crescent, Edinburgh, EH12 — £565,000 • 2 bed • 1 bath • 1313 ft²
1 bedroom flat for sale in Drumsheugh Gardens, Edinburgh, EH3 — £430,000 • 1 bed • 1 bath • 725 ft²










































































