Generous period two-bed with private garden access and classic features.
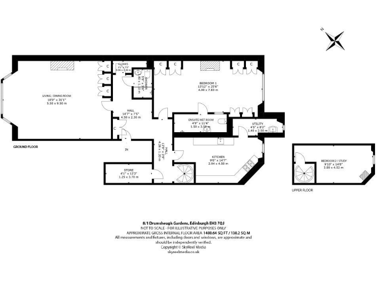
Ground-floor B‑listed Victorian apartment, approx. 1,488 sq ft
An elegant, unusually spacious two-bedroom, two-bathroom apartment set on the ground floor of a handsome B‑listed Victorian townhouse in Edinburgh’s sought-after West End. At around 1,488 sq ft this home retains strong period character—high ceilings, decorative cornicing, original fireplaces and large sash-and-case windows that look onto the private, tree-lined Drumsheugh Gardens. The layout includes a principal bedroom with ensuite wet room, a second double or study, a separate fitted kitchen with utility room, and excellent built-in storage.
Residents have right of access to the well-maintained communal gardens (annual fee applies) and benefit from good digital connectivity with excellent mobile signal and fast broadband. The property is freehold and comes with resident permit and metered on-street parking; a shared cellar space sits beneath the pavement for additional storage.
Practical considerations are clear and should inform any viewing: the building’s B listed status restricts alterations and can complicate major works or refits. The EPC is rated D and Council Tax Band G, so running costs may be higher than average. The wider area mixes professional services with a lively, student-oriented neighbourhood; some parts are described as deprived, which may affect immediate resale or rental tone despite the strong central location.
This apartment will suit buyers seeking a distinctive period home with generous proportions and garden access in a central conservation setting—ideal for those who value character and location and are comfortable with listed-building constraints and the associated upkeep and costs.
3 bedroom apartment for sale in Drumsheugh Gardens, Edinburgh, Midlothian, EH3 — £600,000 • 3 bed • 3 bath • 1893 ft²
3 bedroom apartment for sale in 2 1F Drumsheugh Gardens, Edinburgh, EH3 — £795,000 • 3 bed • 2 bath • 1768 ft²
3 bedroom flat for sale in 2A Coates Place, Edinburgh, EH3 7AA, EH3 — £600,000 • 3 bed • 2 bath • 1871 ft²
2 bedroom apartment for sale in Drumsheugh Gardens, West End, Edinburgh, EH3 — £725,000 • 2 bed • 2 bath • 1309 ft²
2 bedroom flat for sale in 8 F1, Douglas Crescent, West End, Edinburgh, EH12 5BB, EH12 — £450,000 • 2 bed • 1 bath • 867 ft²
2 bedroom flat for sale in Coates Gardens, West End, Edinburgh, EH12 — £525,000 • 2 bed • 1 bath • 1367 ft²


















































































































