Chain-free one-bedroom with private patio, large reception and flexible workspace.
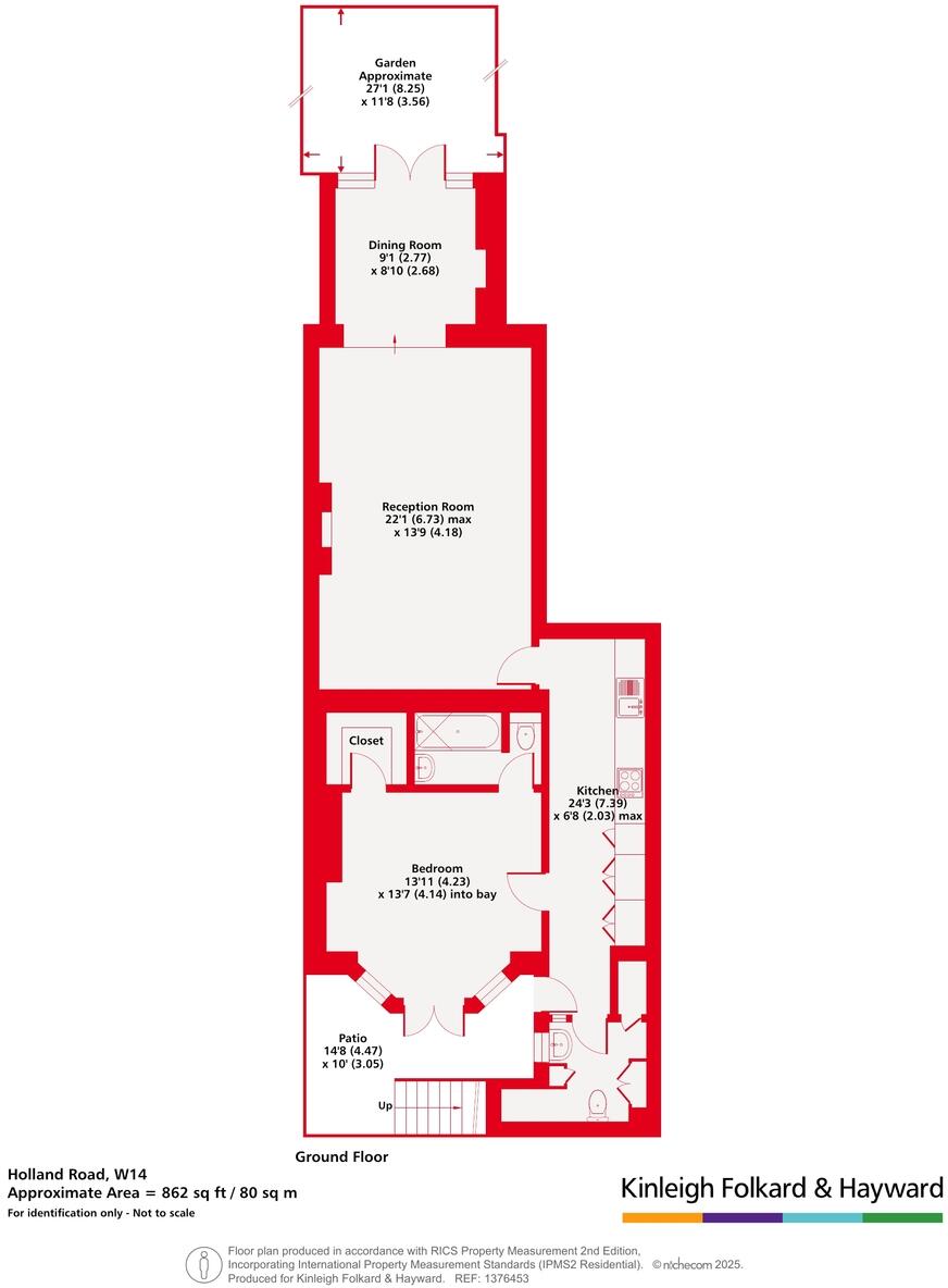
Over 860 sq ft — unusually large one-bedroom apartment
A one-bedroom garden apartment set within a stucco-fronted Victorian building just off Holland Park and Kensington. At over 860 sq ft this ground-floor home feels unusually spacious for the area, with a large reception that flows to a flexible study/home-office and direct access to a private rear garden.
Practical layout includes a separate fitted kitchen with quartz worktops, a double bedroom with walk-in wardrobe and bay window, and two bathrooms — a flexible arrangement for guests or working from home. The property is sold with a share of freehold and offered chain-free, making for a straightforward purchase.
Buyers should note the property’s EPC rating of E and that the building’s solid brick construction likely lacks cavity insulation. Heating is via a community mains-gas scheme, and energy or insulation upgrades may be beneficial. Crime levels in the area are above average; purchasers should consider personal security measures.
Location is a genuine strength: moments from Holland Park, Kensington High Street and Westfield, with excellent transport links at nearby stations and a wide choice of schools and local amenities. Overall this home suits a first-time buyer seeking generous living space, outdoor access and immediate move-in potential, while also offering scope for energy improvements and cosmetic updating.
1 bedroom flat for sale in Holland Park Avenue, W11 — £975,000 • 1 bed • 1 bath • 883 ft²
1 bedroom flat for sale in Airlie Gardens, Kensington, London, W8 — £625,000 • 1 bed • 1 bath • 501 ft²
2 bedroom flat for sale in Holland Road, Holland Park, London, W14 — £750,000 • 2 bed • 2 bath • 908 ft²
2 bedroom flat for sale in Elsham Road, Holland Park, W14 — £900,000 • 2 bed • 1 bath • 851 ft²
3 bedroom apartment for sale in Holland Road, Kensington, W14 — £1,195,000 • 3 bed • 2 bath • 1378 ft²
1 bedroom flat for sale in Bramham Gardens, London, SW5 — £1,100,000 • 1 bed • 1 bath • 1000 ft²


























































