Serviced plot with ready connections and approved plans near Tenby and Saundersfoot.
Full detailed planning permission for a three-bedroom detached bungalow
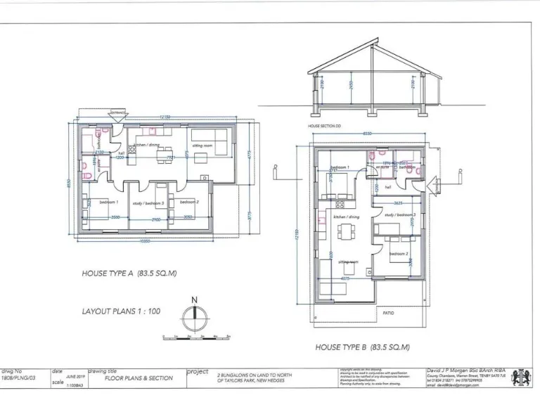
This is a rare central-village building plot in New Hedges with full detailed planning permission for a contemporary three‑bedroom detached bungalow. All mains services (water, electricity, gas, drainage and BT) are on site and ready for connection, and SUDS approval and building-regulation-ready plans have been prepared to help speed a purchaser’s build programme.
The plot is very large for the village and includes off-street parking for 3–4 cars, a surrounding garden with close‑board fencing and natural hedgerow boundaries, and an open-plan lounge/kitchen/diner layout included in the planning. The site sits equidistant between the popular coastal resorts of Tenby and Saundersfoot and lies within the Pembrokeshire Coast National Park, offering coastal access and countryside appeal.
Buyers must factor in the cost and time of construction: this is a serviced plot sold for redevelopment rather than a finished home. Photographs available are of the neighbouring Plot B (already developed) and are for reference only; Plot A is a vacant plot and will require the purchaser to commission the build. Broadband and mobile signal are average locally, and the wider area is classified as an ageing, renting rural neighbourhood with high area deprivation — important considerations for resale or rental planning.
Overall, the plot suits downsizers, buyers seeking a single‑level new build in a village setting, or investors prepared to deliver the permitted bungalow. The combination of full planning, services in place and a large village plot reduces several early-stage risks, but purchasers should budget for full construction costs and check local infrastructure expectations before exchange.
Property for sale in Begelly, Kilgetty, SA68 — £99,950 • 1 bed • 1 bath • 1411 ft²
Land for sale in Hill Lane, Kilgetty, Pembrokeshire, SA68 — £150,000 • 4 bed • 3 bath • 2146 ft²
Land for sale in Building Plot, The Commons, Pembroke, SA71 — £105,000 • 1 bed • 1 bath
Property for sale in Style House, Jameston, SA70 — £110,000 • 1 bed • 1 bath • 6749 ft²
Plot for sale in Plot 1 to the rear of Mountain Ash Cottage, Sandyhill Road Saundersfoot, West Wales, SA69 9DR, SA69 — £325,000 • 1 bed • 1 bath
Plot for sale in Plot 2 to the rear of Mountain Ash Cottage, Sandyhill Road Saundersfoot, West Wales, SA69 9DR, SA69 — £325,000 • 1 bed • 1 bath






























































