Full planning for a contemporary 4-bed coastal home — sustainable spec, off-street parking, garden..
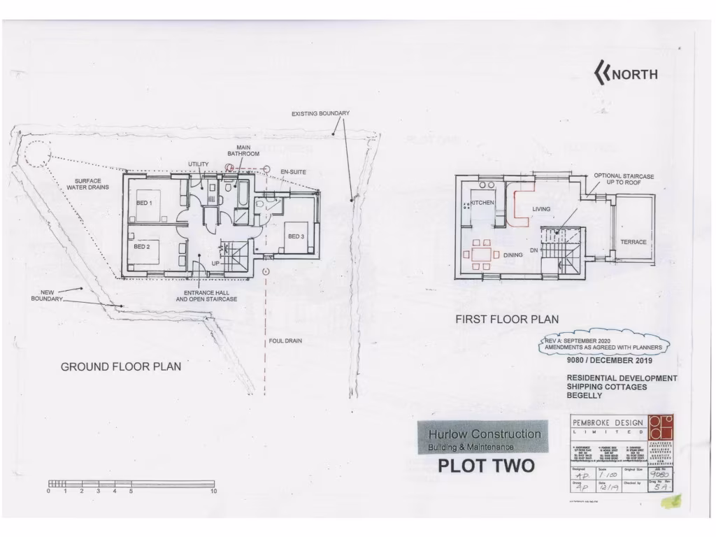
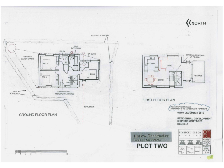
- Full Planning Permission for 3-storey, 4-bed, 3-bath (Ref: 19/1011/PA)
- EPC B, air-source heat pump and solar panels specified
- Off-street parking, garden and outdoor sun terrace included
- Approved gross area approx. 1,411 sq ft (three storeys)
- Price £99,950 — lower entry for new-build project
- Tenure unknown — purchaser to verify title and services
- Area classified as very deprived; local economy rural/farming
- Nearby buildings built pre-1900; walls assumed uninsulated
A rare development plot with full planning permission (Ref: 19/1011/PA) for a three-storey, 4-bedroom, 3-bathroom detached house in semi-rural Begelly. The approved design is contemporary and energy-conscious — EPC B, air-source heat pump, underfloor heating, large windows, timber cladding and solar panels — suiting buyers wanting a low-running-cost new build close to the Pembrokeshire coast. The plot sits opposite the village shop with countryside views and easy access to Tenby, Saundersfoot, Kilgetty and Narberth.
This opportunity suits self-builders, investors or buyers seeking a new-build home without waiting for construction: full permission is in place and the site includes off-street parking, a garden and an outdoor sun terrace. The overall footprint is generous (approx. 1,411 sq ft approved) and the layout provides flexible living across three storeys with a utility room and en-suite shown on the plans.
Buyers should note some material points: the plot sits in an area classified as very deprived and wider local employment is in older farming communities; tenure is listed as unknown and the historic fabric of nearby buildings dates before 1900 (walls described as sandstone/limestone with assumed lack of insulation). Broadband is average while mobile signal is excellent. All prospective purchasers should confirm title, services, build costs and any local planning conditions before committing.
Offered at £99,950, this plot represents a lower-cost route into a contemporary coastal-area home or a development/refurbishment investment, but it requires capital for construction and due diligence on services and tenure. The planning permission, EPC rating and sustainable specification are strong value-drivers for the right buyer.
Plot for sale in Carmarthen Road, Kilgetty, SA68 — £90,000 • 1 bed • 1 bath
Land for sale in Hill Lane, Kilgetty, Pembrokeshire, SA68 — £150,000 • 4 bed • 3 bath • 2146 ft²
Plot for sale in 2 Building Plots With Full PP Opposite West Holloway House, Penally, SA70 — £150,000 • 1 bed • 1 bath
Plot for sale in Building Plot with Planning, New Hedges, SA70 — £135,000 • 1 bed • 1 bath • 899 ft²
Land for sale in Milton Terrace, Pembroke Dock, Pembrokeshire, SA72 — £50,000 • 1 bed • 1 bath
Plot for sale in Dan Y Bryn, Llanmiloe, Carmarthen, SA33 — £120,000 • 1 bed • 1 bath • 692 ft²


























