**Standout Features:**
- **Planning Permission**: Approved for a detached four-bedroom family home.
- **Prime Location**: Elevated position in Saundersfoot, just a short stroll to the beach, harbor, shops, and restaurants.
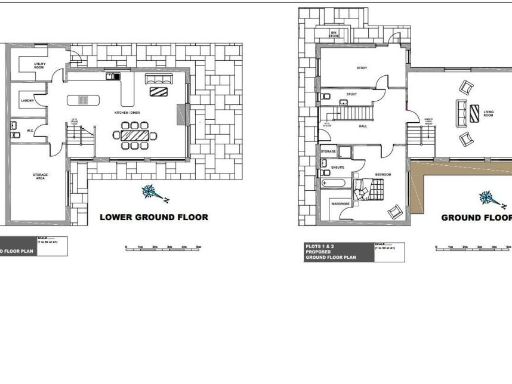
- **Flexible Living Space**: Contemporary open-plan living area, separate living room, home office, and multiple utility features.
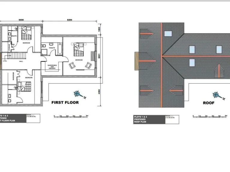
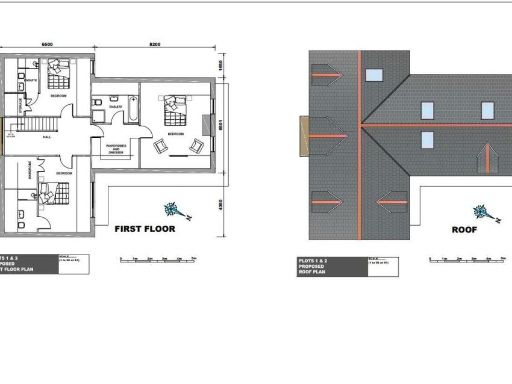
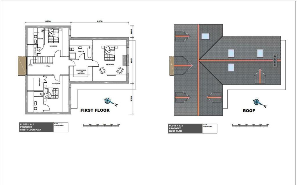
- **En-Suite Bedrooms**: Four generously sized en-suite double bedrooms offer comfort and privacy.
- **Ample Parking and Garden**: Driveway parking and spacious rear garden for outdoor enjoyment.
- **Quiet Area**: Set in a peaceful location within the Pembrokeshire Coast National Park.
**Summary:**
This plot presents an exceptional opportunity to create your dream family home in a coveted area of Saundersfoot. With planning permission in place for a contemporary four-bedroom dwelling, this is perfect for those looking to build a spacious and luxurious residence in a tranquil setting. Imagine creating family memories just a stone's throw from the beach, harbor, and local amenities, with the popular seaside town of Tenby only a short drive away.
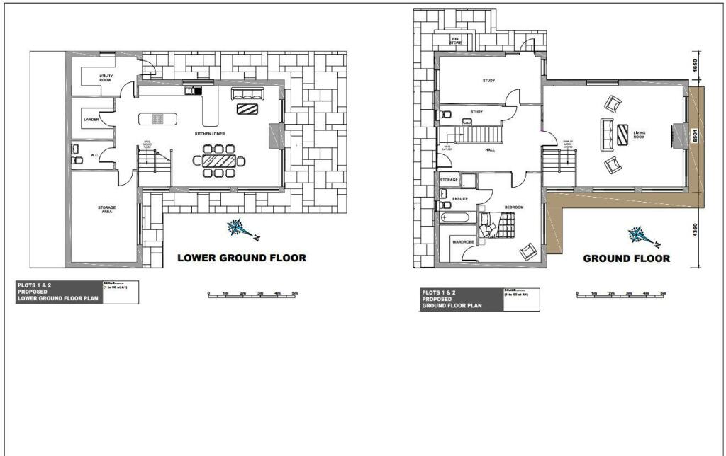
The innovative design includes an open-plan living area on the lower ground floor, along with a separate living room and study for versatility. Each of the four double bedrooms comes with its own en-suite, ensuring comfort for the whole family, while the beautifully landscaped garden and off-street parking provide an idyllic living space.
Seize this opportunity to invest in your future—plots like this are rare, so act quickly to secure a slice of coastal paradise in West Wales!
Plot for sale in Plot 1 to the rear of Mountain Ash Cottage, Sandyhill Road Saundersfoot, West Wales, SA69 9DR, SA69 — £325,000 • 1 bed • 1 bath
Land for sale in Hill Lane, Kilgetty, Pembrokeshire, SA68 — £150,000 • 4 bed • 3 bath • 2146 ft²
Plot for sale in Building Plot with Planning, New Hedges, SA70 — £135,000 • 1 bed • 1 bath • 899 ft²
Plot for sale in Carmarthen Road, Kilgetty, SA68 — £90,000 • 1 bed • 1 bath
Plot for sale in Building Plot Adjacent To Shipping Cottages, SA68 — £99,950 • 4 bed • 3 bath
Plot for sale in Dan Y Bryn, Llanmiloe, Carmarthen, SA33 — £120,000 • 1 bed • 1 bath • 692 ft²






















