Very large plot with preliminary planning for a three-bed house near Pembrokeshire beaches.
Very large level plot approx 33m x 19m
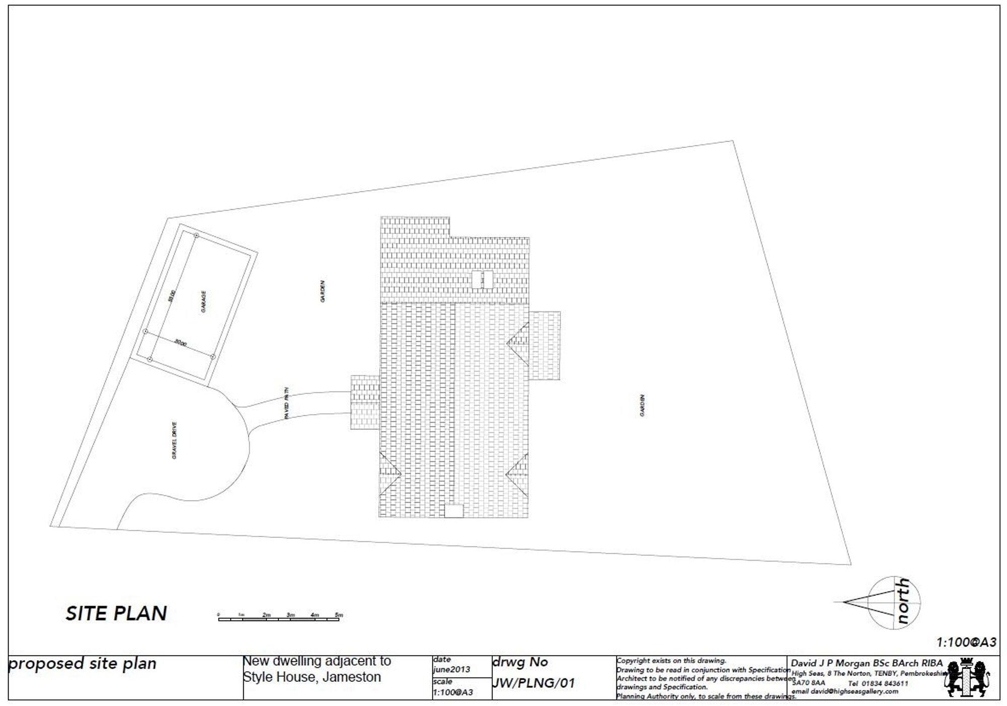
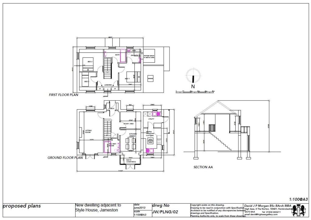
A rare, very large level building plot (approx 33m x 19m) in semi-rural Jameston with preliminary planning permission (PA/23/0134) for a two-storey, three-bedroom detached house. The site has its own private lane access, sits adjacent to the village hall and Style House, and benefits from open views over rolling Pembrokeshire countryside. Beaches at Swanlake Bay and Manorbier are within walking distance and Tenby and Saundersfoot are a short drive away.
The plot is suitable for a main residence, holiday let or second home, offering clear development potential in a National Park setting. Flood risk is reported as nil and broadband/mobile signals are average. The plot’s size and level topography make it straightforward to build on, and a slightly smaller design than the preliminary scheme is likely to be considered favourably by planners.
Material considerations: planning is described as preliminary rather than final, so further approvals or adjustments may be required. The purchaser will need to enter a legal agreement to pay a contribution to the local authority’s affordable housing fund. Part of the access lane is common land with the remainder forming part of the plot’s curtilage; buyers should check access and boundary details before purchase.
This plot is best suited to a buyer comfortable managing a small planning process and legal checks — an investor or owner-builder seeking a seaside-proximate property with development upside and strong local holiday-letting potential.
Plot for sale in Plot Adj. To Style House, Jameston, SA70 — £110,000 • 1 bed • 1 bath • 951 ft²
Plot for sale in Bush Park, Jameston, Tenby, SA70 — £135,000 • 1 bed • 1 bath • 1368 ft²
Plot for sale in Carmarthen Road, Kilgetty, SA68 — £90,000 • 1 bed • 1 bath
Land for sale in Hill Lane, Kilgetty, Pembrokeshire, SA68 — £150,000 • 4 bed • 3 bath • 2146 ft²
Land for sale in Building Plot, Charles Thomas Avenue, Pembroke Dock, SA72 — £100,000 • 1 bed • 1 bath
Land for sale in Building Plot, The Commons, Pembroke, SA71 — £105,000 • 1 bed • 1 bath














































































