**Standout Features:**
- Planning permission for a modern, detached four-bedroom family home
- Elevated location in Saundersfoot, just a short stroll from the Harbour and beaches
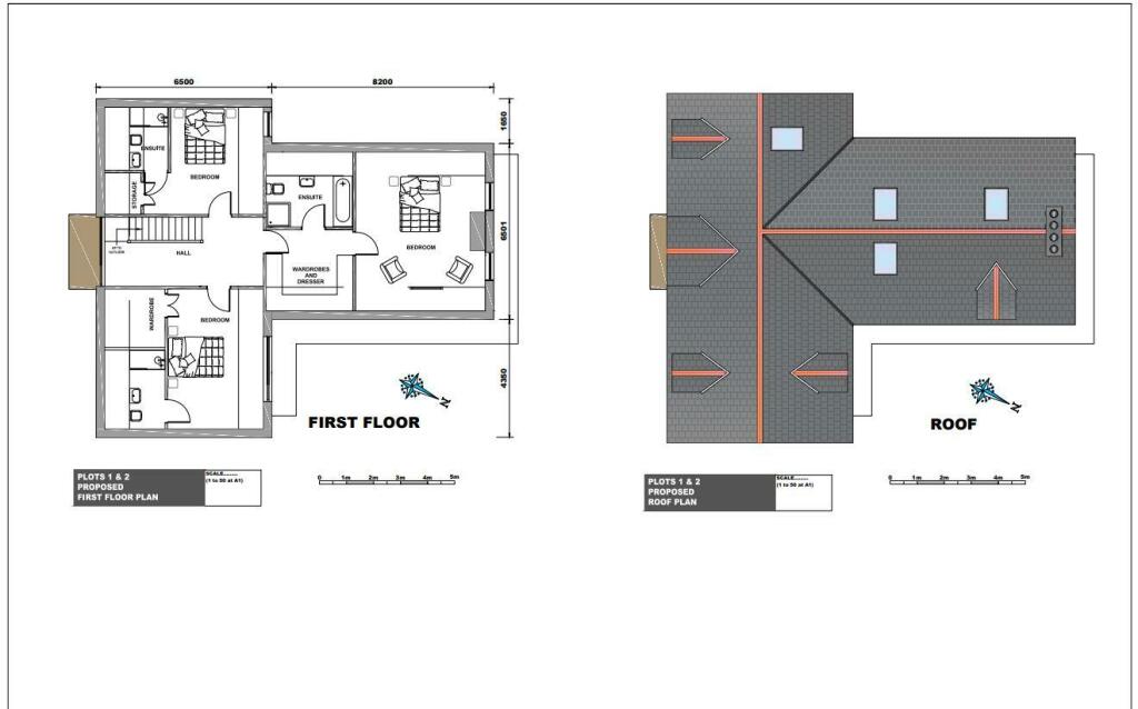
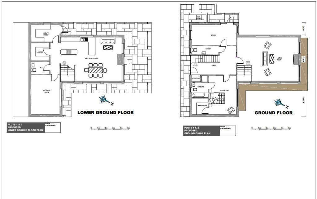
- Contemporary open plan layout, including a large family living area and separate study/home office
- Four en-suite double bedrooms and multiple utility spaces
- Off-street driveway parking and rear gardens
- Proximity to both Saundersfoot amenities and nearby Tenby
**Summary:**
Seize the opportunity to create your dream family home in the beautiful Saundersfoot, West Wales, with approved planning permission for a stunning modern design. Located in a desirable elevated spot, this plot is within walking distance of the Harbour, pristine beaches, shops, and restaurants, offering the perfect blend of coastal living and convenience. The proposed home boasts an airy open-plan layout ideal for contemporary family life, featuring a spacious lower ground living area, a dedicated study, and four en-suite bedrooms. Enjoy ample outdoor space with a private garden and driveway parking, all set against the backdrop of the picturesque Pembrokeshire Coast National Park.
While the local area is categorized as "very deprived," the extremely low crime rate and excellent mobile signal make it a safe and connected environment. This property holds incredible potential for investors or families looking to build and customize their forever home. Don’t miss this chance to secure a prime plot in a vibrant community—opportunities like this are rare and sure to attract interest!
Plot for sale in Plot 2 to the rear of Mountain Ash Cottage, Sandyhill Road Saundersfoot, West Wales, SA69 9DR, SA69 — £325,000 • 1 bed • 1 bath
Land for sale in Hill Lane, Kilgetty, Pembrokeshire, SA68 — £150,000 • 4 bed • 3 bath • 2146 ft²
Plot for sale in Building Plot with Planning, New Hedges, SA70 — £135,000 • 1 bed • 1 bath • 899 ft²
Plot for sale in Carmarthen Road, Kilgetty, SA68 — £90,000 • 1 bed • 1 bath
Plot for sale in Building Plot Adjacent To Shipping Cottages, SA68 — £99,950 • 4 bed • 3 bath
4 bedroom detached house for sale in Myrtle Grove, The Ridgeway, Saundersfoot, SA69 — £550,000 • 4 bed • 1 bath • 1390 ft²






















