Compact family home with new boiler and easy parking close to schools.
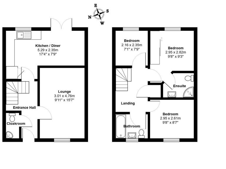
Three bedrooms with en-suite to master
New combi boiler installed January 2025
South-east facing rear garden with decking and patio
Sealed-unit double glazing; install date unknown
Single garage plus one off-road parking space
Modest overall floor area (approx 515 sq ft)
Freehold; mains gas central heating and radiators
Local amenities good; some nearby schools Require Improvement
A well-presented three-bedroom semi in Cedars Park, Stowmarket, ideal for families or buy-to-let investors seeking immediate occupancy. The layout includes a ground-floor cloakroom, a sitting room and an open-plan kitchen/diner with French doors onto a south-east facing garden — good for morning sun and casual outdoor dining. The principal bedroom has an en-suite and built-in wardrobe, making it practical for a small family or sharers.
Practical running costs are supported by a newly installed boiler (January 2025) and sealed-unit double glazing. The property is freehold, has mains gas central heating and a single garage plus one off-road parking space, useful in a development where on-street spaces can be limited. Broadband and mobile signals are strong locally, and several primary schools rated Good are within reach.
Size and setting are the main trade-offs. The overall internal floor area and garden are modest, so the house suits buyers needing a compact family home or a low-maintenance investment rather than those wanting generous rooms or large outdoor space. A few nearby schools and amenities vary in Ofsted rating, and crime levels are around local average — factors to weigh for families. The house is modern and well-maintained but offers limited scope for major extension without checking planning constraints.
3 bedroom semi-detached house for sale in Egret Drive, Stowmarket, IP14 — £285,000 • 3 bed • 2 bath • 954 ft²
3 bedroom terraced house for sale in Robin Close, Stowmarket, Suffolk, IP14 — £260,000 • 3 bed • 2 bath • 786 ft²
3 bedroom end of terrace house for sale in Nuthatch Close, Stowmarket, Suffolk, IP14 — £250,000 • 3 bed • 2 bath • 944 ft²
3 bedroom end of terrace house for sale in Harrier Way, Stowmarket, IP14 — £280,000 • 3 bed • 2 bath • 872 ft²
3 bedroom house for sale in Jacksnipe Close, Stowmarket, IP14 — £285,000 • 3 bed • 2 bath • 947 ft²
4 bedroom town house for sale in Creeting Road East, Stowmarket, IP14 — £290,000 • 4 bed • 2 bath • 862 ft²






















































































