Create a bespoke family home on expansive grounds with stables and countryside views.
Circa 5.56 acre freehold plot with established equestrian facilities
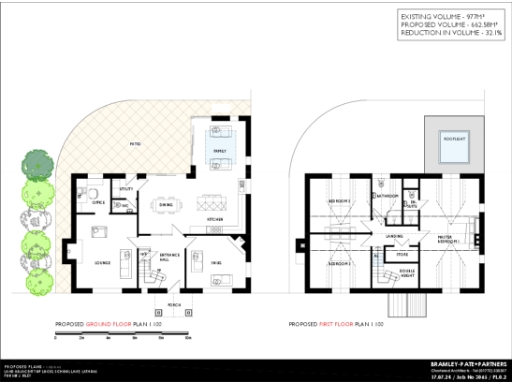
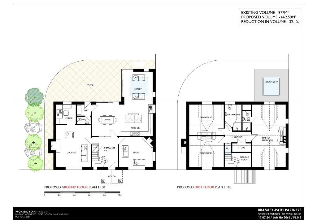
An exceptional development plot of circa 5.56 acres on the edge of Burscough, offered with full planning consent for a bespoke three-bedroom detached house (West Lancashire ref 2024/0961/FUL). The site includes established equestrian facilities, a private driveway from School Lane and generous outdoor space with countryside and canal views. The freehold plot is substantial and highly unusual in this sought-after semi-rural setting.
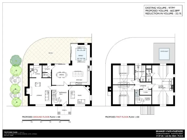
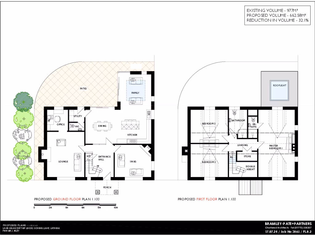
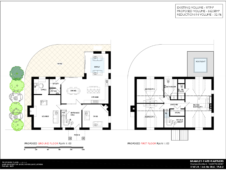
The approved scheme provides about 2,493 sqft of accommodation across a multi-story layout: entrance hall, two reception rooms, open-plan kitchen, home office, utility and ground-floor WC, plus a master suite with en-suite, two further doubles and a family bathroom. The consented design also includes parking and a garage. There is scope to seek further consents to extend the scheme to a five-bedroom home, subject to planning approval.
Practical considerations are stated plainly: broadband speeds at the site are very slow despite excellent mobile signal, and any expansion beyond the current consent will require additional planning permission. The equestrian facilities and expansive grounds will require regular maintenance and management. One nearby secondary school has an Inadequate Ofsted rating; several other local primary and secondary schools are rated Good.
This plot will suit a buyer seeking a high‑value bespoke new home or an experienced developer/investor able to manage rural servicing and planning matters. Flood risk is recorded as none, crime is low and the area is very affluent — making this a rare opportunity to create a substantial family residence or an upmarket rural dwelling close to village amenities and two railway stations.
Land for sale in Trigg Lane, PR6 — £285,000 • 1 bed • 1 bath • 2950 ft²
5 bedroom detached bungalow for sale in Church Lane, Lydiate, L31 — £795,000 • 5 bed • 1 bath
3 bedroom semi-detached house for sale in Vale Lane, Lathom, Ormskirk, Lancashire, L40 — £750,000 • 3 bed • 2 bath • 1873 ft²
2 bedroom cottage for sale in New Cut Lane, Halsall, L39 — £600,000 • 2 bed • 1 bath • 2806 ft²
Land for sale in Building Plot, Charlesbye Farm, Greetby Hill, Ormskirk, L39 2DT, L39 — £270,000 • 4 bed • 1 bath • 2024 ft²
Plot for sale in Lodge Lane, Manchester Road, Leigh, Greater Manchester, WN7 — £575,000 • 1 bed • 1 bath • 3740 ft²






































































