Substantial plot and outbuildings ideal for redevelopment or smallholding.
Set on approximately one acre with expansive, private grounds
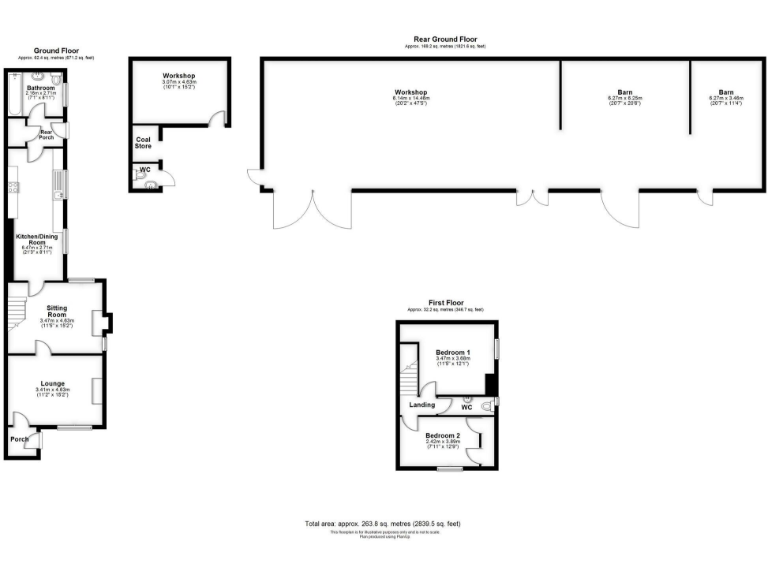
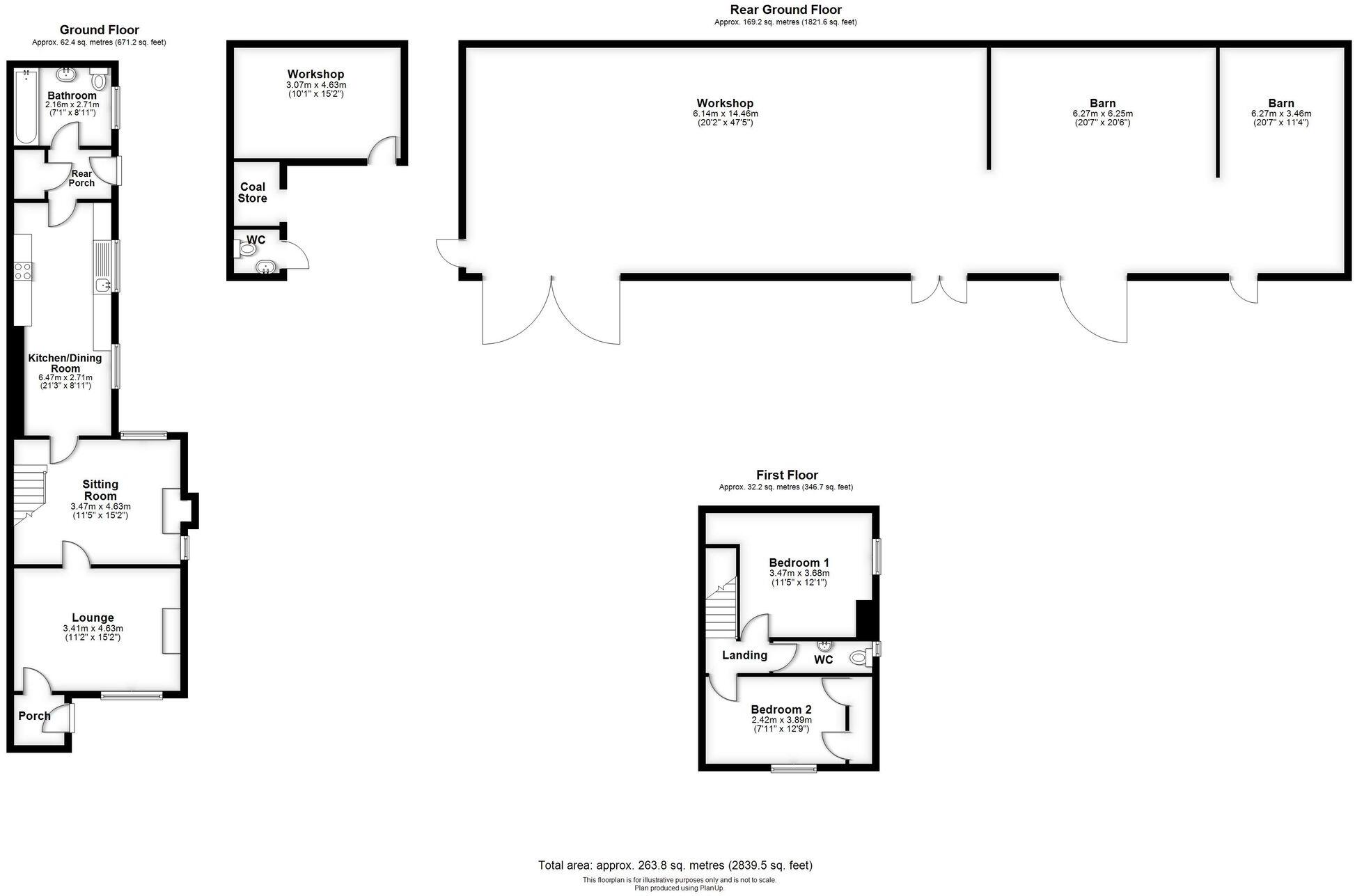
Set on approximately one acre in a peaceful semi-rural hamlet, this two-bedroom semi-detached cottage offers major scope for renovation or redevelopment, subject to planning. The house sits within very large grounds with extensive outbuildings, former stables and sheltered allotment areas, making it well suited to buyers seeking a smallholding, workshop space or long-term investment in West Lancashire.
The existing accommodation is simple: front living room, second reception leading to kitchen, ground-floor bathroom and two first-floor bedrooms with a separate WC. The building requires full modernisation throughout and presents a blank canvas for remodelling, extension or conversion. Services and energy efficiency are basic (EPC E) and will need upgrading as part of any programme of works.
Externally the plot is the principal asset. Mature gardens include a stocked pond, fenced sections for poultry or gardens, a gated area with additional sheds and a large workshop complex that links to former stables and storage — useful for hobbies, vehicle storage or small-scale commercial use (subject to consents). Broadband is very slow and the location is relatively remote, so buyers should factor connectivity and lifestyle implications into their plans.
This is a rare rural opportunity for a buyer who values land and potential over a finished home. The property suits an investor, smallholding enthusiast or someone seeking a substantial renovation project within easy driving distance of Birkdale and transport links to Southport and Liverpool.
2 bedroom semi-detached house for sale in Narrow Lane, Halsall, L39 — £430,000 • 2 bed • 1 bath • 855 ft²
2 bedroom semi-detached house for sale in Martin Lane, Burscough, Ormskirk, Lancashire, L40 — £325,000 • 2 bed • 1 bath • 1178 ft²
4 bedroom detached house for sale in Plex Lane, Halsall, L39 — £800,000 • 4 bed • 1 bath • 2106 ft²
4 bedroom detached house for sale in Plex Lane, Halsall, Ormskirk, L39 7JZ, L39 — £1,300,000 • 4 bed • 3 bath • 3251 ft²
3 bedroom detached bungalow for sale in New Street, Halsall, L39 — £375,000 • 3 bed • 1 bath • 1338 ft²
4 bedroom semi-detached house for sale in Summerwood Lane, Ormskirk, L39 8RJ, L39 — £425,000 • 4 bed • 1 bath • 1680 ft²






























































































































































