WN7 2NU - Plot for sale in Lodge Lane, Manchester Road, Leigh, Greate…

View on Property Piper

Plot for sale in Lodge Lane, Manchester Road, Leigh, Greater Manchester, WN7

Summary - BEDFORD LODGE FARM, LODGE LANE WN7 2NU

1 bed 1 bath Plot

**Standout Features:**
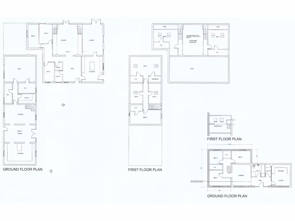
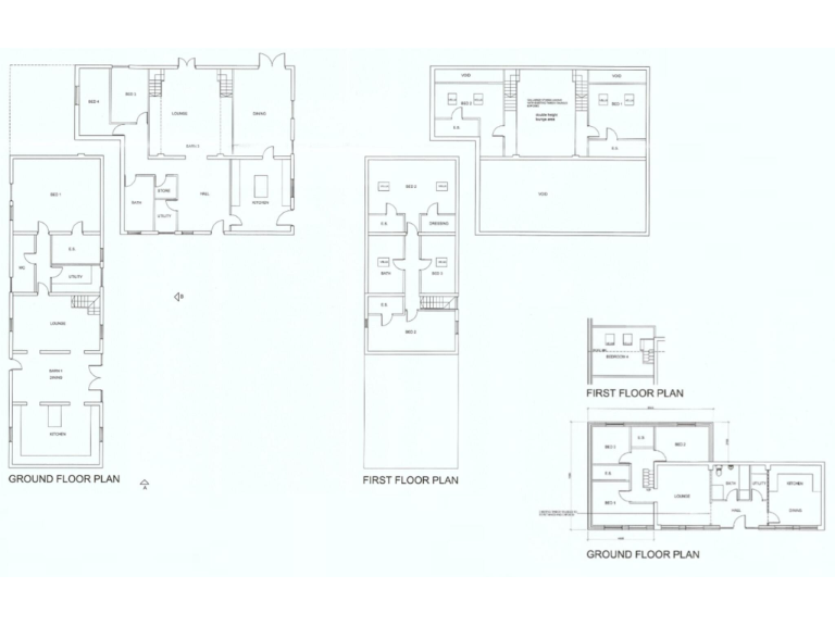
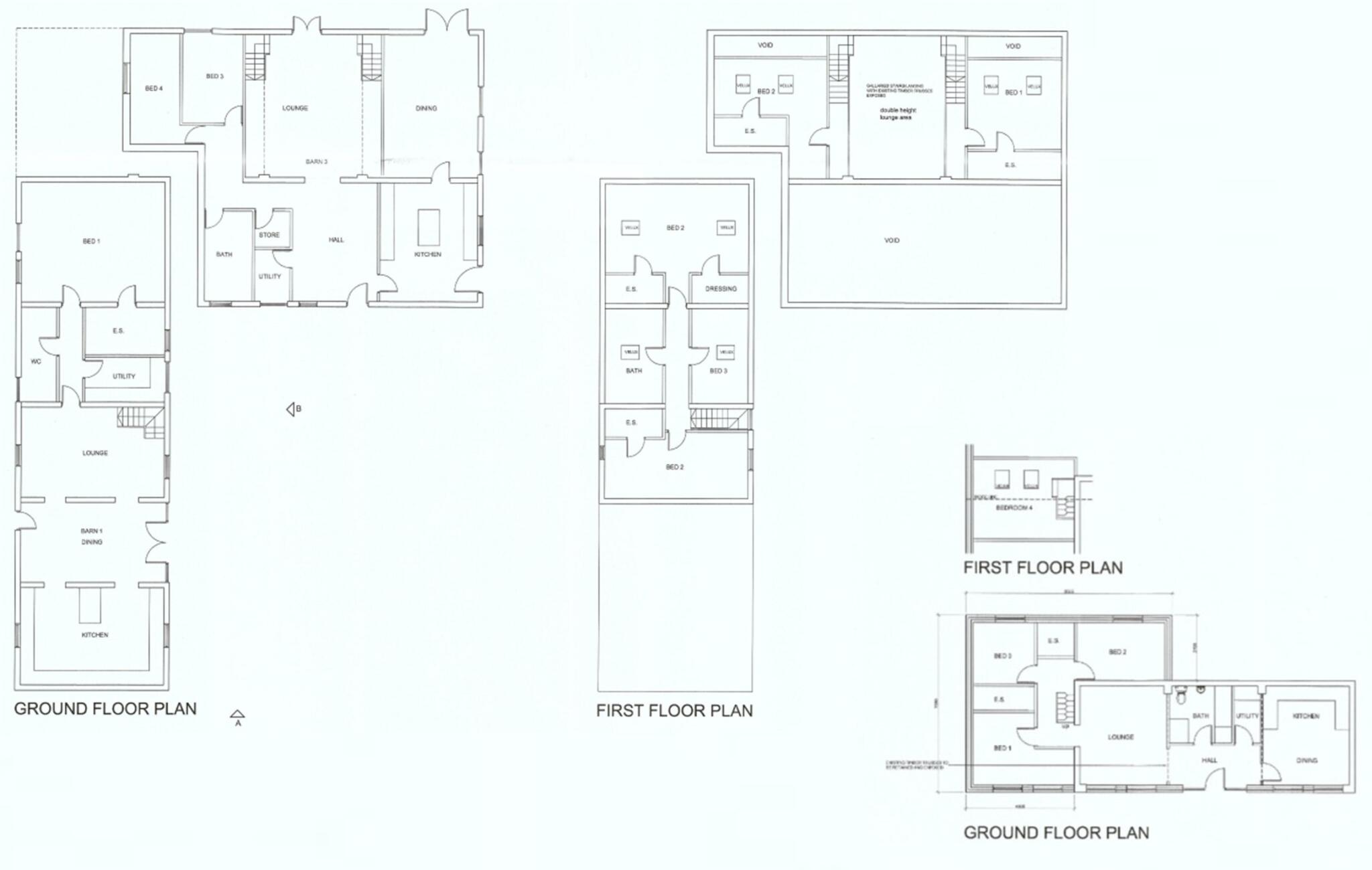
- Planning consent granted for three detached four-bedroom dwellings.
- Expansive 1.5-acre plot in a private setting.
- Close proximity to the A580 and local amenities.
- Traditional brick constructions with equestrian facilities and ample outdoor space.
- Rare development opportunity in a sought-after area.

**Concerns:**
- Located in an area classified as deprived.
- Broadband speeds are very slow; mobile signal is average.
- Potential need for renovations to existing structures.

Discover an exceptional development opportunity at Bedford Lodge Farm, where planning consent has been granted for three modern four-bedroom homes within a picturesque 1.5-acre plot. Nestled in a tranquil setting, just moments from the A580 and essential local amenities, this property is perfect for those looking to create a family-friendly enclave or capitalize on rental potential. The site features classic red brick stables and a large outdoor arena, offering a touch of rustic charm alongside modern living.

This rare offering not only promises spacious dwelling potential but also includes the possibility of acquiring additional land through separate negotiation, further enhancing its appeal. While the surrounding area does present some economic challenges, the serene countryside backdrop and proximity to essential services make it an attractive prospect for developers and private individuals alike. With the existing structures likely requiring some updating, seize the opportunity to transform this unique property into an idyllic residential estate that caters to your vision—don’t miss your chance to invest in a promising locale!

Property Details

Brochure Descriptions

Image Descriptions

Floorplan Description

Rooms

Textual Property Features

Detected Visual Features

Nearby Schools

Nearest Bars And Restaurants

,,,,}

Nearest General Shops

,,}

Nearest Grocery shops

,,}

Nearest Supermarkets

,,}

Nearest Religious buildings

,,}

Nearest Medical buildings

,,,}

Nearest Airports

,}

Nearest Leisure Facilities

,,,,}

Nearest Tourist attractions

,,}

Nearest Train stations

,,,,}

Nearest Bus stations and stops

,,,,}

Nearest Hotels

,,}

Tags

Local Market Stats

Similar Properties

Meta

High Res Images

Compatible Images

Low res Images

Thumbnails

Raw Images

High Res Floorplan Images

Compatible Floorplan Images

Low res Floorplan Images

FloorplanImages Thumbnail

Raw Floorplan Images