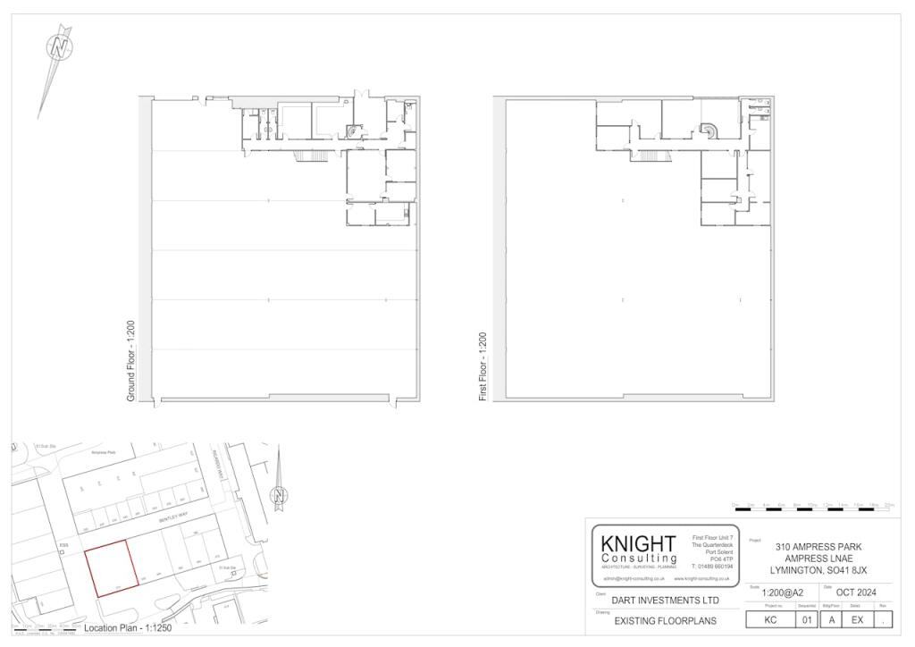
Large end-terrace warehouse with fitted offices, high eaves and on-site parking ideal for distribution or light manufacturing..
End-terrace industrial unit approx. 16,833 sq ft
Internal eaves approx. 6.2m; highest pitch c.8.6m
Fitted ground and first-floor offices with LED lighting
5m x 5m roller shutter loading door; suitable for HGV access
Tarmac car park with 19 marked spaces; off-street parking
3-phase electricity and gas available on site
Situated on established Ampress Park, 1.2 miles from Lymington
Contains internal structural columns; may limit large clear spans
This is a large, modern end-terrace warehouse (approx. 16,833 sq ft) on Ampress Park, presented with a fitted two-storey office block, good loading and a surfaced yard with 19 car spaces. The building benefits from steel-clad elevations, clerestory daylight panels, LED-lit air-conditioned offices and essential services including 3-phase electricity and gas. Internal eaves of about 6.2m (peak c.8.6m) and a 5m x 5m roller shutter suit pallet racking, distribution or light manufacturing operations.
The accommodation is ready for immediate occupation by an owner-occupier or investor: offices are finished with suspended ceilings, carpets, LED lighting, WCs, shower and canteen facilities. The estate location provides direct access to Lymington (c.1.2 miles) and neighbouring trade occupiers such as Toolstation, Howdens and Co-op petrol, helping staff provision and service supply. Flood risk is nil and the site sits within a well-established business park.
Practical considerations are straightforward: the unit is industrial in character with limited external views and is set among neighbouring commercial units rather than a standalone yard. Structural columns are present within the floorplate so very large clear-span racking/layouts may need careful planning. Car parking is surfaced and marked for 19 cars—adequate for many users but potentially constrained for high-turnover HGV operations.
For investors and operators the property’s size, fitted offices and estate location are genuine value drivers, supporting flexible occupational uses and rental appeal. Buyers should budget for ongoing estate and building maintenance typical of modern industrial units and assess fit-out changes if specialised production or heavy vehicle staging is required.
Light industrial facility for sale in Unit 21 Lymington Enterprise Centre, Ampress Lane, Ampress Park, Lymington, SO41 8LZ, SO41 — £275,000 • 1 bed • 1 bath • 1725 ft²
Warehouse for sale in Unit 7 Hardley Industrial Estate, Hardley, Southampton, SO45 3NQ, SO45 — £500,000 • 1 bed • 1 bath • 11530 ft²
Distribution warehouse for sale in Unit 330 Ampress Park, Ampress Lane, Lymington, Hampshire, SO41 — £1,030,000 • 1 bed • 1 bath • 7725 ft²
Light industrial facility for sale in 1 Premier Way, Abbey Industrial Estate, North Baddesley, Southampton, SO51 9DQ, SO51 — £4,400,000 • 1 bed • 1 bath • 29098 ft²
Warehouse for sale in 16a Westfield Industrial Estate, Portsmouth Road, Horndean, PO8 9JX, PO8 — £875,000 • 1 bed • 1 bath • 6870 ft²
Warehouse for sale in Units 46-54, Axis 31 Phase 6, Woolsbridge Industrial Park, Oak Field Road, Wimborne, BH21 6FE, BH21 — £275,000 • 1 bed • 1 bath • 755 ft²


































