Affordable two-bed starter close to stations and shops with parking and garden access.
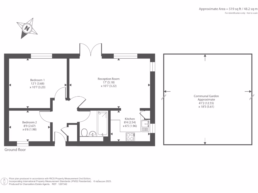
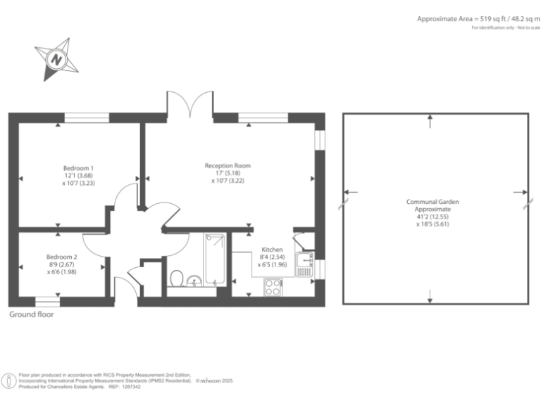
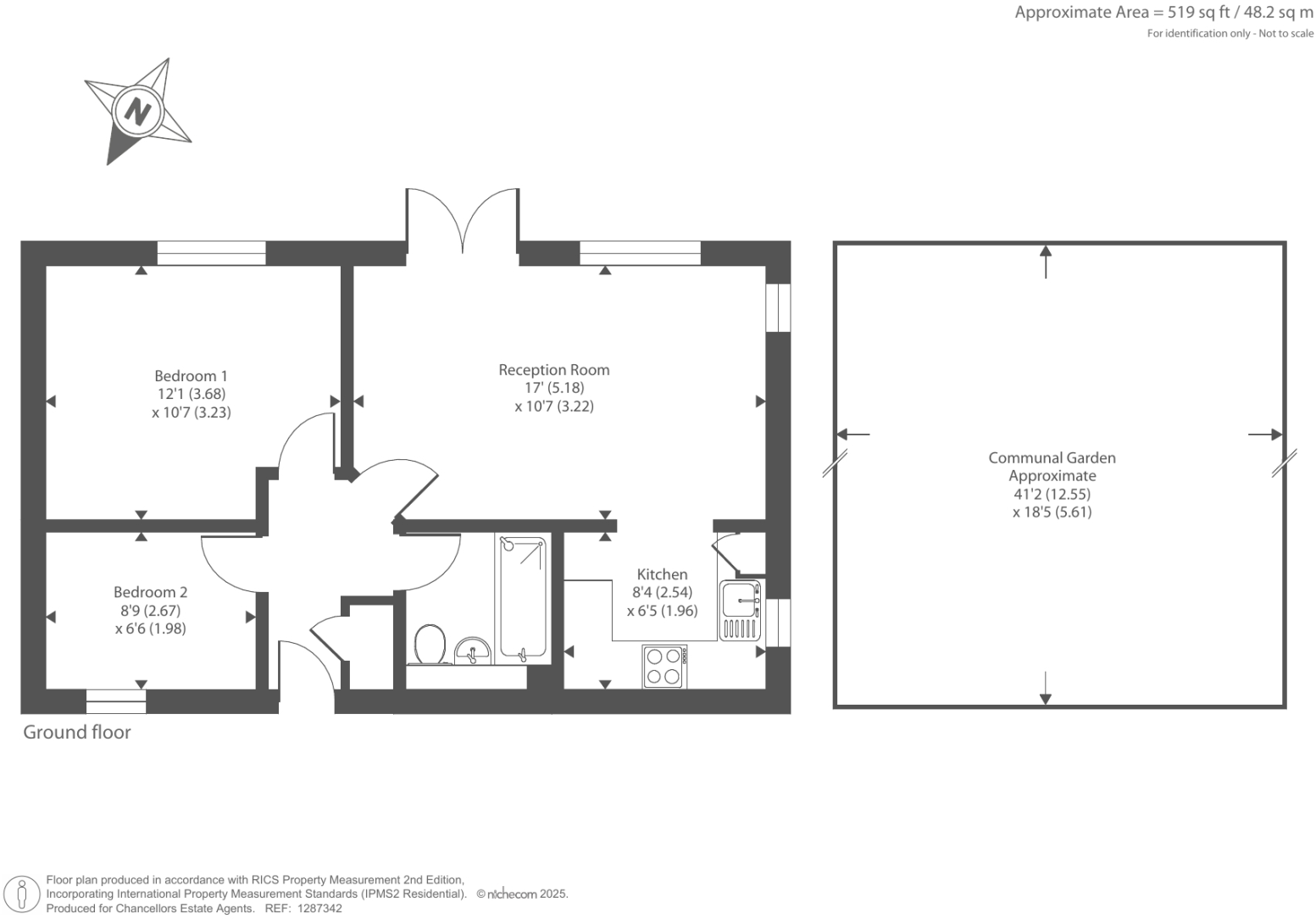
Two-bedroom ground-floor apartment, approx. 519 sq ft
Direct access to communal garden via French doors
Two allocated off-street parking spaces included
Share of freehold; 96 years remaining on lease
No onward chain — quick completion possible
Double glazed and gas central heating throughout
Compact internal size — limited living space
Local crime levels above area average; check local stats
Step into a compact, well-presented two-bedroom ground-floor apartment in Botley, offered with no onward chain. The flat provides efficient lateral accommodation (about 519 sq ft) with a reception room that opens via French doors to a well-maintained communal garden — a rare outside space for a ground-floor property.
Practical day-to-day living is supported by integrated kitchen appliances, double glazing throughout, gas central heating and two allocated off-street parking spaces. Broadband speeds are fast and mobile signal is excellent, making the flat suitable for home working and modern connectivity needs.
The building is purpose-built and modern (constructed c.1996–2002) and the ownership is a share of freehold. There are 96 years remaining on the lease. The flat’s compact footprint and ground-floor position will particularly suit first-time buyers or commuters seeking an affordable entry into Oxford with easy access to nearby transport links, shops and amenities.
Buyers should note the modest internal size and the limited lease length relative to new builds; these are factual considerations for mortgage lenders and future resale. Local crime statistics are above average for the area and should be factored into buyer due diligence. Overall, this is a practical, well-located starter home with outdoor space and parking in a well-connected Botley location.
2 bedroom flat for sale in Botley, Oxford, OX2 — £375,000 • 2 bed • 2 bath • 650 ft²
2 bedroom flat for sale in Botley, Oxford, OX2 — £330,000 • 2 bed • 2 bath • 732 ft²
1 bedroom flat for sale in Botley, Oxford, OX2 — £260,000 • 1 bed • 1 bath • 509 ft²
1 bedroom flat for sale in Botley, Oxford, OX2 — £275,000 • 1 bed • 1 bath • 535 ft²
2 bedroom flat for sale in Botley, Oxford, OX2 — £245,000 • 2 bed • 1 bath • 533 ft²
1 bedroom flat for sale in Botley, Oxford, OX2 — £210,000 • 1 bed • 1 bath • 336 ft²


























































