Long lease, parking and excellent transport links for city commuters.
Share of freehold with c.986 years remaining lease
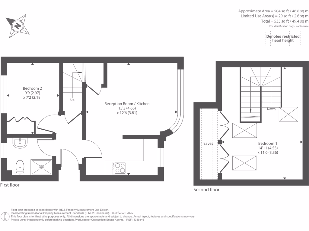
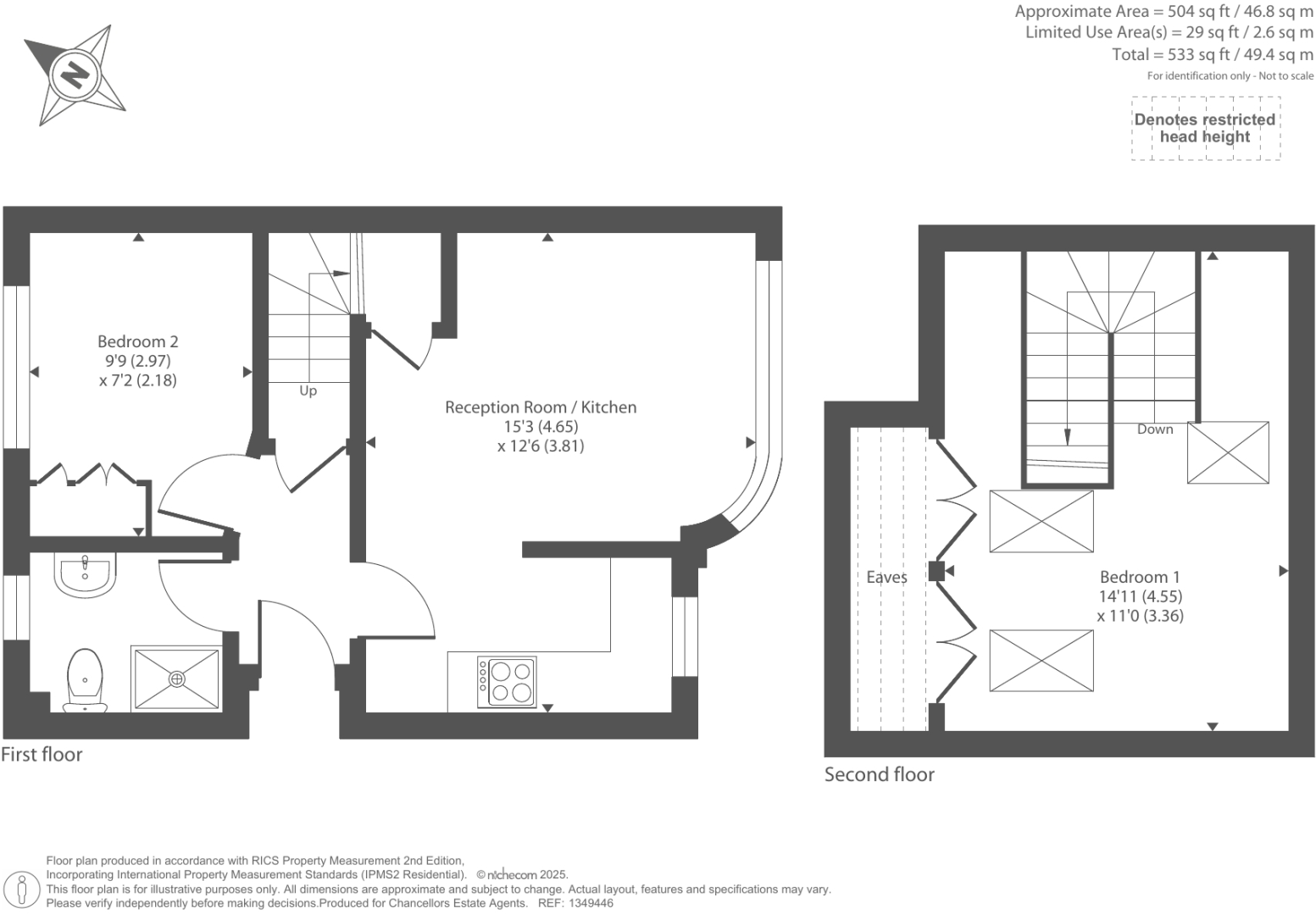
Presented with no onward chain, this split-level conversion offers a compact, well-presented home close to Oxford transport links. The apartment sits over the first and second floors, arranged to give a bay-front reception room, an open-plan fitted kitchen and two bedrooms, the principal tucked into the eaves for privacy. The long lease (around 986 years) and share of freehold give ownership security rare at this price point.
Practical features include double glazing throughout, a modern shower room, and an allocated off-street parking space — useful for commuters. A communal rear garden provides outdoor space, while the property’s location near Botley and Oxford stations and the A34 makes travel straightforward for work or leisure.
Be aware this is a small property (about 533–550 sq ft) and is arranged over two floors, so internal stairs are unavoidable and space is best suited to first-time buyers, couples or professionals. The building’s cavity walls are assumed to have no added insulation, which could mean higher heating costs unless improved. The communal garden is shared rather than private.
Local amenities are strong: shops, bus links and schools are within easy reach. School performance in the immediate area varies (one nearby primary rated ‘Requires improvement’, others rated ‘Good’ or independent), so check individual school places if that’s a priority. Overall, this is a sensible, low-risk entry into Oxford with good transport and long-term tenure benefits.
2 bedroom flat for sale in Botley, Oxford, OX2 — £375,000 • 2 bed • 2 bath • 650 ft²
1 bedroom flat for sale in Botley, Oxford, OX2 — £210,000 • 1 bed • 1 bath • 336 ft²
2 bedroom flat for sale in Botley, Oxford, OX2 — £330,000 • 2 bed • 2 bath • 732 ft²
2 bedroom flat for sale in Botley, Oxford, OX2 — £325,000 • 2 bed • 1 bath • 519 ft²
1 bedroom flat for sale in Botley, Oxford, OX2 — £275,000 • 1 bed • 1 bath • 535 ft²
2 bedroom flat for sale in East Oxford, Oxford, OX4 — £285,000 • 2 bed • 1 bath • 503 ft²


























































